Alapterület:
145 m2
Ár:
129 M Ft
Szobák:
4 szoba
Átadás várható időpontja:
2027. II. negyedév
Regisztrációs szám:
P4832
Aktuális ingatlanok száma:

Leírás

A megépítésre kerülő otthonok, a mai kornak megfelelő magas műszaki tartalommal , és modern technólógiával készülnek, átgondolt alprajzzal, élhető terekkel.
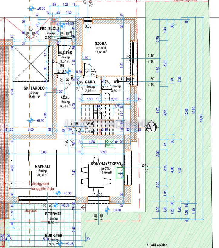
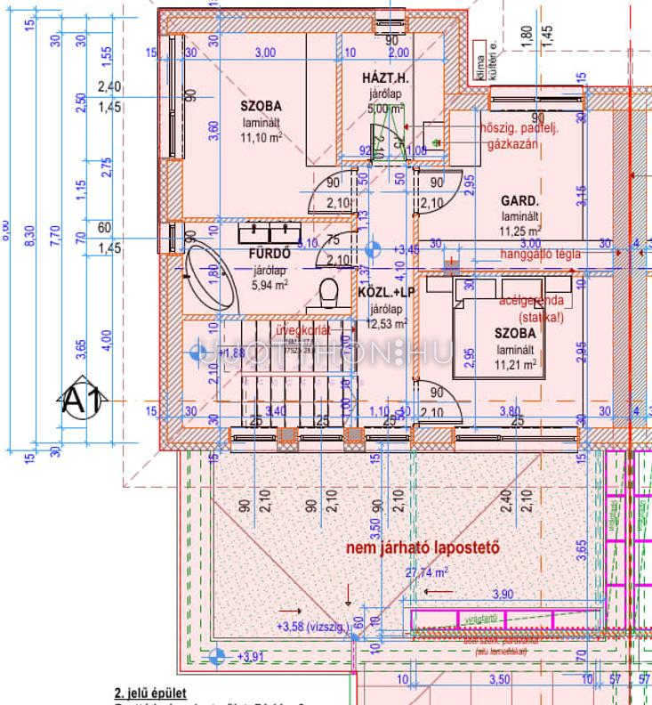
A lakások praktikus elrendezése egy világos egybenyíló konyha - étkező - nappali életteret biztosítanak, 3 különnyíló szobát, gardrobot, háztartási helyiségeket foglal magába, így ideális választás családok számára.
Alapterülete : 144,8 m2
Minden lakáshoz saját kert és garázs tartozik, amely biztosítja a kertvárosi életérzést.
Műszaki jellemzői :
- Immergas 24 kw gondenzációs kazán
- padlófűtés
- porotherm falazat
- 15 cm homlokzati szigetelés
- 3 rtg hő - hangszigetelt nyílászárók
- modern épületgépészet
- minőségi burkolatok
- motoros garázskapu
- hőszivattyú csövezés, előkészítés későbbi telepítéshez
- stb ....
Ha felkeltettem az érdeklődését, kérem , hívjon bizalommal.

> Térkép mutatása
Érdeklődöm