4 szobás 145 m2-es ikerhaz Nád 4 - Debrecen, Fészek Lakópark
- Ingatlan adatok
-
Alapterület: 145 m2
-
Regisztrációs szám: P4832-1-01-NA-001
-
Szobák: 4 szoba
-
Típus: ikerhaz
-
Ár: 129 000 000 Ft
-
Várható átadás: 2027. II. negyedév
-
Telek méret: 300 m2
-
Méret (bruttó): 159.8 m2
-
Terasz méret: 15.00 m2
-
Fűtés: gáz (cirko)
-
Fürdőszobák száma: 2
-
Belmagasság: 270.0 cm
-
Tájolás: DNY
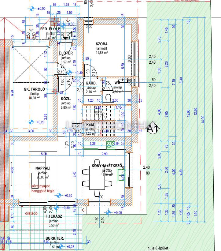
- Helyiségek
-
konyha-étkező 11.94 m2
-
nappali 20 m2
-
szoba 11.88 m2
-
szoba 11.21 m2
-
szoba 11.125 m2
-
gardrób 11 m2
-
fürdőszoba 5.94 m2
-
háztartási helyiség 5 m2
Leírás
Az ingatlan beépített alapterülete : 144,8 m2, saját udvarral rendelkezik.
Projekt bemutatása
A megépítésre kerülő otthonok, a mai kornak megfelelő magas műszaki tartalommal , és modern technólógiával készülnek, átgondolt alprajzzal, élhető terekkel.
A lakások praktikus elrendezése egy világos egybenyíló konyha - étkező - nappali életteret biztosítanak, 3 különnyíló szobát, gardrobot, háztartási helyiségeket foglal magába, így ideális választás családok számára.
Alapterülete : 144,8 m2
Minden lakáshoz saját kert és garázs tartozik, amely biztosítja a kertvárosi életérzést.
Műszaki jellemzői :
- Immergas 24 kw gondenzációs kazán
- padlófűtés
- porotherm falazat
- 15 cm homlokzati szigetelés
- 3 rtg hő - hangszigetelt nyílászárók
- modern épületgépészet
- minőségi burkolatok
- motoros garázskapu
- hőszivattyú csövezés, előkészítés későbbi telepítéshez
- stb ....
Ha felkeltettem az érdeklődését, kérem , hívjon bizalommal.
Nád 4