LIGET TÉR KÖZELÉBEN - ÚJ ÉPÍTÉSŰ IKERHÁZAK Debrecen, Kincseshegy

Alapterület:
108 - 181 m2
Ár:
149.7 - 223.6 M Ft
Szobák:
3 - 5 szoba
Átadás várható időpontja:
2027. IV. negyedév
Regisztrációs szám:
P4834
Aktuális ingatlanok száma:

Leírás

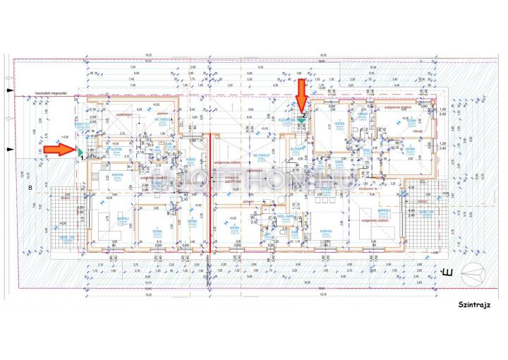
Debrecen, Kincseshegy városrészén, csendes, családias környezetben, 2026 év végi átadással épül 2 db, magas műszaki tartalommal rendelkező, modern ikerház.

Elérhető lakások:

1. lakás
108 m² – nappali + 2 hálószoba
66 m² kertkapcsolat
terasz, garázs

2. lakás
181 m² – nappali + 4 hálószoba
476 m² kertkapcsolat
terasz, dupla garázs

Az ingatlanok tervezésénél kiemelt szerepet kapott az intimitás és a jól elkülönített életterek kialakítása.
A lakások közötti falazat dupla (2× PTH 20) hanggátló rendszerrel, köztes hangszigeteléssel készül.

Műszaki tartalom korszerű, energiatakarékos megoldásokkal:

- kondenzációs gázkazán + hőszivattyú kombináció
- padlófűtés
- fan-coil hűtés-fűtés
- elektromos redőnyök
- napelem előkészítés
- motoros, szekcionált garázskapu távirányítóval

Burkolatok:

- hidegburkolat: 10.000 Ft/m²
- melegburkolat: 6.500 Ft/m²

A lokáció ideális: közel a városhoz, mégis nyugodt, zöldövezeti környezetben, így tökéletes választás családok számára.

Ne maradjon le!
Ha még idén szeretne egy értékálló, új építésű otthonba költözni, vegye fel velünk a kapcsolatot!

> Térkép mutatása
Érdeklődöm