3 szobás 59 m2-es Lakás K7 Residence - Budapest XIII. kerület, Angyalföld

107.9 M Ft
  • Ingatlan adatok
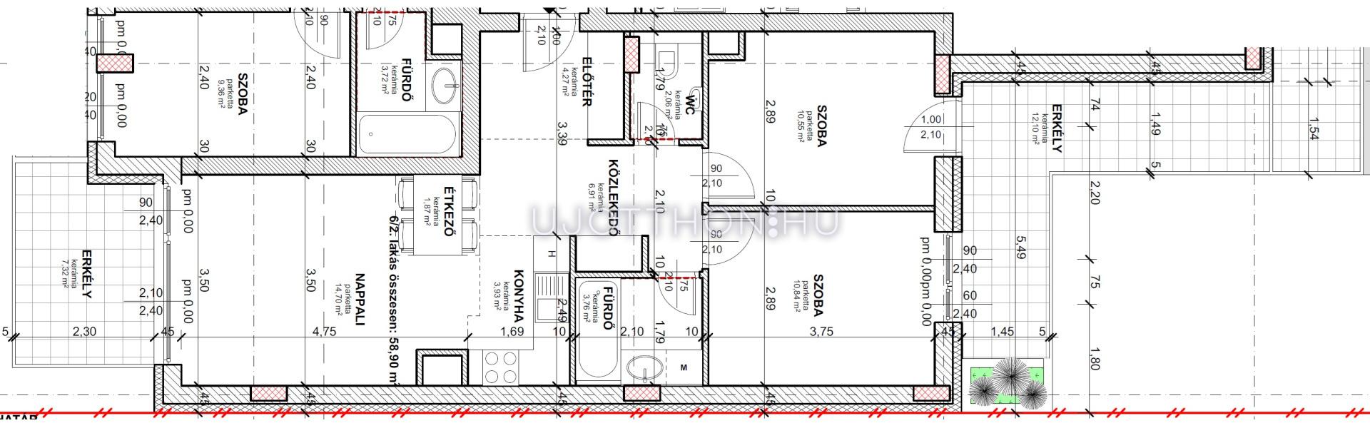
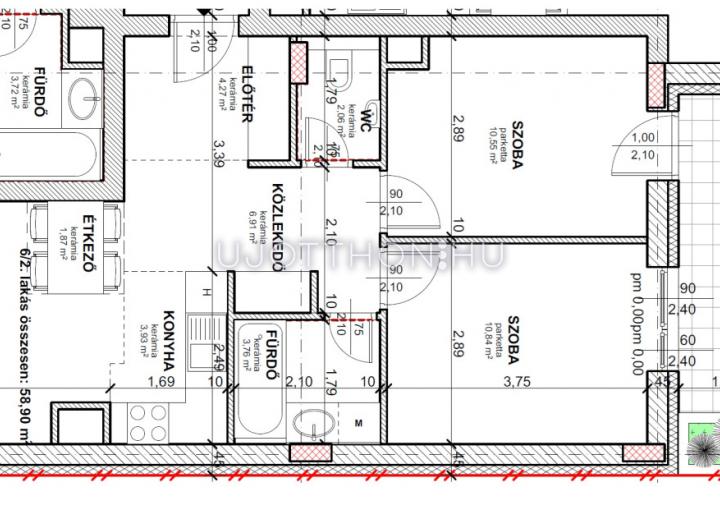
  • Alapterület: 59 m2
  • Regisztrációs szám: P4726-V1-01-06-602
  • Szobák: 3 szoba
  • Típus: Lakás
  • Ár: 107 900 000 Ft
  • Várható átadás: 2026. IV. negyedév
  • Emelet: 6. emelet
  • Méret (bruttó): 65.27 m2
  • Terasz méret: 19.42 m2
  • Fűtés: hoszivattyus_futes
  • Fürdőszobák száma: 1
  • Belmagasság: 270.0 cm
  • Tároló: Külön vásárolható
  • Tájolás: DNY
  • Garázs: Külön vásárolható
  • Kilátás: utcai
  • Lépcsőház jellege: zárt lépcsőházas
  • Lift: Van

Leírás

Projekt bemutatása

A XIII. kerület legfrekventáltabb részén, közel az M3-as metró Göncz Árpád Városközponti megállójához (Árpád híd) és az 1-es villamoshoz, csendes mellékutcában kínálunk eladásra újépítésű lakásokat, számos referenciával rendelkező, nagymúltú beruházó projektjében.

A lakások változatos méretűek: a stúdió lakástól a nagyteraszos, több szobásig minden típus megtalálható a házban. Mindegyikhez tartozik erkély vagy nagy méretű terasz. A földszinti lakások kertkapcsolatosak.

A társasház a jövő korának megfelelő, modern, hőszivattyús mennyezeti hűtés, -fűtéses rendszerű, lakásonként elkülönített szabályzókkal, ami minimális energiafelhasználást tesz lehetővé télen és nyáron egyaránt, minden tulajdonos számára. A technológiának köszönhetően a lakótereken belül nincs szükség külön fűtőtestekre, ami által a helyiségek berendezhetősége is optimális.

A beruházó rendkívüli rugalmassága lehetővé teszi minden vevő számára a belső kialakítás és beosztás változtatását is, így minden lakás teljesen személyre szabható.

Mind a környék infrastruktúrája, mind pedig a belváros közelsége biztosítja, hogy az itt lakók mindent elérjenek percek alatt: számos bevásárlási lehetőség, óvodák, iskolák, bevásárló központ, gyógyszertár, posta vagy játszótér, parkok vannak karnyújtásnyi távolságra.

A kiváló lokáció és az alacsony energiaigény miatt kiemelkedő az ingatlanok akár hosszú-, akár rövidtávú kiadhatósága is.

K7 Residence

Átadás:
2026. IV. negyedév
Lakások száma:
27
Árak:
61.5 - 169.9 M Ft
Méret:
31 - 87 m2
Szobák:
1 - 3 szoba
Projekt bemutatása
Érdeklődöm