2 szobás 43 m2-es Lakás Okos Otthon - M01 Projekt - Budapest VIII. kerület, Corvin negyed
- Ingatlan adatok
-
Alapterület: 43 m2
-
Regisztrációs szám: P4696-1-00-01-101
-
Szobák: 2 szoba
-
Típus: Lakás
-
Ár: 69 990 000 Ft
-
Várható átadás: 2026. IV. negyedév
-
Méret (bruttó): 43.8 m2
-
Terasz méret: 3.41 m2
-
Fűtés: hoszivattyu_ll
-
Fürdőszobák száma: 1
-
Belmagasság: 260.0 cm
-
Tájolás: DNY
-
Garázs: Külön vásárolható
-
Kilátás: utcai
-
Lépcsőház jellege: zárt lépcsőházas
-
Lift: Van
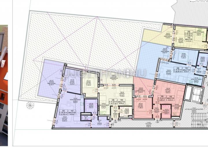
- Helyiségek
-
előszoba 5.03 m2
-
nappali 16.02 m2
-
konyha-étkező 4.5 m2
-
hálószoba 12.22 m2
-
fürdőszoba 3.46 m2
-
wc 1.35 m2
Leírás
❗️OKOS OTTHON - Corvin negyednél
Új építésű lakások még bevezető áron!
Otthon / Befektetés
⏺️ Lokáció:
- 08. kerület dinamikusan fejlődő része
- belvárosi közlekedés
- METRO, főbb közlekedési csomópontok karnyújtásnyira
- EGYETEMEK, FŐISKOLÁK közelében
- kiváló infrastruktúra
❗️ Műszaki tartalom:
- kornak megfelelő, igényes kivitelezés
- NGBS OKOS OTTHON rendszer
- hőszivattyús fűtésrendszer
- falhűtés
- zöld kert, öntözőrendszerrel
⬆️ Lakások:
- szuper praktikus tervezés
- választható burkolatok
- terasz, erkély minden lakáshoz
- garázs igény szerint
✅ Hitel ügyintézés - kedvező kamatozással, egyénre szabva!
Jogi segítségnyújtás igény szerint!
Keressen bizalommal!
Projekt bemutatása
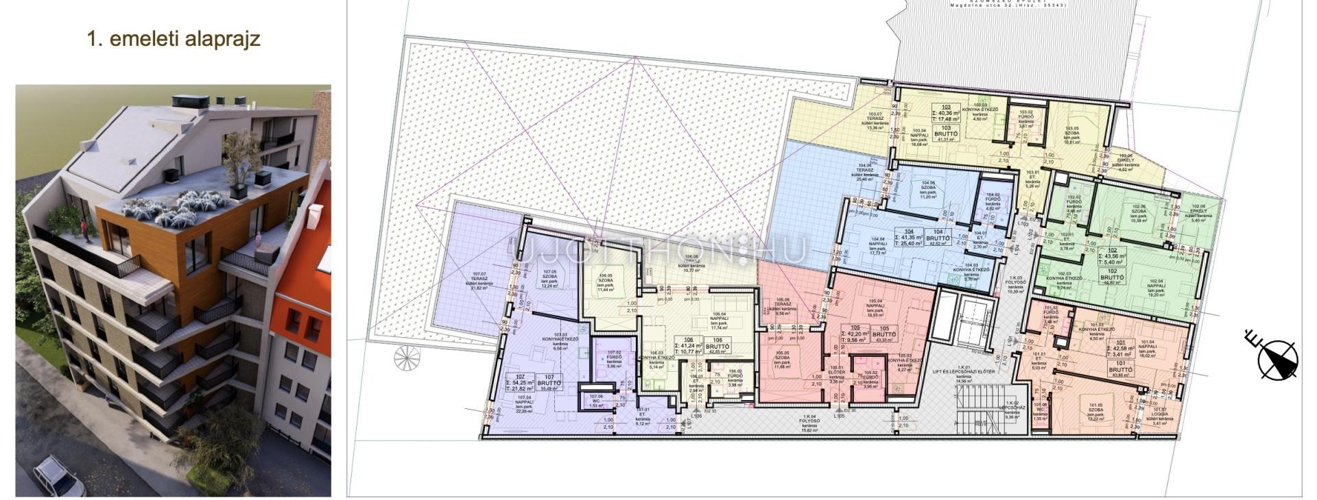
Budapest, VIII. kerület dinamikusan fejlődő részén, 36 lakásos társasház igényes, a kornak megfelelő műszaki tartalommal rendelkező projekt, NGBS okos otthon rendszerrel, választható burkolatokkal 2026. negyedik negyedévre tervezett átadással.
Okos Otthon - M01 Projekt
