Alapterület:
116 - 126 m2
Ár:
83 - 100 M Ft
Szobák:
4 szoba
Átadás várható időpontja:
2027. I. negyedév
Regisztrációs szám:
P4800
Aktuális ingatlanok száma:

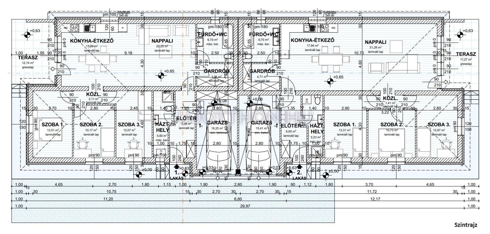
Leírás

Debrecentől mindössze 10 km-re, Bocskaikert könnyen megközelíthető, családiházas övezetében épül egy kétlakásos ikerház projekt, várható 2027. I. negyedévi átadással.
Az ingatlanok saját kertkapcsolattal rendelkeznek, nyugodt, kertvárosias környezetben, mégis kiváló infrastruktúrával.

A modern műszaki tartalom a mai kor elvárásaihoz igazodik, energiatakarékos és hosszú távon gazdaságos fenntartást biztosít:

Műszaki jellemzők:
- POROTHERM 30 N+F téglafalazat
- 15 cm homlokzati hőszigetelés
- hőszivattyús fűtés padlófűtéssel
- háromrétegű üvegezésű műanyag nyílászárók
- 3,5 kW inverteres klíma
- Tondach cserépfedés
- térkövezett külső felületek
- 9.000 Ft/m² választható hideg–meleg burkolatok
- lakások között dupla falazat + 5 cm kőzetgyapot hangszigetelés

A teljes műszaki dokumentáció érdeklődés esetén elérhető.

Környezet és infrastruktúra:
Bölcsőde, óvoda, iskola, gyógyszertár, posta, piac és bevásárlási lehetőségek a közelben. A vasút és buszközlekedés kiváló, Debrecen belvárosa kb. 15 perc alatt elérhető.

Az E573-as elkerülő gyors megközelítést biztosít, a debreceni ipari park, a BMW és az akkumulátorgyár néhány perc alatt elérhető — ideális saját otthonnak és befektetésnek egyaránt.

Kedvező ár-érték arány, rugalmas fizetési ütemezés

Várható átadás: 2027. március

3%-os Start Hitel és CSOK+ teljeskörű, díjmentes ügyintézéssel banki partnerünk segítségével — akár irodánkban, akár otthonában.

További információkért és részletekért várom megkeresését!

> Térkép mutatása
Érdeklődöm