4 szobás 126 m2-es ikerhaz MODERN OTTHONOK DEBRECENTŐL 10 PERCRE - Bocskaikert
- Ingatlan adatok
-
Alapterület: 126 m2
-
Regisztrációs szám: P4800-1-0A-NA-002
-
Szobák: 4 szoba
-
Típus: ikerhaz
-
Ár: 100 000 000 Ft
-
Várható átadás: 2027. I. negyedév
-
Telek méret: 1000 m2
-
Méret (bruttó): 132 m2
-
Terasz méret: 12.00 m2
-
Fűtés: hoszivattyus_futes
-
Fürdőszobák száma: 2
-
Belmagasság: 260.0 cm
-
Tájolás: ÉK
-
Garázs: Benne van az árban
-
FIX 3% hitelre alkalmas: Igen
- Helyiségek
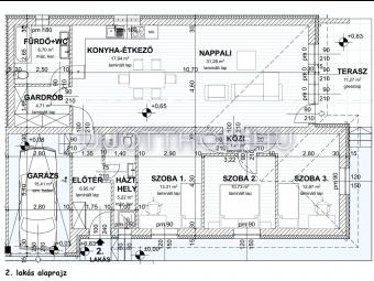
-
konyha-étkező 18 m2
-
nappali 31 m2
-
hálószoba 13 m2
-
hálószoba 11 m2
-
hálószoba 13 m2
-
fürdőszoba-wc 7 m2
-
gardrób 5 m2
-
fürdőszoba-wc 5 m2
-
garázs 15 m2
-
terasz 11 m2
Leírás
2. lakás Br.132 nm egy szinten, nagy telekhányaddal:
- amerikaikonyhás nappali (49 nm) teraszkapcsolattal
- 3 hálószoba (13,11,13 nm)
- 2 fürdőszoba (kád és tusoló kialakítással)
- gardrób (5 nm)
- garázs (15 nm)
- kertkapcsolat (660 nm).
Projekt bemutatása
Debrecentől mindössze 10 km-re, Bocskaikert könnyen megközelíthető, családiházas övezetében épül egy kétlakásos ikerház projekt, várható 2027. I. negyedévi átadással.
Az ingatlanok saját kertkapcsolattal rendelkeznek, nyugodt, kertvárosias környezetben, mégis kiváló infrastruktúrával.
A modern műszaki tartalom a mai kor elvárásaihoz igazodik, energiatakarékos és hosszú távon gazdaságos fenntartást biztosít:
Műszaki jellemzők:
- POROTHERM 30 N+F téglafalazat
- 15 cm homlokzati hőszigetelés
- hőszivattyús fűtés padlófűtéssel
- háromrétegű üvegezésű műanyag nyílászárók
- 3,5 kW inverteres klíma
- Tondach cserépfedés
- térkövezett külső felületek
- 9.000 Ft/m² választható hideg–meleg burkolatok
- lakások között dupla falazat + 5 cm kőzetgyapot hangszigetelés
A teljes műszaki dokumentáció érdeklődés esetén elérhető.
Környezet és infrastruktúra:
Bölcsőde, óvoda, iskola, gyógyszertár, posta, piac és bevásárlási lehetőségek a közelben. A vasút és buszközlekedés kiváló, Debrecen belvárosa kb. 15 perc alatt elérhető.
Az E573-as elkerülő gyors megközelítést biztosít, a debreceni ipari park, a BMW és az akkumulátorgyár néhány perc alatt elérhető — ideális saját otthonnak és befektetésnek egyaránt.
Kedvező ár-érték arány, rugalmas fizetési ütemezés
Várható átadás: 2027. március
3%-os Start Hitel és CSOK+ teljeskörű, díjmentes ügyintézéssel banki partnerünk segítségével — akár irodánkban, akár otthonában.
További információkért és részletekért várom megkeresését!
MODERN OTTHONOK DEBRECENTŐL 10 PERCRE