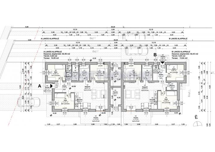
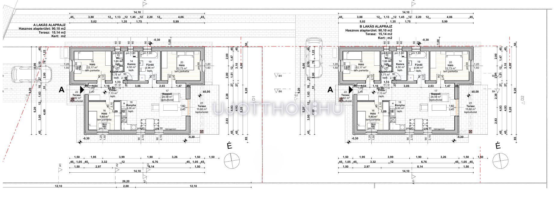
Alapterület:
90 m2
Ár:
71 M Ft
Szobák:
4 szoba
Átadás várható időpontja:
2025. IV. negyedév
Regisztrációs szám:
P4607
Aktuális ingatlanok száma:

Leírás

Kiskunlacházán újépítésű családi házak eladók

✅️téglaépítésű
✅️hőszigetelt
✅️nettó 90 m2
✅️amerikai konyhás nappali + 3 hálószobás
✅️kamra
✅️egy fürdőszoba, két wc
✅️fűtése: hőszivattyú + padlófűtés
✅️választható burkolatok
✅️terasz

Hitel, CSOK, Otthon Start igényelhető.
Várható átadás: 2026. tavasz

További részletekért kérem hívjon!

> Térkép mutatása
Érdeklődöm