1 szobás 40 m2-es Lakás Luxus a Belváros szívében - Debrecen, Belváros

62.39 M Ft
  • Ingatlan adatok
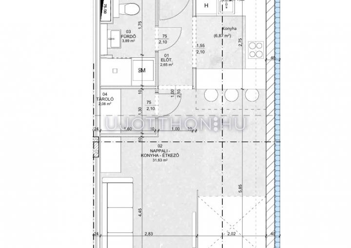
  • Alapterület: 40 m2
  • Regisztrációs szám: P4465-1-01-01-103
  • Szobák: 1 szoba
  • Típus: Lakás
  • Ár: 62 387 000 Ft
  • Várható átadás: 2027. II. negyedév
  • Emelet: 1. emelet
  • Méret (bruttó): 40.25 m2
  • Fűtés: hoszivattyus_futes
  • Fürdőszobák száma: 1
  • Belmagasság: 265.0 cm
  • Tájolás: K
  • Garázs: Külön vásárolható
  • Kilátás: utcai
  • Lépcsőház jellege: zárt lépcsőházas
  • Lift: Van

Leírás

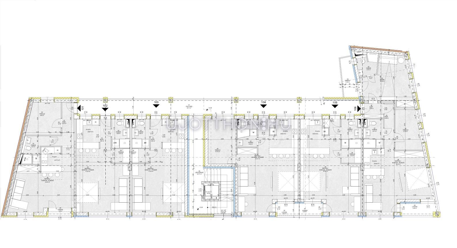
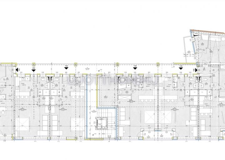
Debrecen, Belvárosának szívében a Nagytemplomhoz és a Kölcsey központhoz közel, magas műszaki tartalommal, új építésű 14 lakásos társasház épül.
Ez az 1. emeleti lakás 40,25 nm-es, nappali-étkező-konyhás.
Jellemzők:
--3 rétegű üvegezésű nyílászárók
--hőszivattyús fűtés, minden helyiségben padlófűtés
--hütő-fűtő klíma: hőszivattyús rendszerű magasfali fan coil
--rejtett redőnytokos redőnyök
--Ercadó típusú beltéri ajtók
--zuhanyzóban és wc-ben mennyezetig ragasztott burkolat
--függesztett wc, 90X200-as üveg zuhanyfal

Az ingatlan pár perc sétára található a Nagytemplomtól, a Piactól és a Bevásárló központoktól és az 1-es és 2-es villamos megállójától.

Projekt bemutatása

-

Luxus a Belváros szívében

Átadás:
2027. II. negyedév
Lakások száma:
8
Árak:
62.4 - 119.3 M Ft
Méret:
40 - 66 m2
Szobák:
1 - 3 szoba
Projekt bemutatása
Érdeklődöm