5 szobás 137 m2-es ikerhaz KERTVÁROSI LAKÓPARK - ÚJÉPÍTÉSŰ LAKÓHÁZAK - Debrecen, Vargakert
- Ingatlan adatok
-
Alapterület: 137 m2
-
Regisztrációs szám: P4755-1-0A-NA-005
-
Szobák: 5 szoba
-
Típus: ikerhaz
-
Ár: 137 465 000 Ft
-
Várható átadás: 2026. III. negyedév
-
Telek méret: 480 m2
-
Méret (bruttó): 155 m2
-
Terasz méret: 7.00 m2
-
Fűtés: hoszivattyus_futes
-
Fürdőszobák száma: 2
-
Belmagasság: 260.0 cm
-
Tároló: Önálló
-
Tájolás: DNY
-
Garázs: Benne van az árban
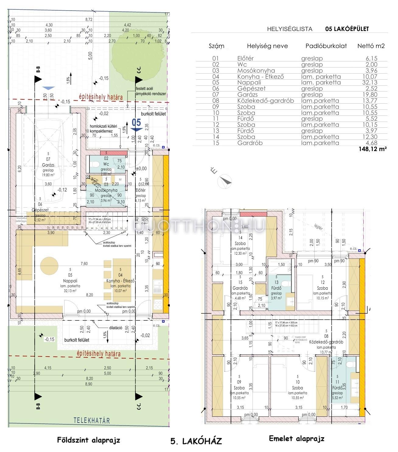
- Helyiségek
-
nappali 32 m2
-
konyha-étkező 10 m2
-
mosókonyha 4 m2
-
wc-kézmosó 2 m2
-
előszoba 6 m2
-
garázs 20 m2
-
egyéb helyiség 2 m2
-
terasz 7 m2
-
szoba 11 m2
-
szoba 11 m2
-
szoba 10 m2
-
fürdőszoba-wc 6 m2
-
hálószoba 12 m2
-
gardrób 5 m2
-
fürdőszoba-wc 4 m2
-
közlekedő 14 m2
Leírás
5. lakóház Br. 155 nm, nappali + 4 hálós:
Földszint:
- amerikaikonyhás nappali étkezővel (42 nm), teraszkapcsolattal
- mosókonyha (4 nm)
- vendég WC
- garázs gépészettel (22 nm)
- kertkapcsolat (120 nm)
Emelet:
- szülői háló gardróbbal és fürdőszobával (21 nm)
- 3 hálószoba ( 10, 11, 11 nm)
- fürdőszoba (6 nm)
- közlekedő gardróbbal (14 nm)
Projekt bemutatása
Debrecen – Vargakert új építésű lakópark
MOST IGAZÁN MEGÉRI LÉPNI!
Aki 2026.03.15-ig adásvételi szerződést köt, és lefoglalja a projekt utolsó 3 db lakásának egyikét, az ajándékba kap 3.000.000 Ft értékű IKEA vásárlási utalványt, melyet akár már most megtervezhet és felhasználhat jövőbeni konyhájára vagy berendezésére!
Debrecen kertvárosias részén, a közkedvelt Vargakertben már épül a 10 lakóegységes lakópark, ahol az otthonok ikerház jelleggel és sorház beépítéssel kerülnek átadásra.
✔️ START HITEL és CSOK+ kompatibilis ingatlanok
✔️ A hirdetési árak készpénzes vásárlókra vonatkoznak
✔️ Most bevezető áron választhat kínálatunkból!
Lakások jellemzői:
- földszint + emelet kialakítás
- nappali + 3 vagy nappali + 4 hálószoba
- duplakomfortos elrendezés
- garázs és tároló
- saját kertkapcsolat
Műszaki tartalom:
- Porotherm 30 N+F falazat
- grafitos hőszigetelés
- 3 rétegű, argongázas nyílászárók
- választható burkolatok: hideg: 8.500 Ft/nm, meleg: 6.000 Ft/nm
- hőszivattyús fűtés és használati melegvíz (padlófűtés)
- hűtés 2 db klímával
Ha új, energiatakarékos otthont keres kertvárosi környezetben kiváló ár/érték arány mellett — most extra ajándékkal is számolhat!
Hívjon bizalommal a részletekért!
Banki kollégánk teljeskörű, díjmentes ügyintézéssel segíti a vásárlást bármely banki konstrukció esetén.
KERTVÁROSI LAKÓPARK - ÚJÉPÍTÉSŰ LAKÓHÁZAK