5 szobás 137 m2-es ikerhaz KERTVÁROSI LAKÓPARK - ÚJÉPÍTÉSŰ LAKÓHÁZAK - Debrecen, Vargakert
- Ingatlan adatok
-
Alapterület: 137 m2
-
Regisztrációs szám: P4755-1-0A-NA-002
-
Szobák: 5 szoba
-
Típus: ikerhaz
-
Ár: 137 465 000 Ft
-
Várható átadás: 2026. III. negyedév
-
Telek méret: 480 m2
-
Méret (bruttó): 155 m2
-
Terasz méret: 7.00 m2
-
Fűtés: hoszivattyus_futes
-
Fürdőszobák száma: 2
-
Belmagasság: 260.0 cm
-
Tároló: Önálló
-
Tájolás: ÉK
-
Garázs: Benne van az árban
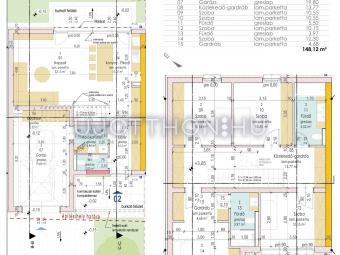
- Helyiségek
-
nappali 32 m2
-
konyha-étkező 10 m2
-
mosókonyha 4 m2
-
wc-kézmosó 2 m2
-
előszoba 6 m2
-
garázs 20 m2
-
egyéb helyiség 2 m2
-
terasz 7 m2
-
szoba 11 m2
-
szoba 11 m2
-
szoba 12 m2
-
fürdőszoba-wc 6 m2
-
fürdőszoba-wc 4 m2
-
gardrób 5 m2
-
közlekedő 14 m2
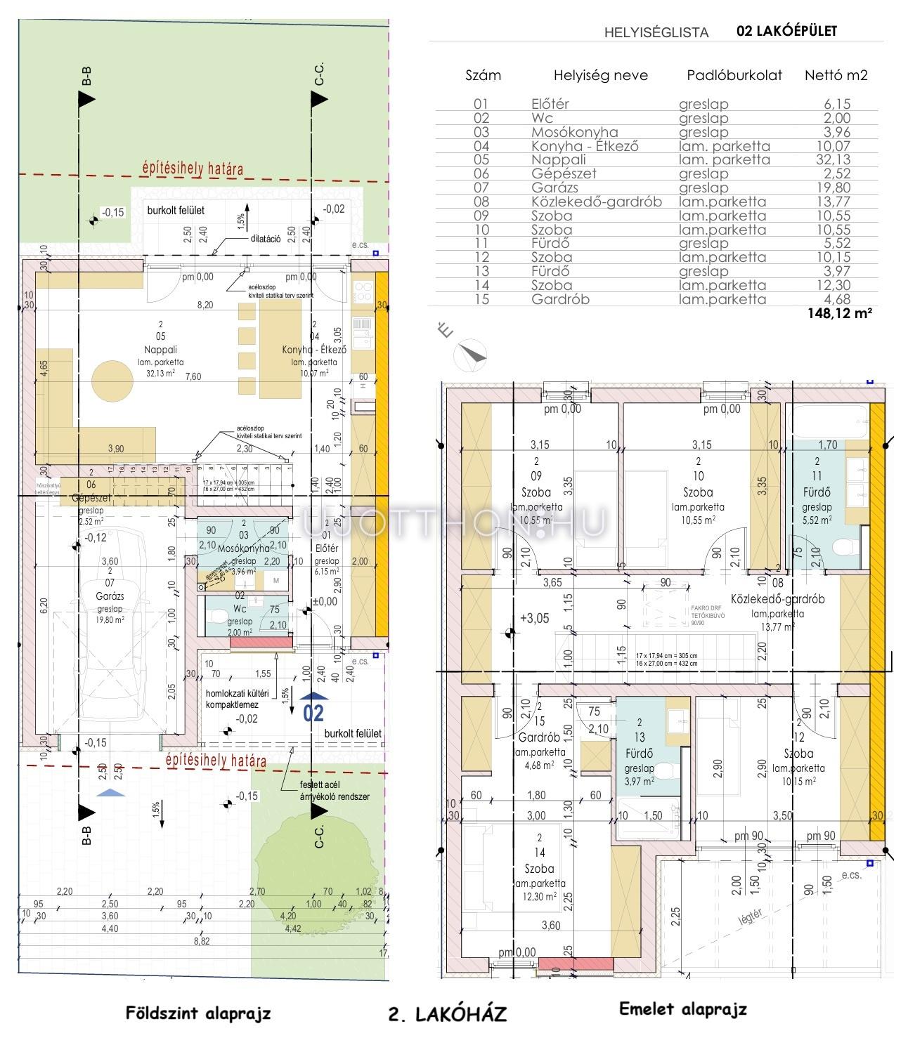
Leírás
2. lakóház Br. 155 nm, nappali + 4 hálós:
Földszint:
- amerikaikonyhás nappali étkezővel (42 nm), teraszkapcsolattal
- mosókonyha (4 nm)
- vendég WC
- garázs gépészettel (22 nm)
- kertkapcsolat (120 nm)
Emelet:
- szülői háló gardróbbal és fürdőszobával (21 nm)
- 3 hálószoba ( 10, 11, 11 nm)
- fürdőszoba (6 nm)
- közlekedő gardróbbal (14 nm)
Projekt bemutatása
Debrecen kertvárosias részén a Vargakertben már épül a 10 lakóegységű lakópark, melyek ikerház jelleggel és sorház beépítéssel kerülnek átadásra.
Az önálló lakóházak alkalmasak a START HITELRE és CSOK + támogatásra is.
Most bevezető áron választhat kínálatunkból!
A földszint + emelet kialakítású ingatlanok nappali + 3 és nappali + 4 hálószobával rendelkeznek.
Mindegyik lakóegység duplakomfortos, garázzsal és tárolóval ellátott, valamint kertkapcsolatos.
Műszaki tartalma:
- Porotherm 30 N+F falazat
- grafitos hőszigetelés
- nyílászárók 3 rétegű, argongázzal töltöttek
- hidegburkolat 8.500.-, meleg 6.000.-Ft/nm áron választhatóak
- fűtés és használati melegvíz hőszivattyúval biztosított (padlófűtés)
- hűtés 2 db klímával megoldott.
Amennyiben szeretne egy új, energiatakarékos otthont kedvező ár/érték arányban vásárolni, kertvárosi környezetben, ne várjon, hívjon a további részletekért!
Banki kollégánk teljeskörű ügyintézéssel, díjtalanul segíti Önt, hogy vásárlás sikeres legyen, bármely banki konstrukcióval!
KERTVÁROSI LAKÓPARK - ÚJÉPÍTÉSŰ LAKÓHÁZAK
