4 szobás 132 m2-es Sorház "HH" CORNER - NYULAS - Debrecen, Nyulas
- Ingatlan adatok
-
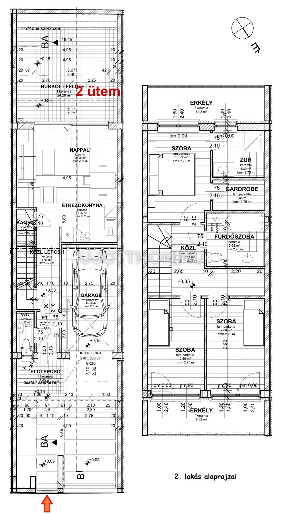
Alapterület: 132 m2
-
Regisztrációs szám: P4623-1-0A-NA-002
-
Szobák: 4 szoba
-
Típus: Sorház
-
Ár: 165 000 000 Ft
-
Várható átadás: 2025. IV. negyedév
-
Telek méret: 120 m2
-
Méret (bruttó): 152 m2
-
Terasz méret: 24.00 m2
-
Erkély méret: 16.00 m2
-
Fűtés: gáz (cirko)
-
Fürdőszobák száma: 2
-
Belmagasság: 270.0 cm
-
Tájolás: DK
-
Garázs: Benne van az árban
- Helyiségek
-
előszoba 2 m2
-
egyéb 5 m2
-
wc-kézmosó 2 m2
-
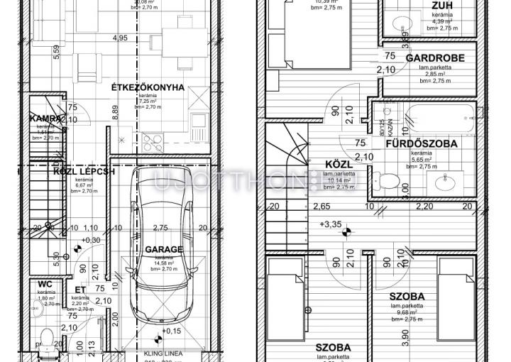
közlekedő 7 m2
-
kamra 2 m2
-
konyha-étkező 7 m2
-
nappali 20 m2
-
garázs 15 m2
-
terasz 24 m2
-
szoba 10 m2
-
szoba 10 m2
-
fürdőszoba-wc 6 m2
-
közlekedő 10 m2
-
hálószoba 10 m2
-
fürdőszoba-wc 4 m2
-
gardrób 3 m2
Leírás
2. lakás: Br. 152 nm
- amerikaikonyhás - étkezős nappali (27 nm)
- teraszkapcsolat (24 nm)
- garázs (15 nm)
- vendégmosdó
- 3 szoba (10-10-10 nm)
- 2 fürdőszoba
- gardrób
- erkélyek (16 nm)
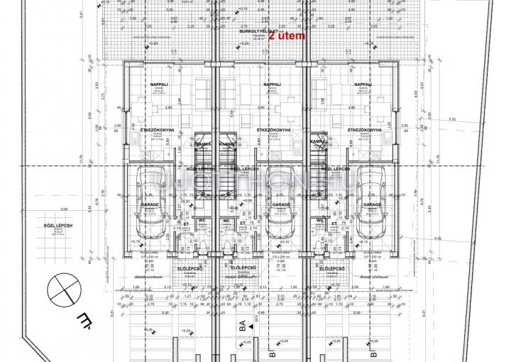
Projekt bemutatása
Debrecen kedvelt, Nagyerdőhöz és az Egyetemekhez közeli részén modern, új építésű, extrákkal felszerelt sorház épül, átadása 2026. I. negyedév.
Saját kertkapcsolatos otthonok várják tulajdonosaikat 2 szinten.
A földszinten amerikaikonyhás - étkezős nappali terasz és kertkapcsolattal, vendégmosdóval és garázzsal.
Az emeleten 2 gyerekszoba kádas fürdőszobával, míg a szülői háló saját fürdőszobával és gardróbbal felszerelt.
Műszaki tartalmát extrákkal bővítették:
- beépített konyhabútor gépesítve (Electrolux)
- 2 db elektromos porszívó
- vízlágyító berendezés
- elektromos redőnyök és kapuk távirányítós vezérléssel
- hőszivattyús klímák (h-tarifa)
- riasztórendszer
- padlófűtés.
Tervezze a tavaszt már új otthonában!
További részletkért és a megtekintést illetően várom hívását!
"HH" CORNER - NYULAS
