1 szobás 34 m2-es Lakás City Corner Prémium Lakások - Debrecen, Belváros

67.01 M Ft
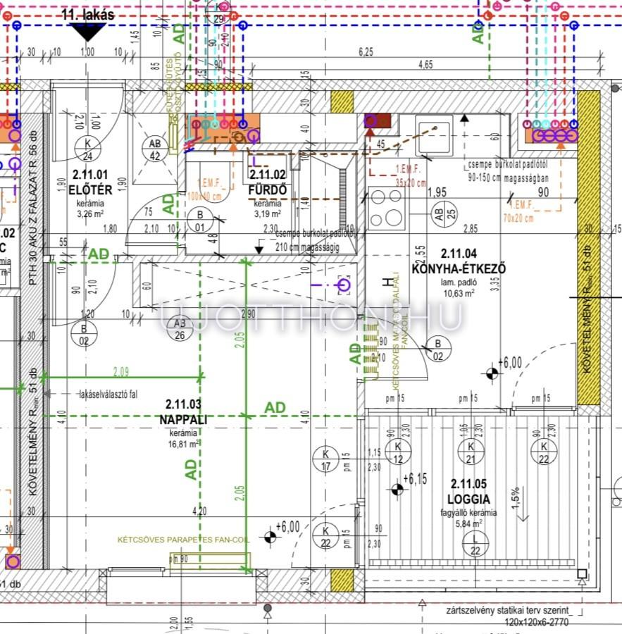
  • Ingatlan adatok
  • Alapterület: 34 m2
  • Regisztrációs szám: P4821-1-01-02-011
  • Szobák: 1 szoba
  • Típus: Lakás
  • Ár: 67 005 000 Ft
  • Várható átadás: 2026. II. negyedév
  • Emelet: 2. emelet
  • Méret (bruttó): 37.22 m2
  • Erkély méret: 5.81 m2
  • Fűtés: hoszivattyu_ll
  • Fürdőszobák száma: 1
  • Belmagasság: 270.0 cm
  • Tároló: Külön vásárolható
  • Tájolás: DK
  • Garázs: Külön vásárolható
  • Kilátás: zöld kerti
  • Lépcsőház jellege: zárt lépcsőházas

Leírás

Debrecen Belvárosában épült, 15 laksos társasházak kivételes lehetőséget kínál mindazok számáram akik a belvárosi élet előnyeit szeretnék élvezni.

A modern megjelenés és a magas minőségű kivitelezés mellett a tágas, jól átgondolt alaprajzok biztosítják a kényelmes életteret. A 42 - 100 nm lakások nagy üvegfelültekkel készültek, és minden lakás erkélykapcsolattal rendelkezik. A nagyméretű üvegfelületeknek köszönhetően a terek természetes fénnyel telnek meg, míg a tágas erkélyek nyugalom és a kikapcsolódás színterét biztosítják.

A tervezés során kiemelt szempont volt az energiahatékonyság és a lakók komfortja. Ennek érdekében hőszivattyús hűtés - fűtés, minőségi nyílászárók, valamint elektromos autók töltésére alkalmas lehetőség is kialakításra került.

A lakások akár már juniusi költözéssel birtokba vehetők. Az ingatlanok teljes körűen, ízlésesen bútorozottak: prémium minőségű konyhabútor, étkező, nappali berendezés, valamint beépített előszoba és gardrószekrények biztosítják a harmónikus és praktikus életteret.

Amennyiben az ingatlan felkeltette érdeklődését, kérdése van, vagy szeretné megtekinteni, hétvégén is szívesen fogadom hívását!

Projekt bemutatása

Debrecen Belvárosában épült, 15 lakásos társasházak kivételes lehetőséget kínál mindazok számára akik a belvárosi élet előnyeit szeretnék élvezni.

A modern megjelenés és a magas minőségű kivitelezés mellett a tágas, jól átgondolt alaprajzok biztosítják a kényelmes életteret. A 42 - 100 nm lakások nagy üvegfelültekkel készültek, és minden lakás erkélykapcsolattal rendelkezik. A nagyméretű üvegfelületeknek köszönhetően a terek természetes fénnyel telnek meg, míg a tágas erkélyek nyugalom és a kikapcsolódás színterét biztosítják.

A tervezés során kiemelt szempont volt az energiahatékonyság és a lakók komfortja. Ennek érdekében hőszivattyús hűtés - fűtés, minőségi nyílászárók, valamint elektromos autók töltésére alkalmas lehetőség is kialakításra került.

A lakások akár már juniusi költözéssel birtokba vehetők. Az ingatlanok teljes körűen, ízlésesen bútorozottak: prémium minőségű konyhabútor, étkező, nappali berendezés, valamint beépített előszoba és gardrószekrények biztosítják a harmónikus és praktikus életteret.

Amennyiben az ingatlan felkeltette érdeklődését, kérdése van, vagy szeretné megtekinteni, hétvégén is szívesen fogadom hívását!

City Corner Prémium Lakások

Átadás:
2026. II. negyedév
Lakások száma:
11
Árak:
67 - 172.6 M Ft
Méret:
34 - 93 m2
Szobák:
1 - 5 szoba
Projekt bemutatása
Érdeklődöm