1 szobás 33 m2-es Lakás BELVÁROSI TÁRSASHÁZ - CS22 - Debrecen, Belváros

59.9 M Ft
  • Ingatlan adatok
  • Alapterület: 33 m2
  • Regisztrációs szám: P4725-1-0A-03-201
  • Szobák: 1 szoba
  • Típus: Lakás
  • Ár: 59 900 000 Ft
  • Várható átadás: 2026. III. negyedév
  • Méret (bruttó): 50 m2
  • Terasz méret: 17.00 m2
  • Fűtés: gáz (fan-coil)
  • Fürdőszobák száma: 1
  • Belmagasság: 260.0 cm
  • Tároló: Külön vásárolható
  • Tájolás: K
  • Garázs: Külön vásárolható
  • Kilátás: utcai
  • Lépcsőház jellege: zárt lépcsőházas
  • Lift: Van
  • FIX 3% hitelre alkalmas: Igen

Leírás

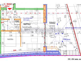
III. emelet 2/B. lakás 33 nm + 17 nm terasz:

A garzonlakás egy nagy lakás kettéosztásából lett kialakítva:
- nappali hálórész leválaszthatósággal
- konyha étkezővel
- fürdőszoba WC
- terasz
- előszoba.

Ideális egyedülállónak, egyetemistának, aki kis fenntartási költséggel, mégis a belváros összes előnyével keres új építésű otthont!

Befektetőknek, akik ismerik a garzonlakás összes előnyét!

Projekt bemutatása

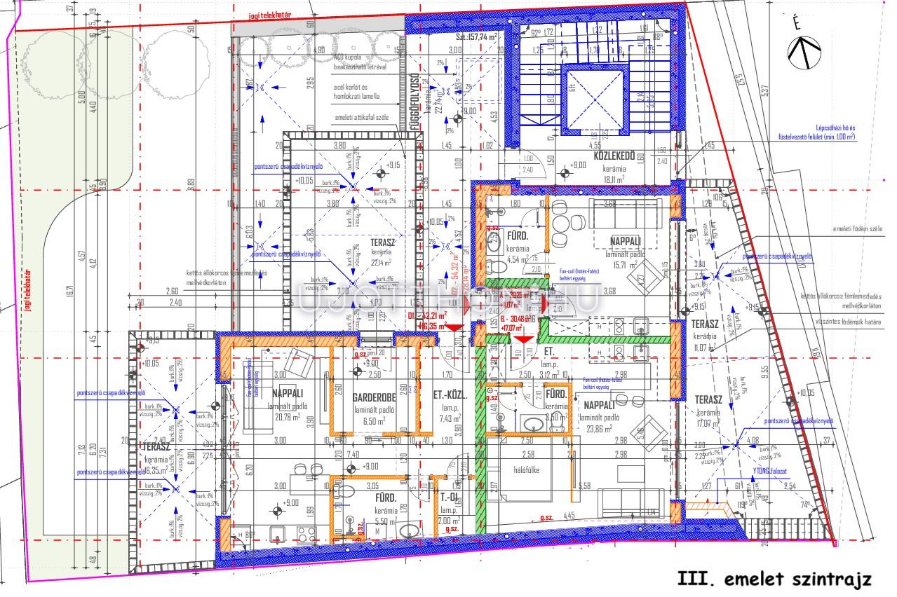
Belváros szívében, Nagytemplomtól 500 méterre épül a 8 lakásos, liftes társasház.

Az értékesítés elkezdődött!!!!

Földszinten 1 db üzlethelyiség és fedett/nyitott gépjárműtárolók (8MFt + ÁFA), melyek megvásárlása nem szükségszerű!
Az I. és II. emeletén 3 - 3 lakás, melyek garzon (nappali + hálófülke) és nappali + 2 hálós kialakításuak.
A III. emeleten 2 lakás, melyből az egyik garzon, míg a másik nappali + 1 hálós.

A modern és ízléses külsőhöz egyedi elosztású, élhető terekkel rendelkező, napfényes lakásokat terveztek, házközpontú kondenzációs gázkazánnal (fan-coil) fűtés-hűtés, hőszigetelt nyílászárókkal, minőségi szaniterekkel.

A beruházó és kivitelező múltja és referenciái, garancia a minőségi és egyben megbízható projektnek!

KÖZPONTI ELHELYEZKEDÉS, KIVÁLÓ KÖZLEKEDÉS:

A Hal köz párszáz méterre kávézókkal, éttermekkel, teraszokkal várja a vendégeket.
Villamos és buszközlekedés csak séta távolságra, mellyel a város bármelyik pontjára könnyen eljuthatunk.
A kiváló infrastruktúrának köszönhetően az ingatlanok értékállóak.
Ideális mindazok számára, akik szeretnek a belvárosban élni és az ezzel járó számos előnyt élvezni!
A lakások - akár külföldi - bérlők igényeit is kielégítő, könnyen bérbe adható, ízléses apartmanokká alakíthatóak!

Válasszon az alábbi lehetőségek közül, ha Önnek fontos a belváros nyújtotta kedvező adottság, illetve az értékállóságot keresi jövőjét illetően!

Várható átadás: 2026. III. negyedév.

Hitelügyintézést banki kollégánk teljeskörűen és ingyen bonyolítja Önnek irodánkban, de akár otthonában is!

BELVÁROSI TÁRSASHÁZ - CS22

Átadás:
2026. III. negyedév
Lakások száma:
4
Árak:
42.9 - 99.8 M Ft
Méret:
20 - 54 m2
Szobák:
1 - 2 szoba
Projekt bemutatása
Érdeklődöm