2 szobás 40 m2-es Lakás Belvárosi luxus társasház - Debrecen, Belváros

62.19 M Ft
  • Ingatlan adatok
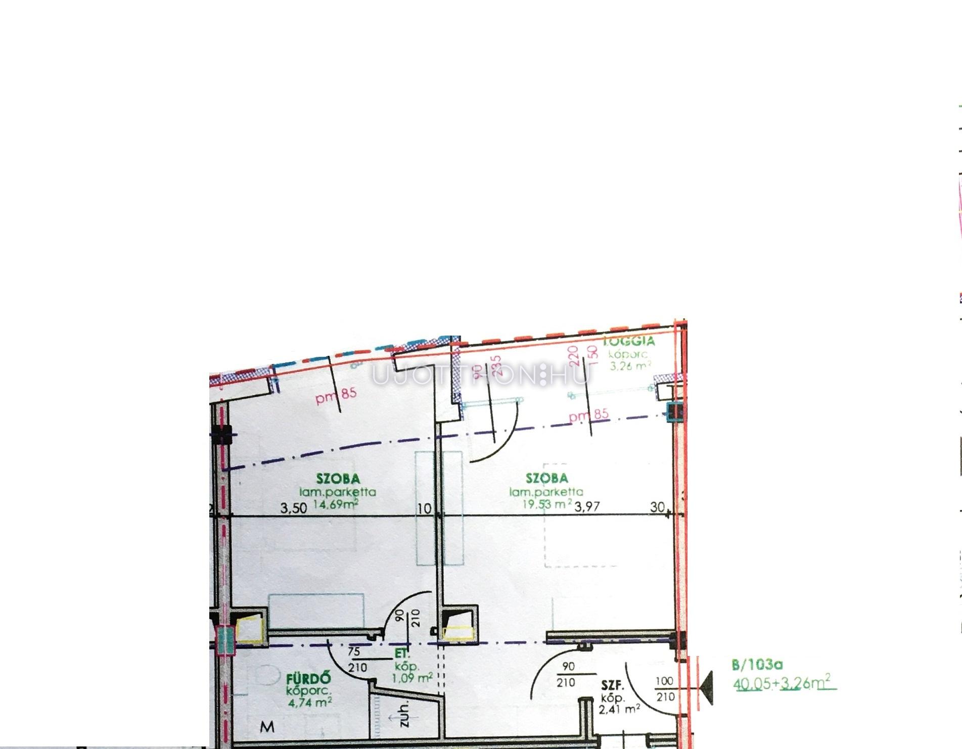
  • Alapterület: 40 m2
  • Regisztrációs szám: P4332-1-0B-01-10311
  • Szobák: 2 szoba
  • Típus: Lakás
  • Ár: 62 190 000 Ft
  • Várható átadás: 2026. IV. negyedév
  • Emelet: 1. emelet
  • Méret (bruttó): 43.5 m2
  • Erkély méret: 3.26 m2
  • Fűtés: Távfűtés (egyedi mérés)
  • Fürdőszobák száma: 1
  • Belmagasság: 265.0 cm
  • Tájolás: ÉK
  • Garázs: Külön vásárolható
  • Kilátás: udvari
  • Lépcsőház jellege: zárt lépcsőházas
  • Lift: Van
  • FIX 3% hitelre alkalmas: Igen

Leírás

Debrecen abszolút Belvárosában, de mégis csendes övezetben, modern, egyedi megjelenésű, liftes társasház épül a földszinten 4 üzlettel és a -1 szinten teremgarázs parkolókkal. A lakások között vannak földszinti kertkapcsolatosak, és penthouse jellegűek is. A projekt tervezésénél, az elsődleges szempont az otthonos, élhető lakások építése volt. Az épületben helyet kapó lakások mindegyike egyedileg kialakított tágas terekkel, jó funkcionalitással és nagy méretű loggiákkal, teraszokkal rendelkezik. A lakások minőségi anyagok felhasználásával készülnek, a legkorszerűbb 3 rétegű üvegezésű ablakokkal, hőszivattyús klímával ellátottak. A belvárosban található ingatlan pár perc sétára található a Nagytemplomtól, a Piactól és a Bevásárló központoktól. Egyéb információért hívjon bizalommal. Ez az 1. emeleti lakás 40,05 nm-es, nappali-étkező-konyha, + 1 szobás, 3,26 nm-es erkéllyel.

Projekt bemutatása

-

Belvárosi luxus társasház

Átadás:
2026. IV. negyedév
Lakások száma:
16
Árak:
62.2 - 120.9 M Ft
Méret:
38 - 94 m2
Szobák:
1 - 4 szoba
Projekt bemutatása
Érdeklődöm