2 szobás 48 m2-es Metropol13 4. ütem - Budapest XIII. kerület, Lehel utca 27.
- Ingatlan adatok
-
Alapterület: 48 m2
-
Regisztrációs szám: 10534387
-
Szobák: 2 szoba
-
Típus:
-
Ár: 57 500 000 Ft
-
Várható átadás: 2025. IV. negyedév
-
Fűtés: Egyéb
-
FIX 3% hitelre alkalmas: Igen
Leírás
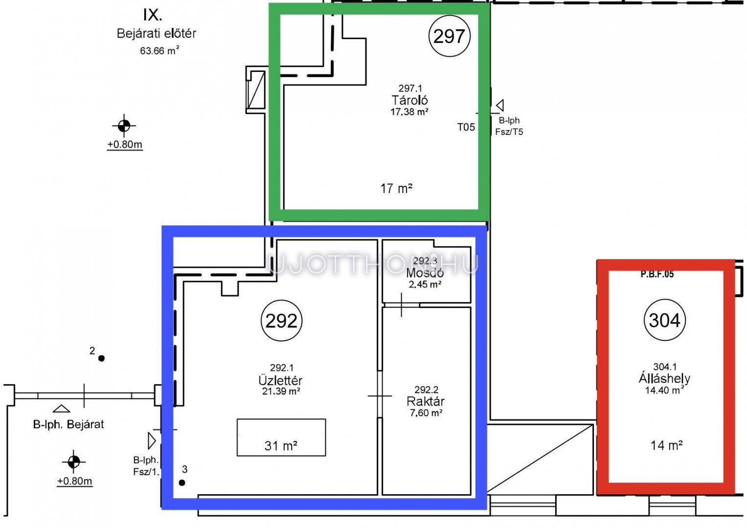
Eladó üzlethelyiség a Metropol13 3. ütemében.
Az üzlettér laminált parkettával, a mosdó hidegburkolattal burkolva, padlófűtéssel ellátva.
Vételár: 57,5 m ft + áfa
Cím: 1132 Bp., Lőportár köz 6.
Üzlettér: 31 m2 (mosdóval)
Tároló: 17 m2 (egybe nyitható az üzlettel)
Parkolóhely 6,5 m ft + áfa, amelyet a vételár nem tartalmaz.
Megtekinthető időpontegyeztetéssel!
AZ ÉPÜLETRŐL
A METROPOL13 a Lehel út és a Lőportár közt összekötő több, mint 6000 négyzetméteres területen épül. A négy ütemben megvalósuló épületegyüttes 1. ütemében 48, 2. ütemében 48, a 3. ütemében 90 és a 4. ütemében pedig 95 változatos elosztású lakást álmodtunk meg a stúdió lakástól a 100 nm-es, exkluzív nagyteraszos penthouse lakásokig.
Az épületegyütteshez egy több mint 3000 nm-es, zárt, parkosított kert tartozik, amit kizárólag az itt lakók használhatnak. A neves tervező által megálmodott épület homlokzati formáját tekintve modern, fiatalos követve korábbi projektjeink egyedi vonalvezetését.
A lakásokba beépített anyagok magas minőséget képviselnek. A korszerű hang és hőszigetelés hozzájárul az épület energiahatékonyságához. Minden lakás mennyezet hűtés-fűtési rendszerrel és távirányítós, elektromos aluredőnyökkel kerül kialakításra. A lakópark területén térfigyelő kamerarendszer fog működni.
A KÖRNYÉKRŐL
A Metropol 13 lakópark a XIII. kerület központi helyén, a Westend City Center szomszédságában, a Lehel út és a Lőportárköz közti területen kerül megvalósításra. A kerület ezen részét az elmúlt években megindult fejlesztéseknek és az infrastrukturális fejlődésnek köszönhetően méltán hívhatjuk a fejlődés központjának.
A Metropol 13 közlekedés szempontjából is rengeteg előnnyel bír. A közösségi közlekedést tekintve karnyújtásnyira található az M3-as metró, a 12-es és 14-es villamos, illetve számos buszjárat, de az autóval közlekedők számára is könnyedén megközelíthető.
Az ideális elhelyezkedésnek köszönhetően minden szolgáltatás elérhető közelségben van. A Westend City Center, a Lehel téri piac, Gyógyszertár, ATM, posta, éttermek és kávézók, továbbá a családok részére is számos iskola és óvoda áll rendelkezésre.
Akik szeretnének kimozdulni a nyüzsgő nagyváros forgatagából, és nyugodt, természetes környezetben kipihenni a hétköznapok fáradalmait, azoknak több zöldövezeti rész- pl.: a Margit-sziget, vagy a megújult Városliget – is pár perc sétával elérhető.
Budapest legnépszerűbb irodapiaci lokációja, a Váci úti irodafolyosó közelsége is nagy előnyt jelent, mind befektetési, mind pedig szolgáltatási, szórakozási/kikapcsolódási lehetőségek szempontjából.
A METROPOL13 a Lehel út és a Lőportár közt összekötő több mint 6000 négyzetméteres területen épül. A 4 ütemben megvalósuló épületegyüttes 1. ütemében 48, 2. ütemében 48, a 3. ütemében 90, a 4. ütemében pedig 95 változatos elosztású lakást álmodtunk meg a stúdió lakástól a 100 nm-es, nagyteraszos lakásig. A földszinti lakások gyönyörű díszkertre néznek, míg a legfelső emeleteken exkluzív penthouse lakások kerülnek kialakításra.
Az összesen 281 lakásos fejlesztéshez egy több mint 3000 nm-es, zárt, parkosított kert tartozik, amit kizárólag az itt lakók használhatnak. A neves tervező által megálmodott épület homlokzati formáját tekintve modern, fiatalos követve korábbi projektjeink egyedi vonalvezetését.
ELŐNYÖK:
• A+ ENERGETIKAI BESOROLÁSÚ ÉPÜLET ÉS LAKÁSOK
• Mennyezeti hűtés-fűtés (hőszivattyú)
• Elektromos, távirányítós aluredőnyök az árban
• Parkolók, tárolók opcionálisan vásárolhatók
• 25%-75% fizetési ütemezés
KÖRNYÉKRŐL:
A Metropol 13 lakópark a XIII. kerület központi helyén, a Westend City Center szomszédságában, a Lehel út és a Lőportárköz közti területen kerül megvalósításra. A kerület ezen részét az elmúlt években megindult fejlesztéseknek és az infrastrukturális fejlődésnek köszönhetően méltán hívhatjuk a fejlődés központjának.
A Metropol 13 közlekedés szempontjából is rengeteg előnnyel bír. A közösségi közlekedést tekintve karnyújtásnyira található az M3-as metró, a 12-es és 14-es villamos, illetve számos buszjárat, de az autóval közlekedők számára is könnyedén megközelíthető.
Akik szeretnének kimozdulni a nyüzsgő nagyváros forgatagából, és nyugodt, természetes környezetben kipihenni a hétköznapok fáradalmait, azoknak több zöldövezeti rész- pl.: a Margit-sziget, vagy a megújuló Városliget – is pár perc sétával elérhető.
Budapest legnépszerűbb irodapiaci lokációja, a Váci úti irodafolyosó közelsége is nagy előnyt jelent, mind szolgáltatási, mind szórakozási/kikapcsolódási lehetőségek szempontjából.
Projekt bemutatása
A METROPOL13 a Lehel út és a Lőportár közt összekötő több mint 6000 négyzetméteres területen épül. A 4 ütemben megvalósuló épületegyüttes 1. ütemében 48, 2. ütemében 48, a 3. ütemében 90, a 4. ütemében pedig 95 változatos elosztású lakást álmodtunk meg a stúdió lakástól a 100 nm-es, nagyteraszos lakásig. A földszinti lakások gyönyörű díszkertre néznek, míg a legfelső emeleteken exkluzív penthouse lakások kerülnek kialakításra.
Az összesen 281 lakásos fejlesztéshez egy több mint 3000 nm-es, zárt, parkosított kert tartozik, amit kizárólag az itt lakók használhatnak. A neves tervező által megálmodott épület homlokzati formáját tekintve modern, fiatalos követve korábbi projektjeink egyedi vonalvezetését.
ELŐNYÖK:
• A+ ENERGETIKAI BESOROLÁSÚ ÉPÜLET ÉS LAKÁSOK
• Mennyezeti hűtés-fűtés (hőszivattyú)
• Elektromos, távirányítós aluredőnyök az árban
• Parkolók, tárolók opcionálisan vásárolhatók
• 25%-75% fizetési ütemezés
KÖRNYÉKRŐL:
A Metropol 13 lakópark a XIII. kerület központi helyén, a Westend City Center szomszédságában, a Lehel út és a Lőportárköz közti területen kerül megvalósításra. A kerület ezen részét az elmúlt években megindult fejlesztéseknek és az infrastrukturális fejlődésnek köszönhetően méltán hívhatjuk a fejlődés központjának.
A Metropol 13 közlekedés szempontjából is rengeteg előnnyel bír. A közösségi közlekedést tekintve karnyújtásnyira található az M3-as metró, a 12-es és 14-es villamos, illetve számos buszjárat, de az autóval közlekedők számára is könnyedén megközelíthető.
Akik szeretnének kimozdulni a nyüzsgő nagyváros forgatagából, és nyugodt, természetes környezetben kipihenni a hétköznapok fáradalmait, azoknak több zöldövezeti rész- pl.: a Margit-sziget, vagy a megújuló Városliget – is pár perc sétával elérhető.
Budapest legnépszerűbb irodapiaci lokációja, a Váci úti irodafolyosó közelsége is nagy előnyt jelent, mind szolgáltatási, mind szórakozási/kikapcsolódási lehetőségek szempontjából.
Metropol13 4. ütem
