3 szobás 82 m2-es Lakás Jász Liget 135 - Budapest XIII. kerület, Angyalföld, Jász utca 135-137

176 M Ft
  • Ingatlan adatok
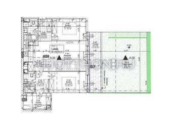
  • Alapterület: 82 m2
  • Regisztrációs szám: 10711281
  • Szobák: 3 szoba
  • Típus: Lakás
  • Ár: 176 000 000 Ft
  • Várható átadás: 2028. II. negyedév
  • Emelet: földszint
  • Telek méret: 52 m2
  • Fűtés: Egyéb

Leírás

A Jász utca 135–137. szám alatt megvalósuló modern társasház a kortárs városi élet minőségi megfogalmazása. Az épület tervezése során a funkcionalitás, az esztétika és a hosszú távú értékteremtés egyaránt meghatározó szerepet kapott.

A letisztult, időtálló homlokzati megjelenés és az átgondolt térszervezés harmonikus egységet alkot. A lakások világos, jól bútorozható terei a nagy üvegfelületeknek és praktikus elosztásnak köszönhetően élhető, komfortos otthont biztosítanak.

Az épület korszerű műszaki tartalommal és energiahatékony megoldásokkal készül, amely gazdaságos fenntartást és stabil értékállóságot jelent a tulajdonosok számára. Az igényesen kialakított közös terek és a rendezett környezet tovább erősítik a projekt prémium jellegét.

Ez nem csupán egy új építésű társasház – hanem egy tudatos döntés azok számára, akik értéket keresnek ma, és biztonságot hosszú távra.

A projekt legnagyobb erőssége a tudatos tervezés és a minőségi kivitelezés összhangja. A korszerű műszaki megoldások és az energiahatékony rendszerek nemcsak kényelmet, hanem hosszú távon is gazdaságos fenntarthatóságot biztosítanak.

A lakások átgondolt alaprajzi kialakítása élhető, jól bútorozható tereket eredményez, ahol a természetes fény, a funkcionalitás és az esztétikum egyaránt meghatározó. Az időtálló építészeti megjelenés stabil értéket képvisel, amely a folyamatosan fejlődő környezettel együtt hosszú távú befektetési biztonságot nyújt.

A kiváló elhelyezkedés, a fejlett infrastruktúra és a városrész növekvő presztízse tovább erősíti az ingatlan értékállóságát. A projekt ideális választás mind saját otthon megteremtésére, mind tudatos, jövőorientált befektetésként.

Mert az igazi döntés nem egy napra szól.

A XIII. kerület dinamikusan fejlődő része kiváló elhelyezkedést biztosít mind saját célra, mind befektetésként. A környék infrastruktúrája kiemelkedő: üzletek, bevásárlási lehetőségek, éttermek, kávézók és szolgáltatások mind néhány perc távolságra elérhetők.

A tömegközlekedési kapcsolatok gyors és kényelmes eljutást biztosítanak a belváros és a város más pontjai felé. A közelben található parkok és zöldterületek lehetőséget adnak a kikapcsolódásra, sportolásra és családi programokra.

A környék folyamatos fejlődése hosszú távon is stabil értéknövekedési potenciált jelent, így az itt vásárolt ingatlan nemcsak otthon, hanem tudatos befektetés is.

Projekt bemutatása


A Jász utca 135–137. szám alatt megvalósuló modern társasház a kortárs városi élet minőségi megfogalmazása. Az épület tervezése során a funkcionalitás, az esztétika és a hosszú távú értékteremtés egyaránt meghatározó szerepet kapott.
A letisztult, időtálló homlokzati megjelenés és az átgondolt térszervezés harmonikus egységet alkot. A lakások világos, jól bútorozható terei a nagy üvegfelületeknek és praktikus elosztásnak köszönhetően élhető, komfortos otthont biztosítanak.
Az épület korszerű műszaki tartalommal és energiahatékony megoldásokkal készül, amely gazdaságos fenntartást és stabil értékállóságot jelent a tulajdonosok számára. Az igényesen kialakított közös terek és a rendezett környezet tovább erősítik a projekt prémium jellegét.
Ez nem csupán egy új építésű társasház – hanem egy tudatos döntés azok számára, akik értéket keresnek ma, és biztonságot hosszú távra.

A projekt legnagyobb erőssége a tudatos tervezés és a minőségi kivitelezés összhangja. A korszerű műszaki megoldások és az energiahatékony rendszerek nemcsak kényelmet, hanem hosszú távon is gazdaságos fenntarthatóságot biztosítanak.
A lakások átgondolt alaprajzi kialakítása élhető, jól bútorozható tereket eredményez, ahol a természetes fény, a funkcionalitás és az esztétikum egyaránt meghatározó. Az időtálló építészeti megjelenés stabil értéket képvisel, amely a folyamatosan fejlődő környezettel együtt hosszú távú befektetési biztonságot nyújt.
A kiváló elhelyezkedés, a fejlett infrastruktúra és a városrész növekvő presztízse tovább erősíti az ingatlan értékállóságát. A projekt ideális választás mind saját otthon megteremtésére, mind tudatos, jövőorientált befektetésként.
Mert az igazi döntés nem egy napra szól.

A XIII. kerület dinamikusan fejlődő része kiváló elhelyezkedést biztosít mind saját célra, mind befektetésként. A környék infrastruktúrája kiemelkedő: üzletek, bevásárlási lehetőségek, éttermek, kávézók és szolgáltatások mind néhány perc távolságra elérhetők.
A tömegközlekedési kapcsolatok gyors és kényelmes eljutást biztosítanak a belváros és a város más pontjai felé. A közelben található parkok és zöldterületek lehetőséget adnak a kikapcsolódásra, sportolásra és családi programokra.
A környék folyamatos fejlődése hosszú távon is stabil értéknövekedési potenciált jelent, így az itt vásárolt ingatlan nemcsak otthon, hanem tudatos befektetés is.

Jász Liget 135

Átadás:
2028. II. negyedév
Lakások száma:
48
Árak:
85 - 585 M Ft
Méret:
0 - 82 m2
Szobák:
0 - 3 szoba
Projekt bemutatása
Érdeklődöm