5 szobás 158 m2-es Lakás Ér Garden Homes - Budapest III. kerület, Táborhegy
- Ingatlan adatok
-
Alapterület: 158 m2
-
Regisztrációs szám: P4756-A-01-01-002
-
Szobák: 5 szoba
-
Típus: Lakás
-
Ár: 419 000 000 Ft
-
Várható átadás: 2025. III. negyedév
-
Emelet: 1. emelet
-
Méret (bruttó): 158 m2
-
Terasz méret: 60.00 m2
-
Fűtés: hoszivattyus_futes
-
Fürdőszobák száma: 3
-
Belmagasság: 270.0 cm
-
Tároló: Kötelezően vásárolandó
-
Tájolás: K
-
Garázs: Kötelezően vásárolandó
-
Kilátás: utcai
-
Lépcsőház jellege: zárt lépcsőházas
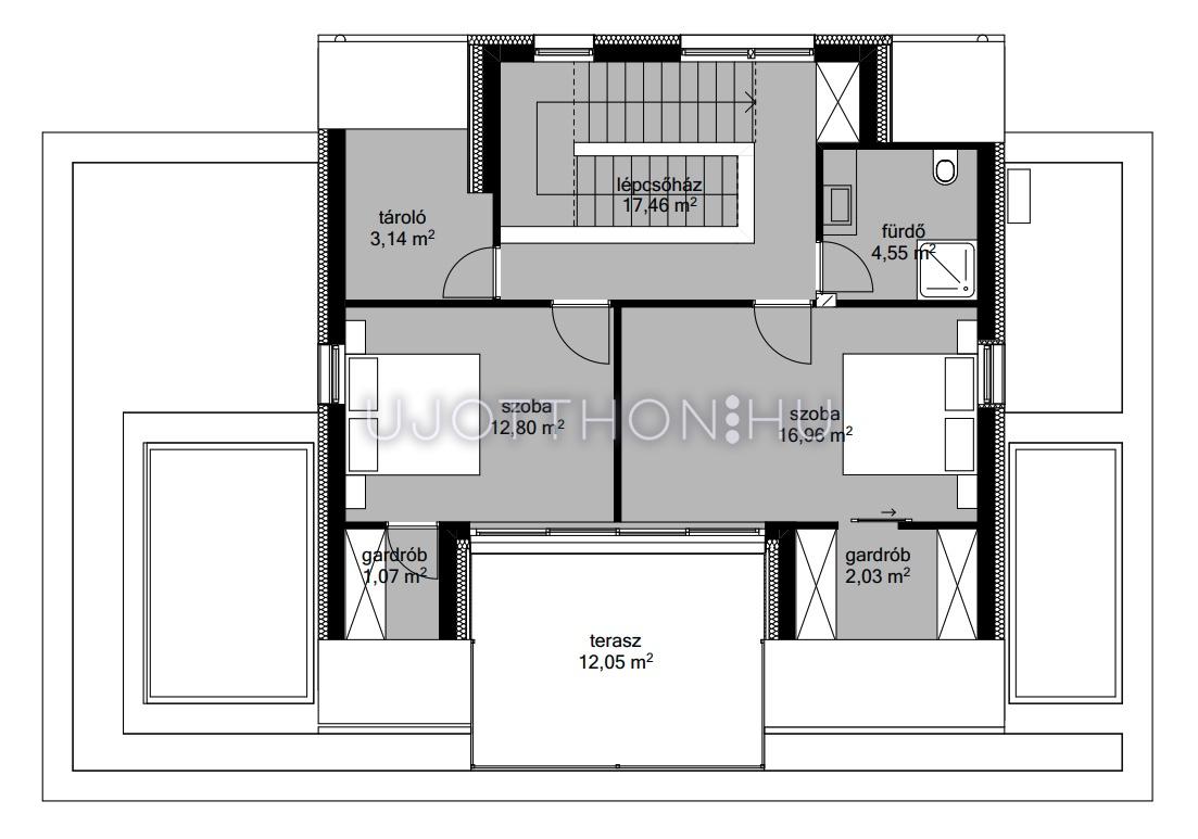
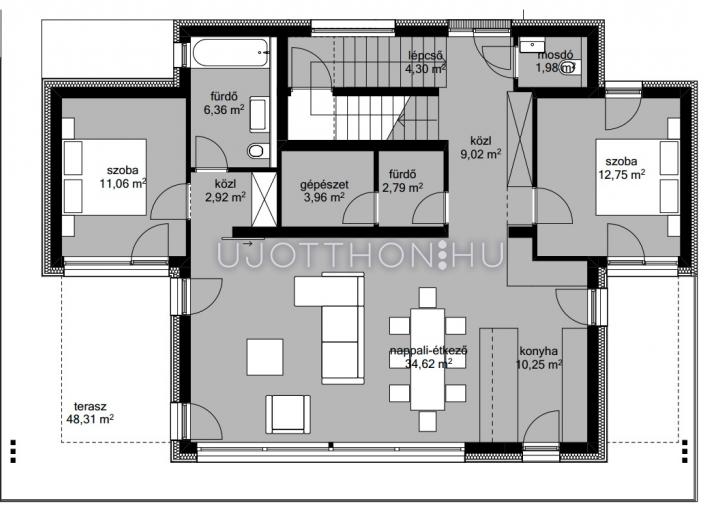
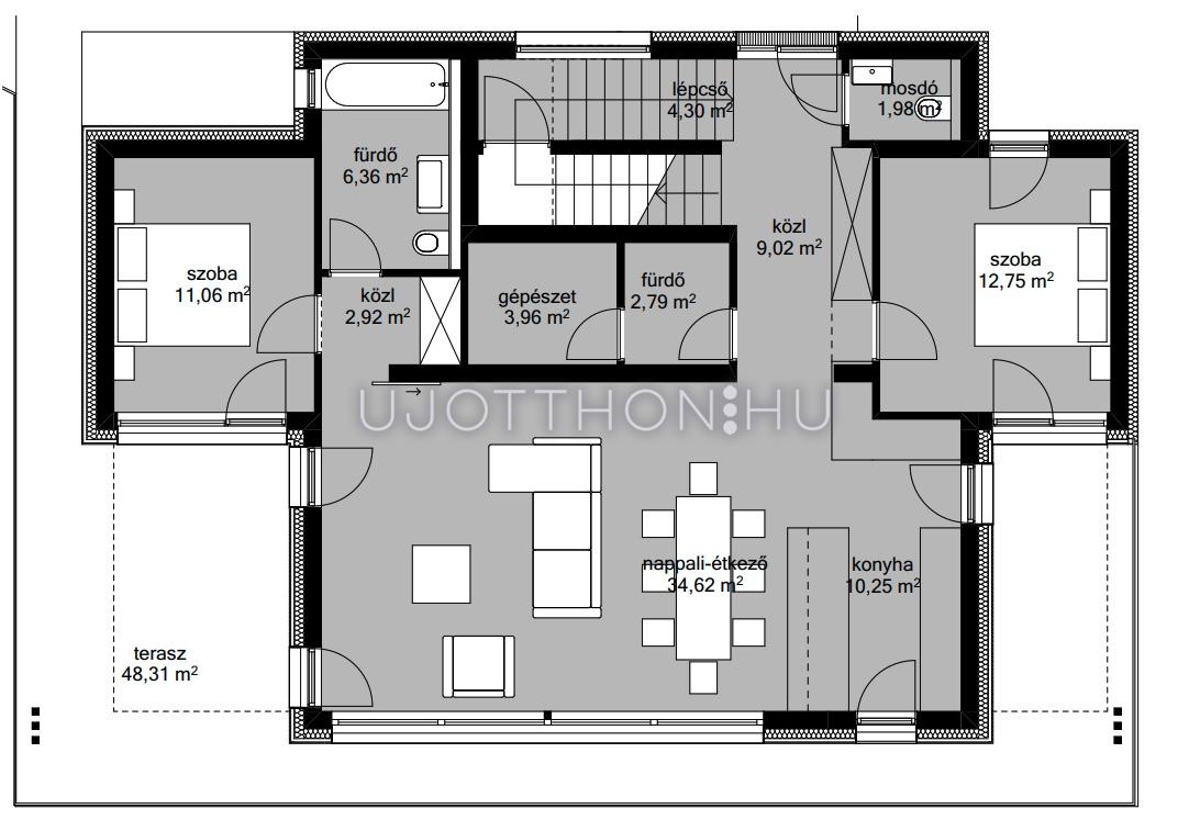
- Helyiségek
-
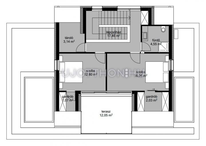
lépcsőház 4.3 m2
-
közlekedő 9.02 m2
-
wc-kézmosó 1.98 m2
-
hálószoba 12.75 m2
-
fürdőszoba-wc 2.79 m2
-
háztartási helyiség 3.96 m2
-
nappali-étkező 34.62 m2
-
konyha 10.25 m2
-
közlekedő 2.92 m2
-
hálószoba 11.06 m2
-
fürdőszoba-wc 6.36 m2
-
terasz 48.31 m2
-
lépcsőház 17.46 m2
-
fürdőszoba-wc 4.55 m2
-
hálószoba 16.96 m2
-
gardrób 2.03 m2
-
hálószoba 12.8 m2
-
gardrób 1.07 m2
-
tároló 3.14 m2
Leírás
Projekt bemutatása
Kortárs építészet, családbarát környezetben, azonnal költözhetően. Üdv itthon!
RÖVID ÖSSZEFOGLALÓ
A III. kerület Táborhegyhez tartozó, zöldövezeti részén, egy eldugott, forgalomtól mentes mellékutcában épült meg az ÉR Garden Homes.
A projektben két modern, letisztult vonalvezetésű épület kapott helyet, összesen négy tágas, családi otthonnal.
A házakat önálló hőszivattyús fűtés- és hűtésrendszer, padló- és mennyezeti hőleadás, valamint Loxone épületautomatizálás teszi korszerűvé.
A kertek automata öntözőrendszerrel és robotfűnyíróval felszereltek, a teraszok télen-nyáron használhatók, a belső terek pedig minőségi beépített bútorokkal és gépesített konyhával készültek.
A projekt elkészült, így az új tulajdonosokat valóban csak a beköltözés öröme várja.
LOKÁCIÓ
Az ÉR Garden Homes a III. kerületben, Táborhegy és Testvérhegy határán, az Ér utcában található – egy forgalomtól mentes, nyugodt mellékutcában, ahol a kertvárosi hangulat és a városi infrastruktúra ideális arányban van jelen.
Közlekedés és elérhetőség
Az ingatlan autóval és tömegközlekedéssel is kiválóan megközelíthető.
A Bécsi út és a Vörösvári út néhány percre található, így a belváros, a Szentendrei út vagy az M0-s körgyűrű is gyorsan elérhető.
A 137-es, 237-es és 260-as buszjáratok néhány perc sétával elérhetők, a H5-ös HÉV pedig Csillaghegy és Békásmegyer irányából biztosít közvetlen kapcsolatot a belvárossal.
SZOLGÁLTATÁSOK ÉS INFRASTRUKTÚRA:
A mindennapi élethez szükséges minden megtalálható a közelben:
bevásárlási lehetőségek (GoBuda, Stop Shop, Aldi, Lidl),
valamint gyógyszertár, posta, pékség, helyi kisboltok is percek alatt elérhetők.
A környék iskolái és óvodái kimondottan népszerűek a családosok körében — többek között a Medgyessy Ferenc Általános Iskola, a Zöld Óvoda, valamint a Táborhegyi Népház programjai is vonzzák a környékbelieket.
ÉLETMÓD ÉS HANGULAT:
Táborhegyet a zöld, levegős utcák, a nyugalom, és a barátságos közösség jellemzik.
A környék lakói szeretik, hogy a természet karnyújtásnyira van: a Táborhegyi Park, a Testvérhegyi lejtők és a Római-part is néhány perc alatt elérhetők.
A hétvégék itt gyakran a kertben, a teraszon vagy a Duna-parti kávézókban telnek — ez az a ritka városi helyszín, ahol a városi kényelem és a kertvárosi béke valóban találkozik.
PROJEKT
A projekt két, letisztult vonalvezetésű, modern megjelenésű épületből áll, összesen négy lakással.
A homlokzatot világos tónusok, természetes fa részletek és nagy üvegfelületek jellemzik, melyek a nappali terekbe áramló fényt még hangsúlyosabbá teszik.
A tervezés célja egyértelmű volt: praktikus, élhető és hosszú távon értékálló otthonokat létrehozni.
A házak önálló hőszivattyús rendszert kaptak, a hőleadás padlón és mennyezeten történik, ami egyenletes hőérzetet és alacsony fenntartási költséget biztosít.
A Loxone épületautomatizálás segítségével a világítás, árnyékolás, hőmérséklet, szellőztetés, audió és a biztonsági funkciók is intelligensen vezérelhetők – a modern technológia diszkréten, mégis látványosan szolgálja a kényelmet.
Az ingatlanokhoz opcionálisan vásárolható garázs + tároló ára 10M + 10M Ft/db.
OTTHONOK
A lakások térszervezése egyszerre logikus és érzékeny.
A nappali terek tágasak, fényben úsznak, a nagy üvegfelületek finoman keretezik a kert látványát.
A fedett teraszok a nappalik természetes folytatásai – az üvegfalak mögött a külső és belső határa szinte eltűnik.
A kertek gondosan füvesítettek, öntözőrendszerrel és robotfűnyíróval felszereltek, így valóban gondtalanul tarthatók.
A konyhák teljesen gépesítettek, az egyedi bútorok és a fa felületek természetes melegséget hoznak a terekbe.
A hálószobák intimek, jól elkülönülnek a közösségi zónáktól, a fürdők modern, mégis időtálló burkolatokkal készültek.
A világítás koncepciója tudatosan épít a fények hangulatkeltő szerepére – estére a terek puha, meghitt tónusba váltanak.
Ha Ön is modern, kis lakóközösségű, zöld környezetben épült otthont keres Óbuda egyik legkedveltebb részén, az ÉR Garden Homes-ban megtalálta.
Tekintse meg személyesen, és tapasztalja meg, milyen, amikor az új otthon tényleg csak Önre.
Ér Garden Homes