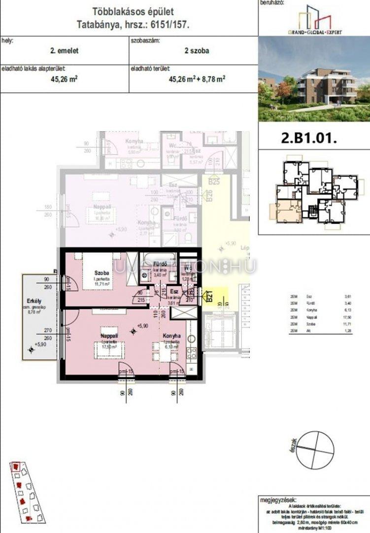
2 szobás 45 m2-es Lakás Liget Lakópark - Tatabánya, Kertváros, Alkotmány utca 1/A

48.57 M Ft
  • Ingatlan adatok
  • Alapterület: 45 m2
  • Regisztrációs szám: 10605596
  • Szobák: 2 szoba
  • Típus: Lakás
  • Ár: 48 572 136 Ft
  • Várható átadás: 2027. II. negyedév
  • Fűtés: Egyéb
  • Lift: Van
  • FIX 3% hitelre alkalmas: Igen

Leírás

ÚJ TÁRSASHÁZI PROJEKT TATABÁNYÁN
Otthonok a kertváros szívében

A GGE Invest Kft. hamarosan megkezdi legújabb, eddigi legnagyobb volumenű, városrészt formáló beruházását Tatabánya egyik legkedveltebb városrészében, Kertvárosban. A modern stílusú társasház nyugodt, zöldövezeti környezetben, kiváló közlekedési kapcsolatok és fejlett városi infrastruktúra közelében épül. A tervezés során kiemelt figyelmet fordítottunk a praktikusságra, élhetőségre és energiahatékonyságra – így garantálva az időtálló értéket és a kényelmes mindennapokat.

Előértékesítésben – Modern lakások Tatabánya Kertvárosában
Megbízható fejlesztőtől kínálunk új építésű, korszerű társasházi lakásokat Tatabánya egyik legszebb, kertvárosi részén. A projekt lakásai fűtéskész vagy kulcsrakész állapotban leköthetők, a várható átadás 2027. április hónapban történik.
Az ingatlan a csendes, mégis központi fekvésű Petőfi Sándor utcából nyíló mellékutcában valósul meg. A környék lakóövezetként jól kiépült, családi házak és kisebb társasházak jellemzik. A városközpont, az ipari park, valamint az 1-es főút és az M1-es autópálya könnyen elérhető, a tömegközlekedés pedig gyors és kényelmes kapcsolatot biztosít Tatabánya minden részével.

LAKÁSOK
A lakások legfontosabb jellemzői:
•Lakásméretek: 28–90 m²-es, jól átgondolt elrendezésű otthonok
•Energiahatékony megoldások:
•Központi hőszivattyús fűtés padlófűtéssel
•Fan-coil hűtés előkészítés, rendelhető egységekkel
•Műanyag, 3 rétegű üvegezésű nyílászárók árnyékolással
•15 cm vastag homlokzati hőszigetelés
•A - A+ energetikai besorolás
•Alacsony fenntartási költségek: lakásonkénti almérőkkel ellátott közműrendszer
•Igény szerint elérhető: okos otthon funkciók
•Parkolás: felszíni és mélygarázsos parkolóhelyek, akár elektromos autótöltési lehetőséggel
•Tárolók: külön megvásárolhatók

Ideális választás befektetőknek és otthont keresőknek is:
•Kiváló elhelyezkedés, jó közlekedési kapcsolatokkal
•Modern építészeti és műszaki kialakítás
•Jogosult a támogatási programokra, beleértve az Otthon Start Programot is
•Átlátható, biztonságos ügyintézés: saját ügyvédi háttér és előkészített társasházi alapító okirat
•Szakértői támogatás pénzügyi és hitelmegoldásokban


Akár első otthonát keresi, akár jövedelmező befektetésben gondolkodik, projektünkben biztosan megtalálja a megfelelő lakást. Lépjen kapcsolatba velünk, és válassza ki az Ön számára tökéletes otthont még az építkezés korai szakaszában!

Bővebb tájékoztatásért forduljon hozzánk bizalommal elérhetőségeinken.

Projekt bemutatása


ÚJ TÁRSASHÁZI PROJEKT TATABÁNYÁN
Otthonok a kertváros szívében

A GGE Invest Kft. hamarosan megkezdi legújabb, eddigi legnagyobb volumenű, városrészt formáló beruházását Tatabánya egyik legkedveltebb városrészében, Kertvárosban. A modern stílusú társasház nyugodt, zöldövezeti környezetben, kiváló közlekedési kapcsolatok és fejlett városi infrastruktúra közelében épül. A tervezés során kiemelt figyelmet fordítottunk a praktikusságra, élhetőségre és energiahatékonyságra – így garantálva az időtálló értéket és a kényelmes mindennapokat.

Előértékesítésben – Modern lakások Tatabánya Kertvárosában
Megbízható fejlesztőtől kínálunk új építésű, korszerű társasházi lakásokat Tatabánya egyik legszebb, kertvárosi részén. A projekt lakásai fűtéskész vagy kulcsrakész állapotban leköthetők, a várható átadás 2027. április hónapban történik.
Az ingatlan a csendes, mégis központi fekvésű Petőfi Sándor utcából nyíló mellékutcában valósul meg. A környék lakóövezetként jól kiépült, családi házak és kisebb társasházak jellemzik. A városközpont, az ipari park, valamint az 1-es főút és az M1-es autópálya könnyen elérhető, a tömegközlekedés pedig gyors és kényelmes kapcsolatot biztosít Tatabánya minden részével.

LAKÁSOK
A lakások legfontosabb jellemzői:
•Lakásméretek: 28–90 m²-es, jól átgondolt elrendezésű otthonok
•Energiahatékony megoldások:
•Központi hőszivattyús fűtés padlófűtéssel
•Fan-coil hűtés előkészítés, rendelhető egységekkel
•Műanyag, 3 rétegű üvegezésű nyílászárók árnyékolással
•15 cm vastag homlokzati hőszigetelés
•A - A+ energetikai besorolás
•Alacsony fenntartási költségek: lakásonkénti almérőkkel ellátott közműrendszer
•Igény szerint elérhető: okos otthon funkciók
•Parkolás: felszíni és mélygarázsos parkolóhelyek, akár elektromos autótöltési lehetőséggel
•Tárolók: külön megvásárolhatók

Ideális választás befektetőknek és otthont keresőknek is:
•Kiváló elhelyezkedés, jó közlekedési kapcsolatokkal
•Modern építészeti és műszaki kialakítás
•Jogosult a támogatási programokra, beleértve az Otthon Start Programot is
•Átlátható, biztonságos ügyintézés: saját ügyvédi háttér és előkészített társasházi alapító okirat
•Szakértői támogatás pénzügyi és hitelmegoldásokban


Akár első otthonát keresi, akár jövedelmező befektetésben gondolkodik, projektünkben biztosan megtalálja a megfelelő lakást. Lépjen kapcsolatba velünk, és válassza ki az Ön számára tökéletes otthont még az építkezés korai szakaszában!

Bővebb tájékoztatásért forduljon hozzánk bizalommal elérhetőségeinken.

Liget Lakópark

Átadás:
2027. II. negyedév
Lakások száma:
18
Árak:
30.8 - 104.2 M Ft
Méret:
27 - 98 m2
Szobák:
1 - 4 szoba
Projekt bemutatása
Érdeklődöm