4 szobás 72 m2-es Sorház Garden Lakópark III. ütem - Székesfehérvár, Maroshegy, Tasnádi utca

87.8 M Ft
  • Ingatlan adatok
  • Alapterület: 72 m2
  • Regisztrációs szám: 10222867
  • Szobák: 4 szoba
  • Típus: Sorház
  • Ár: 87 800 000 Ft
  • Várható átadás: 2025. IV. negyedév
  • Telek méret: 100 m2
  • Fűtés: Egyéb
  • FIX 3% hitelre alkalmas: Igen

Leírás

Már a hirdetés első hetében elkelt a sorházak 40%. -a
Már csak 7 db maradt!!
Házat vehet lakás árán! Átmenet a lakás és a családi ház között.
Elindult a Garden Lakópark következő üteme!!!
Székesfehérváron a Tasnádi utcában, egyedüli, csak nálunk elérhető KERTES SORHÁZAKKAL.
Felszíni beálló: 2 500 000 Ft (opcionális)
Zárt tároló: 2 500 000 Ft (opcionális)
74nm összterület két szinten, zárt kerítéssel körbe ölelt, saját kertkapcsolattal, előkerttel, zárt tárolóval és felszíni parkolóval.
Miért válassza sorházainkat?
• Megfizethetőség: olcsóbb, mint egy családiház, de több teret kínál, mint egy lakás
• Nincs alsó és felső szomszéd
• Intim szféra
• Kétoldalról benapozott épület: délkeleti-délnyugati fekvésű.
• Saját tetőfelület napelemekkel
• Tárolási lehetőség lépcső alatt és a tetőtérben
• Saját kerthasználat átlátást gátló 180cm magas kerítéssel
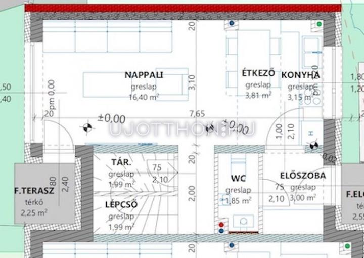
FÖLDSZINT
• Tágas belépő
• Vendég WC zuhanyzóval
• A nappali, konyha és az étkező, egy légtérben van kialakítva. A nappaliból érhető el a kertkapcsolat.
• A lépcsőfeljáró alatt, mosókonyha/tároló helyiség kerül kialakításra.
EMELET
Az emeletre lépcsőn juthatunk fel, ahol 3 külön nyíló hálószoba, WC és a fürdőszoba helyezkedik el. A lépcsőfordulóban padlástér kialakítása.
• Mindegyik lakáshoz tartozik saját kert/udvar. Némelyik lakásnak előkertje és oldalkertje is van. Az úgynevezett hátsó kertkapcsolat 180cm magas esztétikus kerítéssel körbe ölelt privát terület. A nappaliból lehet megközelíteni, kialakított teraszon keresztül.
• Gondozásmentes kert kialakítható
-robotfűnyíró
-öntözőrendszer
-gyepszőnyeg
-kerti zuhany
-jakuzzi
Tapasztalt, megbízható beruházó!
Minőségi anyagokból! Pl: LEIER hang gátló fal.
Az építkezés 2025 januárjában indul.
Kulcsrakész átadás: 2025 október
Projektirodánk a helyszínen, Székesfehérvár Tasnádi utca 8/A fsz1 alatt elérhető.
Díjtalan hitelügyintézés!
-5% ÁFA visszatérítés
-illetékmentesség
-egyedi kamatkedvezményes lakás hitelek
-CSOK plusz
-babaváró hitel
-munkás hitel
Rugalmas fizetési feltételek!
Segítünk eladni meglévő ingatlanát is!
Részletes műszaki leírás!
www.gardenlakopark.hu

A JT Capital Hungary Kft.-t 2015.-ben alapítottuk. Székesfehérváron új építésű társasházi lakásokat építettünk. A közel 10 év alatt, megépült Székesfehérváron a PARKVÁROS Lakópark, 87 lakással és 50 mélygarázzsal, majd 2019.-ben elkezdődött a következő projekt a Garden lakópark építése 36 lakással, ezt követte a lakópark második üteme 20 lakással. Eddig 143 lakás épült összesen, a működésük alatt.
Az új, a Garden lakópark 3.-as üteme, egy újabb mérföldkő a cég életében. Figyelemmel kísérve működésük során a piaci környezetet, az vevői igényeket és elvárásokat, valamint a kínálati és keresleti oldal fejlődését vagy éppen lassulását, arra a döntésre jutottunk, hogy KERTES SORHÁZAKAT építünk! Hosszan mérlegelve, a vevők igényeit és a cég politikáját követve, született meg a végleges döntés.
A Jt Capital Hungary Kft egy cégcsoport tagja, hiszen a tulajdonosi kör Győr. -ben is társasházak építésével foglalkozik. Abból tanulva, hogy a Szabadhegybau Kft Győrben, már évek óta KERTES SORHÁZAKAT épít, segítség volt a döntésben. Szerettünk volna Székesfehérváron is elérhetővé tenni a KERTES SORHÁZAKAT. A Garden lakópark elhelyezkedése ezt lehetővé is teszi! Gyönyörű zöld fás, családi házas övezetben, a sorházi lakások biztosítanak a lakók számára családiházas hangulatot. A lakások mindegyike, élhető, berendezhető, és a saját kertkapcsolat, belátást gátló kerítéssel körbe ölelt, intim területtel. Ez az új projekt ismét azt mutatja, hogy a JT Capital Hungary Kft. folyamatosan fejlődik és bővíti portfólióját, miközben továbbra is elkötelezett a minőségi és innovatív építkezések iránt.

Projekt bemutatása


Már a hirdetés első hetében elkelt a sorházak 40%. -a
Már csak 7 db maradt!!
Házat vehet lakás árán! Átmenet a lakás és a családi ház között.
Elindult a Garden Lakópark következő üteme!!!
Székesfehérváron a Tasnádi utcában, egyedüli, csak nálunk elérhető KERTES SORHÁZAKKAL.
Felszíni beálló: 2 500 000 Ft (opcionális)
Zárt tároló: 2 500 000 Ft (opcionális)
74nm összterület két szinten, zárt kerítéssel körbe ölelt, saját kertkapcsolattal, előkerttel, zárt tárolóval és felszíni parkolóval.
Miért válassza sorházainkat?
• Megfizethetőség: olcsóbb, mint egy családiház, de több teret kínál, mint egy lakás
• Nincs alsó és felső szomszéd
• Intim szféra
• Kétoldalról benapozott épület: délkeleti-délnyugati fekvésű.
• Saját tetőfelület napelemekkel
• Tárolási lehetőség lépcső alatt és a tetőtérben
• Saját kerthasználat átlátást gátló 180cm magas kerítéssel
FÖLDSZINT
• Tágas belépő
• Vendég WC zuhanyzóval
• A nappali, konyha és az étkező, egy légtérben van kialakítva. A nappaliból érhető el a kertkapcsolat.
• A lépcsőfeljáró alatt, mosókonyha/tároló helyiség kerül kialakításra.
EMELET
Az emeletre lépcsőn juthatunk fel, ahol 3 külön nyíló hálószoba, WC és a fürdőszoba helyezkedik el. A lépcsőfordulóban padlástér kialakítása.
• Mindegyik lakáshoz tartozik saját kert/udvar. Némelyik lakásnak előkertje és oldalkertje is van. Az úgynevezett hátsó kertkapcsolat 180cm magas esztétikus kerítéssel körbe ölelt privát terület. A nappaliból lehet megközelíteni, kialakított teraszon keresztül.
• Gondozásmentes kert kialakítható
-robotfűnyíró
-öntözőrendszer
-gyepszőnyeg
-kerti zuhany
-jakuzzi
Tapasztalt, megbízható beruházó!
Minőségi anyagokból! Pl: LEIER hang gátló fal.
Az építkezés 2025 januárjában indul.
Kulcsrakész átadás: 2025 október
Projektirodánk a helyszínen, Székesfehérvár Tasnádi utca 8/A fsz1 alatt elérhető.
Díjtalan hitelügyintézés!
-5% ÁFA visszatérítés
-illetékmentesség
-egyedi kamatkedvezményes lakás hitelek
-CSOK plusz
-babaváró hitel
-munkás hitel
Rugalmas fizetési feltételek!
Segítünk eladni meglévő ingatlanát is!
Részletes műszaki leírás!
www.gardenlakopark.hu

A JT Capital Hungary Kft.-t 2015.-ben alapítottuk. Székesfehérváron új építésű társasházi lakásokat építettünk. A közel 10 év alatt, megépült Székesfehérváron a PARKVÁROS Lakópark, 87 lakással és 50 mélygarázzsal, majd 2019.-ben elkezdődött a következő projekt a Garden lakópark építése 36 lakással, ezt követte a lakópark második üteme 20 lakással. Eddig 143 lakás épült összesen, a működésük alatt.
Az új, a Garden lakópark 3.-as üteme, egy újabb mérföldkő a cég életében. Figyelemmel kísérve működésük során a piaci környezetet, az vevői igényeket és elvárásokat, valamint a kínálati és keresleti oldal fejlődését vagy éppen lassulását, arra a döntésre jutottunk, hogy KERTES SORHÁZAKAT építünk! Hosszan mérlegelve, a vevők igényeit és a cég politikáját követve, született meg a végleges döntés.
A Jt Capital Hungary Kft egy cégcsoport tagja, hiszen a tulajdonosi kör Győr. -ben is társasházak építésével foglalkozik. Abból tanulva, hogy a Szabadhegybau Kft Győrben, már évek óta KERTES SORHÁZAKAT épít, segítség volt a döntésben. Szerettünk volna Székesfehérváron is elérhetővé tenni a KERTES SORHÁZAKAT. A Garden lakópark elhelyezkedése ezt lehetővé is teszi! Gyönyörű zöld fás, családi házas övezetben, a sorházi lakások biztosítanak a lakók számára családiházas hangulatot. A lakások mindegyike, élhető, berendezhető, és a saját kertkapcsolat, belátást gátló kerítéssel körbe ölelt, intim területtel. Ez az új projekt ismét azt mutatja, hogy a JT Capital Hungary Kft. folyamatosan fejlődik és bővíti portfólióját, miközben továbbra is elkötelezett a minőségi és innovatív építkezések iránt.


Garden Lakópark III. ütem

Átadás:
2025. IV. negyedév
Lakások száma:
9
Árak:
0.6 - 87.8 M Ft
Méret:
72 - 300 m2
Szobák:
0 - 4 szoba
Projekt bemutatása
Érdeklődöm