3 szobás 72 m2-es Lakás 5lakásos - Sopron
- Ingatlan adatok
-
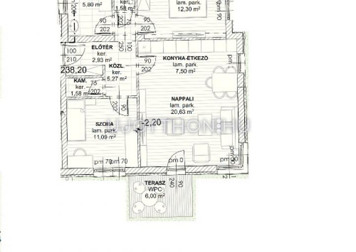
Alapterület: 72 m2
-
Regisztrációs szám: P3886-1-01-FZ-004
-
Szobák: 3 szoba
-
Típus: Lakás
-
Ár: 96 900 000 Ft
-
Várható átadás: 2022. III. negyedév
-
Méret (bruttó): 72 m2
-
Terasz méret: 6.00 m2
-
Fűtés: hoszivattyus_futes
-
Fürdőszobák száma: 1
-
Belmagasság: 260.0 cm
-
Tájolás: NY
-
Garázs: Külön vásárolható
-
Kilátás: zöld kerti
-
Lépcsőház jellege: zárt lépcsőházas
-
FIX 3% hitelre alkalmas: Igen
- Helyiségek
-
nappali 20.6 m2
-
hálószoba 12.3 m2
-
szoba 11 m2
-
fürdőszoba 5.8 m2
Leírás
Ebben az eladó új építésű soproni lakásban, mintha családi házban élne- saját 315 nm-es kert tartozik hozzá!!
Az ár magában foglalja a konyhabútort és a kerti öntözőrendszert.
Projekt bemutatása
Sopron családi házas övezetében, csendes utcában épülő társasház új építésű lakásait kínáljuk eladásra. Az egyedi tervezésnek köszönhetően, különböző típusú lakások kerültek kialakításra, saját kertrésszel.
Találunk itt kétszintes, akár két generációs nagy lakást, 2 autó beállóval vagy földszinti nagy kertest is.
A mai kor igényeinek megfelelően levegő-víz rendszerű hőszivattyús berendezések biztosítják a lakások energia ellátását.
Műszaki tartalomra és a kivitelezés minőségére a nagy múltú beruházó a garancia.
Amennyiben egyedi új építésű lakásra vágyik, itt megtalálja.
Garázs: 10 000 000 MFt, Fedett beálló: 5,8 Mft
Az Otthon Centrum az ország egyik legnagyobb és legmegbízhatóbb hitelközvetítőjeként, teljes körű és díjmentes hitel ügyintézéssel, biztosításkötéssel áll rendelkezésére!
Kérje személyre szabott ajánlatunkat Kollégáinktól!
5lakásos
