3 szobás 150 m2-es Lakás Villa Park - Siófok, Ezüstpart
- Ingatlan adatok
-
Alapterület: 150 m2
-
Regisztrációs szám: P3839-2-01-02-013
-
Szobák: 3 szoba
-
Típus: Lakás
-
Ár: 265 000 000 Ft
-
Várható átadás: 2026. I. negyedév
-
Méret (bruttó): 168 m2
-
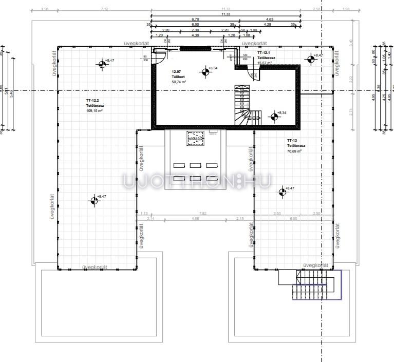
Terasz méret: 168.00 m2
-
Fűtés: hoszivattyus_futes
-
Fürdőszobák száma: 2
-
Belmagasság: 270.0 cm
-
Tájolás: É
-
Kilátás: zöld kerti
-
Lépcsőház jellege: függőfolyosó
-
Lift: Van
- Helyiségek
-
nappali-étkező 43.3 m2
-
konyha 17.88 m2
-
gardrób 5.44 m2
-
fürdőszoba 4.5 m2
-
szoba 15.31 m2
-
wc-kézmosó 1.69 m2
-
gardrób 5.44 m2
-
fürdőszoba 4.5 m2
-
wc-kézmosó 1.69 m2
-
szoba 15.31 m2
-
előszoba 8.89 m2
-
terasz 94 m2
-
tetőterasz 74 m2
Leírás
Balaton kedvelőinek kínáljuk eladásra.
Eladó Siófok Ezüstpartján közvetlenül a vízparton épült exkluzív társasházban, balatoni ÖRÖKPANORÁMÁS, második emeleti FRONTLAKÁS 95 nm terasszal+ hatalmas 75m2 TETŐTERASSZAL.
Az újonnan épült, luxus kategóriás társasház villa jellegű épület, amely közvetlenül a vízparton, az Ezüstpart legszebb partszakaszán épült, kis lakóközösség számára.
Az ingatlan 3 szintes, liftes téglaépület.
lakás elosztás:
- előtér
- külön wc
- fürdőszoba
- 2 db szoba
- nappali + étkező + konyha
- kamra
- terasz a lakás körül 94 nm
- 72 m2 tetőterasz
Műszaki jellemzők:
-3 rétegű argongázzal kitöltött műanyag nyílászárók , központi LG Multi V-5 hőszivattyús rendszerével kiépített hűtés-fűtés, 12 cm vastag külső hőszigetelő rendszere nemcsak szép, de kivételesen energia-hatékony. is.
- az apartmanok hűtése-fűtése a mai kor követelményeinek megfelelően VRF inverteres levegő-levegő hőszivattyús rendszerrel kiépítve
- fokozott hangszigetésű elválasztó falak
- a homlokzaton mészkőburkolat és színes műgyanta kötésű színezővakolat
- a teraszkorlátok rozsdamentes-szálcsiszolt oszlopok és kapaszkodók, ragasztott biztonsági üvegtáblákkal
- a szintek megközelítését a földszintről és a parkolókból 8 személyes lift biztosítja
- a folyosók, teraszok burkolata porcelán vagy gránitl
A beruházó nagy tapasztalatokkal rendelkező, megbízható, referencia épületek, lakások hosszú sorával rendelkezik.
Minden beruházását magas minőség, kiváló anyagok és kivitelezés jellemzi.
Ne hagyja ki ezt a kivételes lehetőséget, nem sok ilyen színvonalú projektet, lakást talál a vízpart mellett.
Nyaralás?
Befektetés?
Hívjon bizalommal!
Siófok,# luxus,# nyaraló,# hatalmas teraszok, #ezüstpart,#panoráma,#
Projekt bemutatása
Balaton kedvelőinek kínáljuk eladásra.
Siófok Ezüstparton vízparti, 4 szintes , 3 szobás, nagy teraszos " VILLAPARK" luxusapartmanjait, örök panorámával is.
7284 m2 nagyságú területen, 50% zöldterület és saját parkolók biztosítása mellett, már átadásra került 2 tömb.
Most indult a következő ütem D és utána a C épület kialakítása.
Most foglalja le itt nyaralóját mert gyorsan fogynak , hiszen az építtető megbízható , nagy tapasztalatú beruházó.
Gondos, alapos tervezői munka, nagy tapasztalat biztosítja, hogy a lakások ,hozzá kapcsolódó nagy teraszok kivételes választást jelenthessenek új tulajdonosaiknak.
A liftes téglaépület 3 rétegű argongázzal kitöltött műanyag nyílászárói, központi LG Multi V-5 hőszivattyús rendszerével kiépített hűtése-fűtése, 12 cm vastag külső hőszigetelő rendszere kivételesen energia-hatékony.
A beruházó nagy tapasztalatokkal rendelkező, megbízható, referencia épületek, lakások hosszú sorával rendelkezik.
Minden beruházását magas minőség, kiváló anyagok és kivitelezés jellemzi.
Ne hagyja ki ezt a kivételes lehetőséget, nem sok ilyen színvonalú projektet, lakást talál a vízpart mellett.
Cégek figyelem 27% áfa terheli az ingatlanokat. Lizing lehetőségben segíteni tudunk.
D épület átadása 2026 ban a c épület átadása 2027 ben várható.
Nyaralás?
Befektetés?
Hívjon bizalommal!
Villa Park
