3 szobás 66 m2-es Lakás Casa Arany - Siófok, Aranypart

180 M Ft
  • Ingatlan adatok
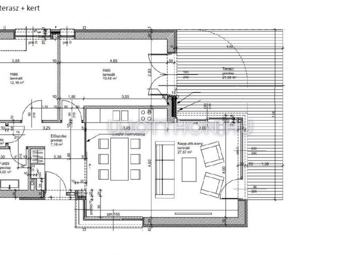
  • Alapterület: 66 m2
  • Regisztrációs szám: P4806-1-01-FZ-001
  • Szobák: 3 szoba
  • Típus: Lakás
  • Ár: 180 000 000 Ft
  • Várható átadás: 2026. II. negyedév
  • Emelet: földszint
  • Méret (bruttó): 78 m2
  • Terasz méret: 24.00 m2
  • Fűtés: hoszivattyus_futes
  • Fürdőszobák száma: 1
  • Belmagasság: 270.0 cm
  • Tájolás: ÉK
  • Kilátás: zöld kerti
  • Lépcsőház jellege: zárt lépcsőházas

Leírás

Exkluzív lehetőség Siófok Aranypartján – mindössze háromlakásos boutique projektben.

A Balatontól csupán egy háztömbnyire, az Aranypart egyik legkeresettebb utcájában kínáljuk ezt a 66 m²-es földszinti, kertkapcsolatos lakást, amelyhez 24 m²-es terasz, privát, utcafronti saját kert, valamint egy felszíni gépkocsi-beálló is az árban.

Letisztult elegancia, valódi balatoni életérzés

A modern, Bauhaus ihletésű, háromlakásos épület intim és nyugodt lakókörnyezetet biztosít. A telken található idősebb fenyőfák természetközeli hangulatot teremtenek, miközben a Balaton közelsége és a környék kiváló infrastruktúrája egész évben értékálló választássá teszi az ingatlant.

A lakás külön bejárattal rendelkezik, így valódi privát életteret kínál – ideális állandó otthonnak, exkluzív nyaralónak vagy prémium befektetésnek.

Kültéri élettér kompromisszumok nélkül

A 24 m²-es, pergolával fedett terasz a nappali természetes meghosszabbítása, amely tavasztól őszig tökéletes helyszíne a pihenésnek vagy baráti összejöveteleknek.
A hozzá tartozó saját kert meghitt, zöld környezetet biztosít, ahol a balatoni nyugalom valóban átélhető.

Prémium műszaki tartalom

Hőszivattyús fűtés padlófűtéssel

Hőszivattyús hűtés oldalfali fan-coil rendszerrel

Helyiségenként szabályozható komfort

Modern, vakolt homlokzat egyedi CEDRAL burkolati elemekkel

Telken belüli felszíni beálló az árban

Miért különleges ez az ingatlan?

Limitált, mindössze 3 lakásos projekt

Kiváló tájolás, jól használható életterek

Balaton-közeli elhelyezkedés

Saját kert + nagy terasz

Felszíni beálló az ár részét képezi

Ez a lakás a Balaton-parti ingatlanpiac ritka kategóriáját képviseli: diszkrét elegancia, kis lakásszám adta exkluzivitás és valódi életminőség egy helyen.

Siófok Aranypart – ahol az értékálló befektetés találkozik a prémium életstílussal.

Részletes műszaki tartalommal és személyes bemutatóval kapcsolatban keressen bizalommal!

Projekt bemutatása

PRÉMIUM, 3 LAKÁSOS ÚJ ÉPÍTÉSŰ PROJEKT SIÓFOK ARANYPARTJÁN – KARNYÚJTÁSNYIRA A BALATONTÓL

Siófok egyik legkeresettebb részén, az Aranypart szívében, kínálunk egy exkluzív, mindössze háromlakásos, modern megjelenésű lakóépületet, ahol a nyugalom, a privát élettér és a balatoni életérzés tökéletes egyensúlyban találkozik.

A kiváló adottságú telek mindössze egy háztömbnyire helyezkedik el a Balatontól, ahonnan az épületek között a vízfelület is megcsillan. A telken található nagyméretű, idősebb fenyőfák különleges hangulatot és természetközeli környezetet biztosítanak, miközben a környék infrastruktúrája és a strand közelsége egész évben értéket képvisel.

A projekt főbb jellemzői:

mindössze 3 lakás – intim, nyugodt lakókörnyezet

modern, Bauhaus ihletésű építészeti megjelenés

nagy teraszok, privát kertek

kiváló tájolás és jól használható életterek

telken belüli gépkocsi-beállók

prémium műszaki tartalom

Lakások elosztása:

66 m²-es földszinti lakás + 24 m² terasz + saját kert (utcafront felé)

90 m²-es földszinti lakás + 14 m² terasz + privát kert (csendes hátsó kert felé)

143 m²-es emeleti penthouse lakás + 30 m² terasz, teljes emeleti szinttel

A földszinti lakások külön bejárattal rendelkeznek, hasonló méretű, privát kertekkel kialakítva, így ideális választást jelentenek akár állandó otthonnak, akár nyaralónak vagy befektetésnek.

Az épület letisztult, vakolt homlokzatát modern CEDRAL burkolati elemek teszik egyedivé. A teraszok nyitható pergolával készülnek, így minden évszakban élvezhető kültéri életteret biztosítanak.

Modern gépészet:

hőszivattyús fűtés padlófűtéssel

hőszivattyús hűtés oldalfali fan-coil rendszerrel

helyiségenként szabályozható komfort

Ez a projekt ideális azok számára, akik a Balaton közelségét, a modern építészetet és a kis lakásszám adta exkluzivitást keresik — kompromisszumok nélkül.

Ez a projekt a Balaton-parti ingatlanpiac ritka kategóriáját képviseli.

Prémium elhelyezkedés. Diszkrét elegancia. Valódi balatoni életminőség.


Siófok Aranypart – ahol az értékálló befektetés találkozik az életminőséggel.

Érdeklődés és részletes műszaki tartalom: keressen bizalommal!

Casa Arany

Átadás:
2026. II. negyedév
Lakások száma:
3
Árak:
180 - 320 M Ft
Méret:
66 - 143 m2
Szobák:
3 - 4 szoba
Projekt bemutatása
Érdeklődöm