5 szobás 114 m2-es Családi ház T8 Projekt - Pilisborosjenő, Pilisborosjeno
- Ingatlan adatok
-
Alapterület: 114 m2
-
Regisztrációs szám: P4715-1-02-NA-001
-
Szobák: 5 szoba
-
Típus: Családi ház
-
Ár: 171 000 000 Ft
-
Várható átadás: 2026. III. negyedév
-
Telek méret: 315 m2
-
Méret (bruttó): 124 m2
-
Terasz méret: 5.00 m2
-
Fűtés: hoszivattyu_lv
-
Fürdőszobák száma: 2
-
Belmagasság: 265.0 cm
-
Tároló: Önálló
-
Tájolás: DNY
-
Garázs: Benne van az árban
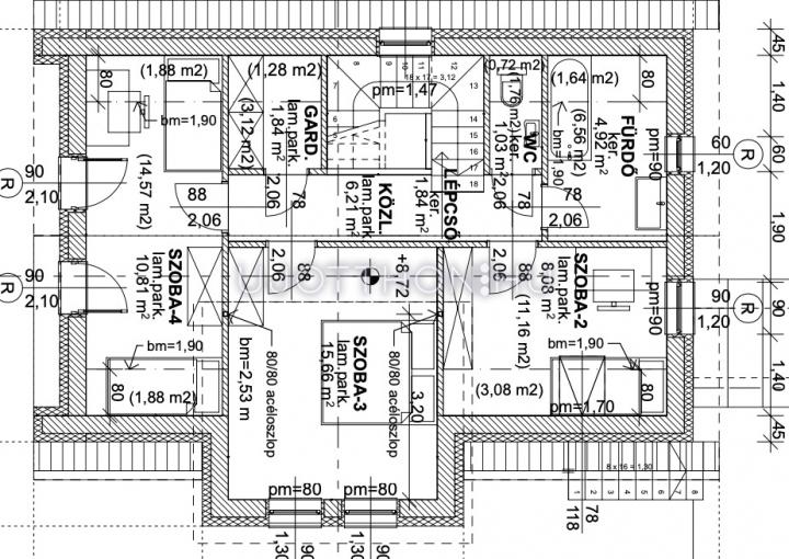
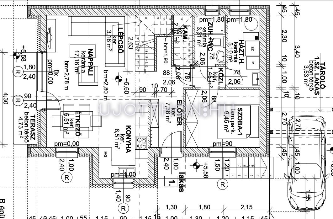
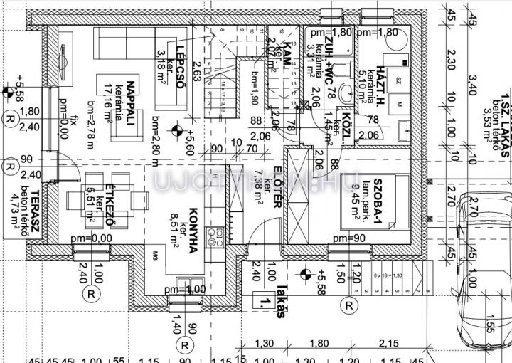
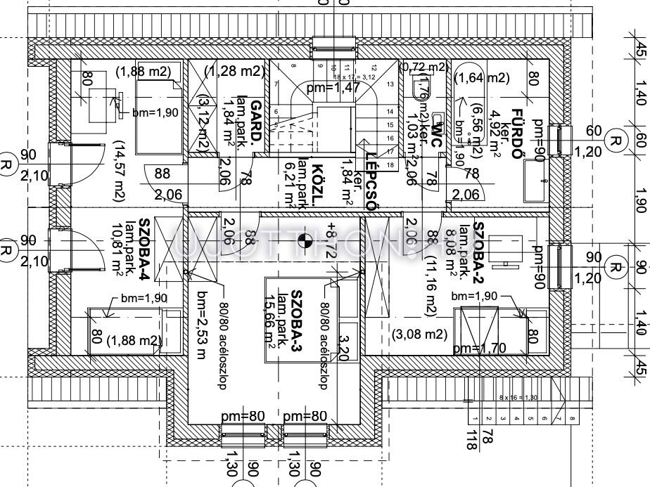
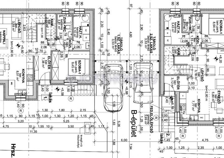
- Helyiségek
-
nappali-konyha 31.5 m2
-
szoba 9.45 m2
-
háztartási helyiség 5.1 m2
-
zuhanyzó 3.3 m2
-
előszoba 7.5 m2
-
kamra 2 m2
-
terasz 5 m2
-
szoba 10.8 m2
-
szoba 15.66 m2
-
szoba 8.1 m2
-
fürdőszoba 4.92 m2
-
wc-kézmosó 1.1 m2
-
gardrób 2 m2
-
közlekedő 6.2 m2
Leírás
Projekt bemutatása
ÚJÉPÍTÉSŰ PRÉMIUM CSALÁDI HÁZAK PILISBOROSJENŐN, A NAGY-KEVÉLY LÁBÁNÁL
Fedezze fel új otthonát Pilisborosjenőn, Budapest közvetlen közelében, ahol a természet és a modern építészet találkozik. A festői panoráma a pilisi hegyekre, a környező településekre, sőt, tiszta estéken egészen a Parlamentig nyújt felejthetetlen látványt.
Prémium minőség – energiahatékony megoldásokkal
Az épületek a legkorszerűbb technológiákkal és anyagokkal készülnek, „A” energetikai besorolással. A hőszivattyús padlófűtés, a split klímák hűtés-fűtés funkciója és a gondosan megválasztott prémium burkolatok garantálják az otthon kényelmét és gazdaságos fenntarthatóságát.
Otthon, amely igazodik az Ön életéhez
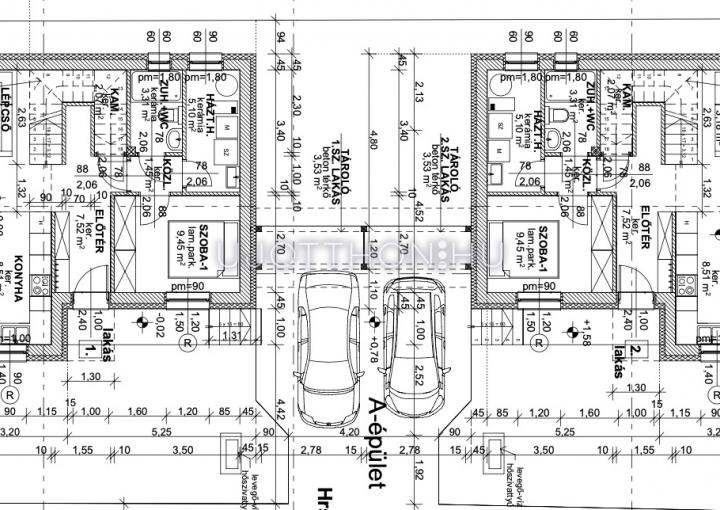
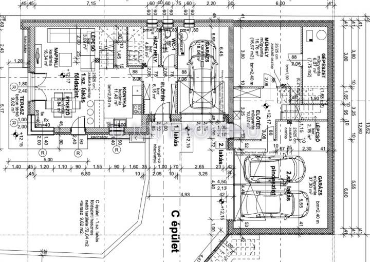
Összesen 6 lakóház, saját kerttel, autóbeállóval vagy garázzsal
Kétszintes, 114–196 m²-es terek – átgondolt alaprajzokkal
Földszinten: tágas nappali-étkező-konyha, hálószoba, fürdő, háztartási helyiség, kamra
Emeleten: három hálószoba, gardrób és fürdőszoba
Különlegesség: a C épület egyik lakása háromszintes, kétállásos garázzsal és extra tárolási lehetőséggel
Kivételes elhelyezkedés – közel a fővároshoz, mégis a természet ölelésében
Pilisborosjenő igazi gyöngyszem: nyugodt, biztonságos település minden korosztály számára, mindössze 13 km-re Budapesttől. Autóval és tömegközlekedéssel is könnyen megközelíthető (busz, vonat).
A település saját óvodával, iskolával, orvosi rendelővel és modern közösségi létesítményekkel rendelkezik. A környék kirándulási és sportlehetőségek széles tárházát kínálja: Teve-szikla, Egri vár másolata, Kevélyhegyi tanösvény, levendulamezők és lovardák teszik teljessé az itt töltött mindennapokat.
✨ Ez nem csupán egy ingatlan – ez az Ön jövőbeli otthona, ahol a természet közelsége és a modern élet kényelme tökéletes harmóniában találkozik.
Bővebb információért, műszaki tartalommal, megtekintéssel kapcsolatban keressen bizalommal!
T8 Projekt