2 szobás 48 m2-es Lakás Nyíregyháza, Belváros új építésű lakások - Nyíregyháza
- Ingatlan adatok
-
Alapterület: 48 m2
-
Regisztrációs szám: P4737-1-01-02-002
-
Szobák: 2 szoba
-
Típus: Lakás
-
Ár: 51 700 000 Ft
-
Várható átadás: 2026. IV. negyedév
-
Méret (bruttó): 51.7 m2
-
Erkély méret: 3.60 m2
-
Fűtés: gáz (cirko)
-
Fürdőszobák száma: 1
-
Belmagasság: 275.0 cm
-
Tároló: Közös
-
Tájolás: NY
-
Garázs: Külön vásárolható
-
Kilátás: udvari
-
Lépcsőház jellege: zárt lépcsőházas
-
FIX 3% hitelre alkalmas: Igen
- Helyiségek
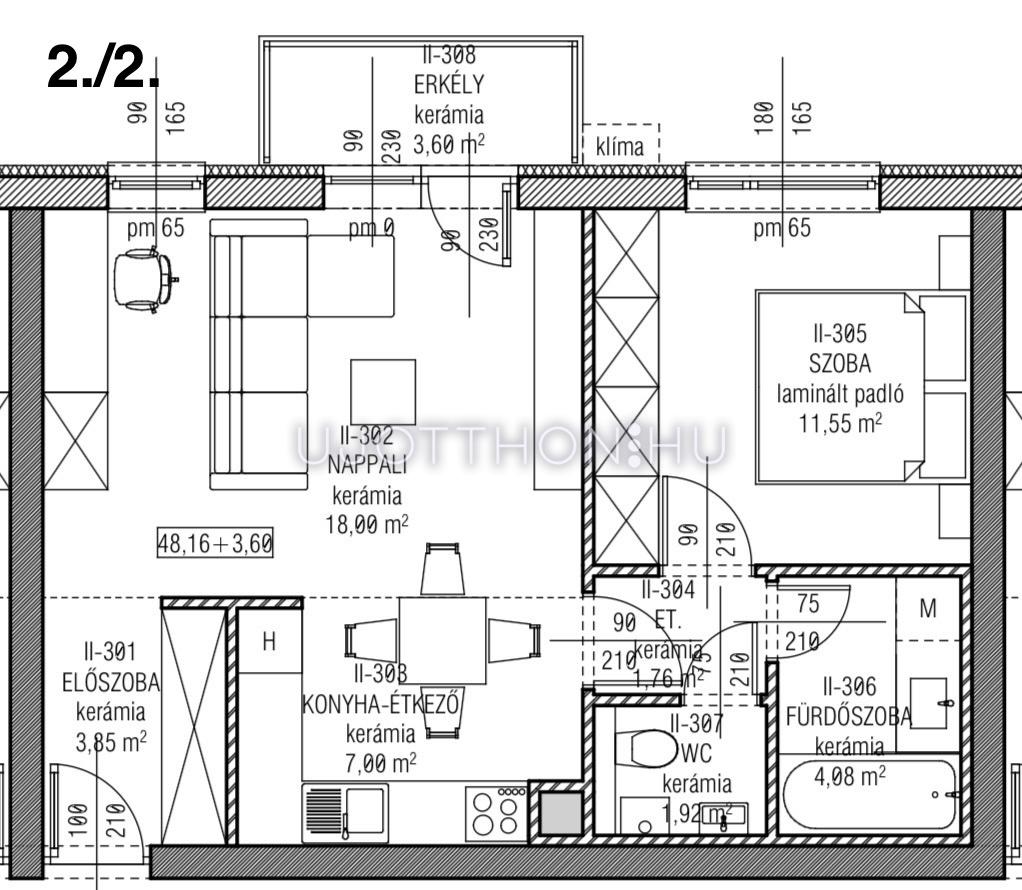
-
szoba 11.55 m2
-
nappali 18 m2
-
konyha-étkező 7 m2
-
fürdőszoba 4.08 m2
-
wc 1.92 m2
-
előszoba 3.85 m2
-
közlekedő 1.76 m2
Leírás
Eladó 1 szobás, tágas amerikai konyhás nappalival rendelkező lakás, külön fürdőszobával és WC-vel. Minden lakáshoz saját erkély tartozik, amely kellemes kikapcsolódást nyújt. A szobákban laminált parketta, míg a többi helyiségben járólap burkolat található. A földszinten közös tároló áll a lakók rendelkezésére, az udvar közösen használható. Garázs és udvari gépkocsibeálló külön megvásárolható. Ideális választás pároknak vagy befektetés céljára is.
Projekt bemutatása
Új építésű, amerikai konyhás, 1 szobás lakások eladók Nyíregyháza belvárosában, a Hatzel tér közelében! A 10 lakásos társasház csendes utcában épül, erkélyes lakásokkal, garázs- és udvari beálló lehetőséggel. 30-as szigetelés, 3 rétegű nyílászárók, padlófűtés, klíma – minden adott a modern élethez.
Átadás: 2026 nyár. Foglaljon időben!
Garázs: 10.000.000 Ft
Udvari beálló: 3.000.000 Ft
1.emelet
1.lakás: 49,66 nm + 3,60 nm erkély
2.lakás: 48,16 nm + 3,60 nm erkély
3.lakás 46,39 nm + 3,60 nm erkély
4.lakás 48,29 nm + 3,24 nm loggia ELKELT!
5.lakás 48,55 nm + 3,24 nm loggia
2. emelet
1.lakás: 49,66 nm+ 3,60 nm erkély
2.lakás: 48,16 nm + 3,60 nm erkély
3.lakás: 46,39 nm + 3,60 nm erkély
4.lakás: 45,61 nm + 3,24 nm loggia
5.lakás: 45,63 nm + 3,24 nm loggia
Nyíregyháza, Belváros új építésű lakások
