1 szobás 42 m2-es Lakás Belvárosi lakások - Nyíregyháza, Belváros
- Ingatlan adatok
 - 
                                    Alapterület: 42 m2
 - 
                                    Regisztrációs szám: P4745-1-01-FZ-001
 - 
                                    Szobák: 1 szoba
 - 
                                    Típus: Lakás
 - 
                                        Ár: 44 590 000 Ft
 - 
                                        Várható átadás: 2026. II. negyedév
 - 
                                        Méret (bruttó): 41.68 m2
 - 
                                        Fűtés: gáz (cirko)
 - 
                                        Fürdőszobák száma: 1
 - 
                                        Belmagasság: 275.0 cm
 - 
                                        Tároló: Közös
 - 
                                        Tájolás: NY
 - 
                                        Garázs: Külön vásárolható
 - 
                                        Kilátás: utcai
 - 
                                        Lépcsőház jellege: zárt lépcsőházas
 - 
                                        FIX 3% hitelre alkalmas: Igen
 
- Helyiségek
 - 
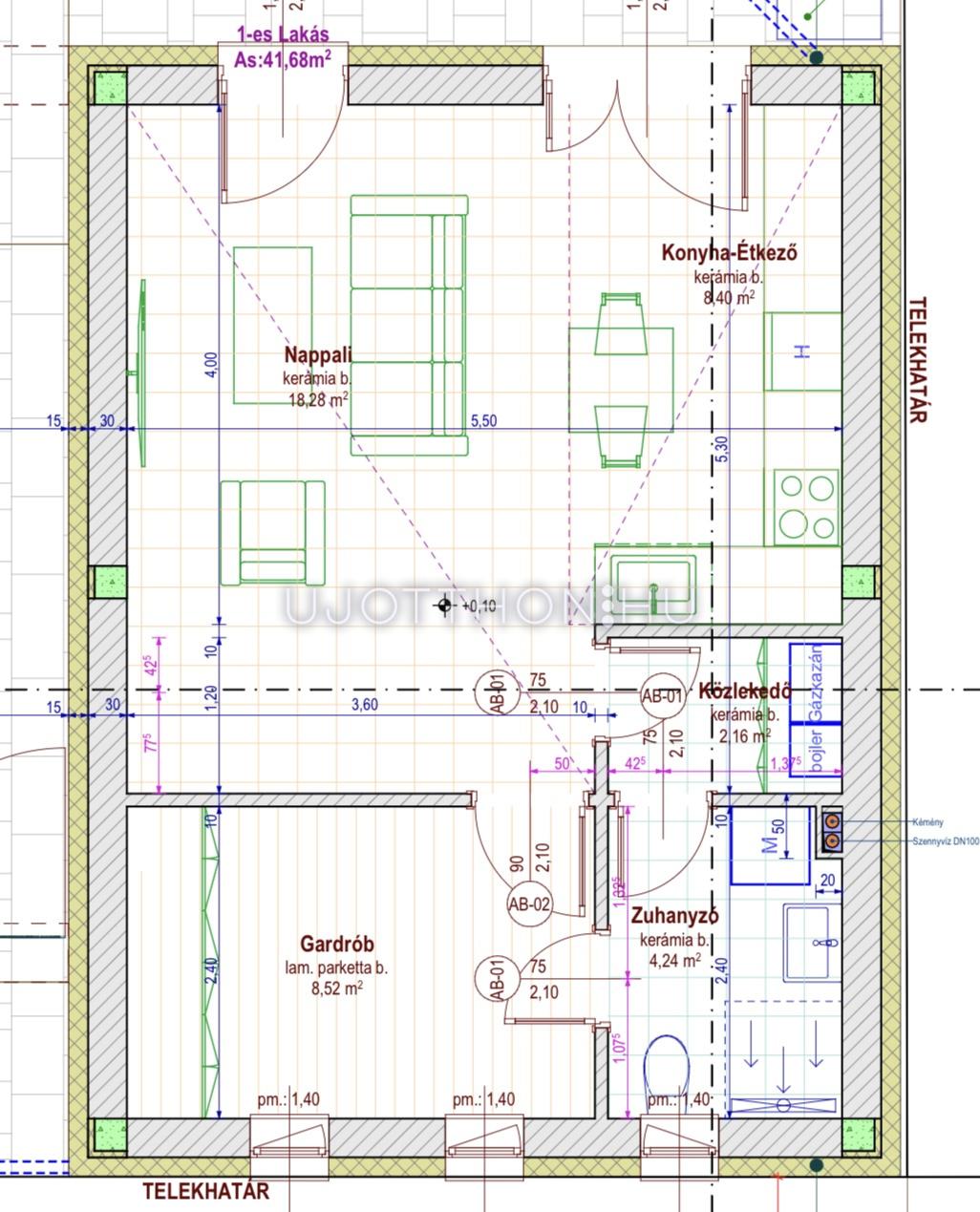
                                            nappali 18.28 m2
 - 
                                            gardrób 8.52 m2
 - 
                                            konyha-étkező 8.4 m2
 - 
                                            zuhanyzó 4.24 m2
 - 
                                            közlekedő 2.16 m2
 
Leírás
                                Az ingatlan főbb jellemzői:
- N+F 30 tégla falazat
- 15 cm homlokzati szigetelés
- A lakásokat elválasztó fal magas hanggátlású Porotherm 30 AKU Z téglával készül, 30 cm vastagságban.
- Kondenzációs gázkazán, padlófűtés,
- Minden lakásban Klíma
- 3 rétegű műanyag külső nyílászárók kívül antracit szürke színben,
- Burkolatok: laminált parketta, kerámia burkolat
- Teraszon: Fagyálló, csúszásmentes greslap burkolat
                            
Projekt bemutatása
                                    Kedves Érdeklődő!
Nyíregyháza Belvárosában, mégis csendes utcában megbízható, számos referenciával rendelkező kivitelezőtől eladó ÚJ ÉPÍTÉSŰ lakások!
Várható átadás: 2026.03. Foglaljon időben!
A lakásokhoz önálló garázs, vagy belső udvari beálló vásárolható!
Garázs: 13.000.000. ft
Udvari beálló: 3.000.000. ft
Földszint
1. lakás: 41,68 m² 
     Ára:44.590.000. ft
1. emelet 
3. lakás: 44,18 m² 
     Ára:  48.598.000. ft
4. lakás: 49,87 m² + 6,79 m² loggia
     Ára:  54.857.000. ft
2. emelet
5. lakás: 66,72 m² + 12,35 nm terasz
    Ára: 73.392.000. ft
6. lakás: 73,53 m²
    Ára: 73.983.000. ft
Kiváló lehetőség befektetők számára is! Az új építésű ingatlanok hosszú távon értékállóak és keresettek – ne hagyja ki ezt az alkalmat, legyen részese egy biztos megtérülést ígérő projektnek.
A hirdetésben szereplő információk a megbízótól kapott adatok alapján készültek, pontosságukért felelősséget nem vállalunk! Az alaprajz csak tájékoztató jellegű!
Amennyiben vásárláshoz hitelre is szüksége van, független hitel tanácsadónk ingyenesen tud Önnek segítséget nyújtani a legjobb konstrukciók kiválasztásában és a folyamat lebonyolításában. Irodánk kereső ügyfeleinknek teljes körű szolgáltatást nyújt, szakszerű tanácsadással, energetikai tanúsítvány elkészítésével, hitelügyintézéssel és profi ügyvédi segítséggel. Abban az esetben ha az ingatlan felkeltette érdeklődését keressen bizalommal!
                                
Belvárosi lakások