1 szobás 34 m2-es Lakás Alpok Spirit Társasház - Kőszegszerdahely

34.5 M Ft
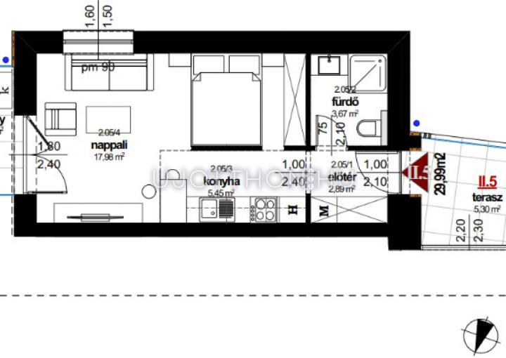
  • Ingatlan adatok
  • Alapterület: 34 m2
  • Regisztrációs szám: P4748-1-01-02-005
  • Szobák: 1 szoba
  • Típus: Lakás
  • Ár: 34 500 000 Ft
  • Várható átadás: 2026. IV. negyedév
  • Emelet: 2. emelet
  • Méret (bruttó): 34 m2
  • Erkély méret: 8.49 m2
  • Fűtés: Elektromos (infra)
  • Fürdőszobák száma: 1
  • Belmagasság: 265.0 cm
  • Tájolás: ÉK
  • Kilátás: utcai
  • Lépcsőház jellege: zárt lépcsőházas
  • FIX 3% hitelre alkalmas: Igen

Leírás

Kínálatunkban egy új, kiváló állapotú 34 négyzetméteres garzon lakás található Kőszegszerdahelyen. A modern, prémium kivitelezésű ingatlan tágas nappalival, konyha-étkezővel és egy elegáns fürdőszobával rendelkezik, amely minden igényt kielégít. A lakás fűtése elektromos (infra) rendszerrel, míg a hűtésről klímaberendezés gondoskodik, így az év bármely időszakában kellemes hőmérsékletet biztosít. Az Inverteres hűtő/fűtő klíma , hővisszanyerős légcserélő gondoskodik a folyamatos jó minőségű levegőről.
Minimális rezsiköltség, hatékony és gyors, egyedi fűtésrendszer, nincsenek közös rezsiszámolások… A lakás különlegessége a 8,49 négyzetméteres terasz . A LED hangulatvilágítás pedig még inkább fokozza a lakás hangulatát, lehetővé téve, hogy otthona mindig a legjobb fényben tündököljön. A környék csendes és biztonságos, ideális választás mindazok számára, akik szeretnék elkerülni a város zaját, miközben könnyen elérhetik a szükséges szolgáltatásokat. A közlekedési lehetőségek is kedvezőek: a közeli nagyvárosok és Ausztria autóval könnyen megközelíthető főbb utak révén. A közeli településeken található boltok, éttermek és szabadidős lehetőségek mind hozzájárulnak ahhoz, hogy az itt lakók mindennapjai kényelmesebbek és élvezetesebbek legyenek. Ez a tehermentes ingatlan nem csupán lakóhely, hanem egy életstílus megtestesítője. A hegyvidéki környezet és a modern megoldások tökéletes harmóniát alkotnak, így Ön is részese lehet ennek az élménynek. Ha bármilyen kérdése merülne fel, vagy szeretne többet megtudni erről a páratlan lehetőségről, bizalommal forduljon hozzánk. Az Ön elégedettsége a legfontosabb számunkra, és örömmel segítünk Önnek a legjobb döntés meghozatalában.

Projekt bemutatása

Modern megoldások, otthonos kényelem Kőszeg-hegyalján!
Kőszegszerdahelyen várja új tulajdonosait 21 lakásos, tégla építésű, szigetelt 2 szintes társasház. A hangulatos, természetközeli környezet, szub-alpoki klíma, Ausztria közelsége mind rendelkezésre áll az itt élők számára.
Az épület modern, letisztult stílusával és korszerű technológiájával a jövő otthonkeresőit célozza meg. Minden lakás:
- elektromos infra film padlófűtéssel rendelkezik, amely nemcsak kényelmes, de környezetbarát is.
- Fokozott szigetelést kapott a padozat, a födém, a lábazat és a homlokzat tekintetében, megfelelve a legszigorúbb szabványoknak.
- Háromrétegű, hő- és hangszigetelt nyílászárókkal van felszerelve.
-meleg víz ellátást hőszivattyús villanybojler biztosítja
- klíma, terasz minden lakásban
A vételár tartalmazza:
- szobákban laminált padló 5500 Ft/nm
wc: tervrajzok szerinti darabszámban 50.000 Ft/db
mosdószekrény mosdóval: Leziter Cube 60 (ár: 75.000.-)
Csap: mosdócsap 15.000 Ft/db
Zuhany/kádtöltő csap 25.000 Ft/db
Zuhanykabin / kád 150.000 Ft/db
- vizes helyiségekben vízálló laminált melegburkolat készül 7000 Ft/nm
• Egy saját parkolóhelyet.
• Kulcsrakész állapotot burkolatok, kapcsolók dugaljak, szaniterek, beltéri ajtók tartalmazzák.
A tárolást szintenként saját tároló segíti korlátozott számban.

Alpok Spirit Társasház

Átadás:
2026. IV. negyedév
Lakások száma:
17
Árak:
34.5 - 49.9 M Ft
Méret:
32 - 50 m2
Szobák:
1 - 2 szoba
Projekt bemutatása
Érdeklődöm