3 szobás 66 m2-es Családi ház Borostyánkő lakópark iker házak - Kőszeg
- Ingatlan adatok
-
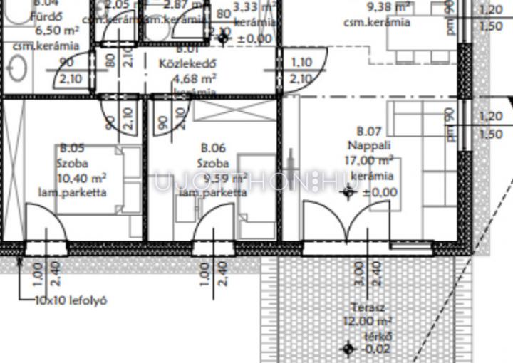
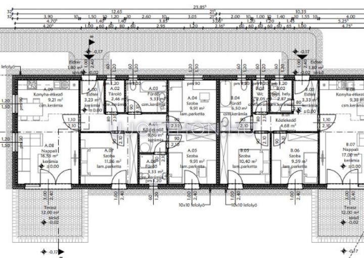
Alapterület: 66 m2
-
Regisztrációs szám: P4342-1-02-NA-001
-
Szobák: 3 szoba
-
Típus: Családi ház
-
Ár: 69 900 000 Ft
-
Várható átadás: 2024. IV. negyedév
-
Telek méret: 240 m2
-
Méret (bruttó): 100 m2
-
Terasz méret: 10.00 m2
-
Fűtés: Elektromos (infra)
-
Fürdőszobák száma: 1
-
Belmagasság: 275.0 cm
-
Tájolás: DK
-
FIX 3% hitelre alkalmas: Igen
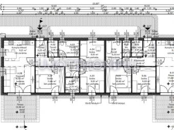
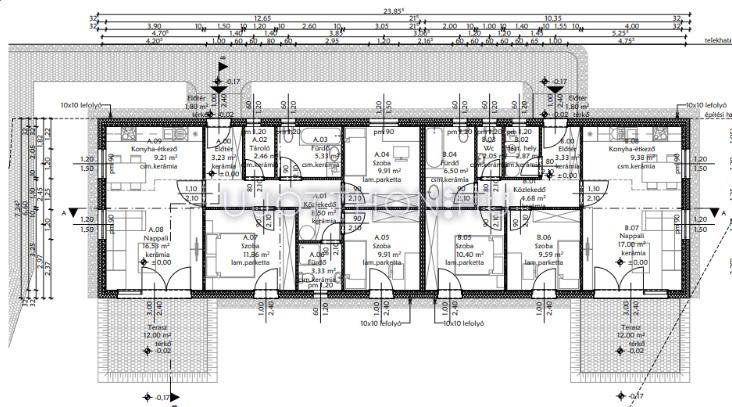
- Helyiségek
-
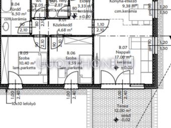
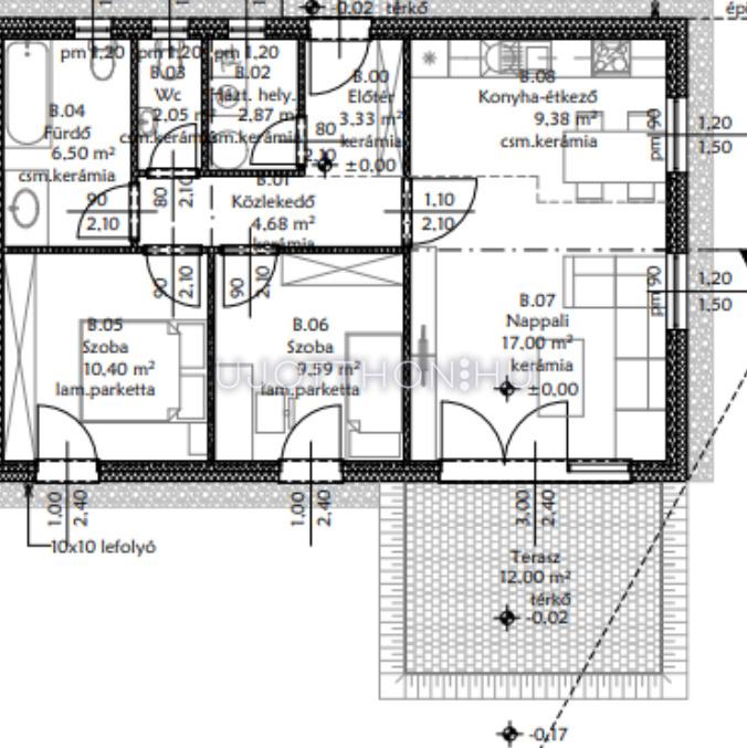
hálószoba 10.4 m2
-
hálószoba 9.6 m2
-
nappali 17 m2
-
konyha-étkező 9.38 m2
-
fürdőszoba-wc 6.5 m2
-
közlekedő 4.7 m2
-
wc-kézmosó 2 m2
-
háztartási helyiség 2 m2
Leírás
Kőszegen épülő Borostyánkő lakóparkban eladó fémvázas, könnyűszerkezetes iker családi ház 240 nm-es telken.
A település klímája szubalpin, egyedülállóan az országban. Kőszeg infrastruktúrája kiváló, bölcsőde, óvoda, általános és középiskola egyaránt rendelkezésre áll a családok számára.
Határváros révén 20 km-en belül ausztriai autópálya és az M86 gyorsforgalmi útra csatlakozás teszi könnyen elérhetővé.
A telkek saját úttal rendelkeznek, átmenő forgalom nincs az utcában. Fekvésük miatt örök-panorámás kilátással rendelkeznek a telkek a Kőszegi hegységre.
Közművek közül víz, csatorna, villany áll rendelkezésre.
25 éves kivitelezési gyakorlattal rendelkező, tőkeerős és referenciákkal rendelkező beruházótól, rendkívül precíz és igényes kivitelezéssel, osztrák minőségben készülő örök életű fémvázas szerkezettel kivitelezett könnyűszerkezetes házak. Házainkhoz szárított, minősített faanyagokat használunk!
-20 cm kőzetgyapot szigetelés a falakban-20 cm Dryvit szigetelés kívül
-30 cm mennyezeti szigetelés hőtükrös fóliával
-fokozott hang és hőszigetelésű három rétegű üvegezéssel készült nyílászárók
- energiatakarékos helységenként vezérelhető infrafilm padlófűtés
- duplakomfortos, minden igényt kielégítő kialakítás, lakberendező közreműködésével készült alaprajzi elrendezés
- klíma, riasztó előkészítve későbbi igény esetére
- külön mosókonyha rendkívül kényelmes megoldás a háztartás vezetésére
- 12nm terasz
- Minőségi laminált padló burkolatok, vízálló laminált burkolattal készült fürdők, első osztályú szaniterekkel felszerelve. Csillagpontosan kiépített gyenge áramú hálózat lehetővé teszi berendezések kábelen történő csatlakoztatását minden helységben.
Projekt bemutatása
Kőszegen új építésű családi házak eladók
Kőszegen épülő Borostyánkő lakóparkban eladó fémvázas, könnyűszerkezetes ikercsaládi ház 200-300 nm-es önálló helyrajzi számú telken.
A település klímája szubalpin, egyedülállóan az országban. Kőszeg infrastruktúrája kiváló, bölcsőde, óvoda, általános és középiskola egyaránt rendelkezésre áll a családok számára.
Határváros révén 20 km-en belül ausztriai autópálya és az M86 gyorsforgalmi útra csatlakozás teszi könnyen elérhetővé.
A telkek saját úttal rendelkeznek, átmenő forgalom nincs az utcában. Fekvésük miatt örök-panorámás kilátással rendelkeznek a telkek a Kőszegi hegységre.
Közművek közül víz, csatorna, villany áll rendelkezésre.
25 éves kivitelezési gyakorlattal rendelkező, tőkeerős és referenciákkal rendelkező beruházótól, rendkívül precíz és igényes kivitelezéssel, osztrák minőségben készülő örök életű fémvázas szerkezettel kivitelezett könnyűszerkezetes házak. Házainkhoz szárított, minősített faanyagokat használunk!
-20 cm kőzetgyapot szigetelés a falakban-20 cm Dryvit szigetelés kívül
-30 cm mennyezeti szigetelés hőtükrös fóliával
-fokozott hang és hőszigetelésű három rétegű üvegezéssel készült nyílászárók
- alumínium hőszigetelt elektromos redőnyök igény szerint távirányítóval
- energiatakarékos helységenként vezérelhető infrafilm padlófűtés
- duplakomfortos, minden igényt kielégítő kialakítás, lakberendező közreműködésével készült alaprajzi elrendezés
- klíma, riasztó előkészítve későbbi igény esetére
- külön mosókonyha rendkívül kényelmes megoldás a háztartás vezetésére
- 12nm terasz
- Minőségi laminált padló burkolatok, vízálló laminált burkolattal készült fürdők, első osztályú szaniterekkel felszerelve. Csillagpontosan kiépített gyenge áramú hálózat lehetővé teszi berendezések kábelen történő csatlakoztatását minden helységben.
Borostyánkő lakópark iker házak
