4 szobás 125 m2-es Családi ház Alsó körút lakópark - Kőszeg
- Ingatlan adatok
-
Alapterület: 125 m2
-
Regisztrációs szám: P3997-1-04-NA-000
-
Szobák: 4 szoba
-
Típus: Családi ház
-
Ár: 106 600 000 Ft
-
Várható átadás: 2024. IV. negyedév
-
Telek méret: 571 m2
-
Méret (bruttó): 133 m2
-
Terasz méret: 9.60 m2
-
Fűtés: gáz (cirko)
-
Fürdőszobák száma: 1
-
Belmagasság: 275.0 cm
-
Tájolás: DNY
-
Garázs: Benne van az árban
- Helyiségek
-
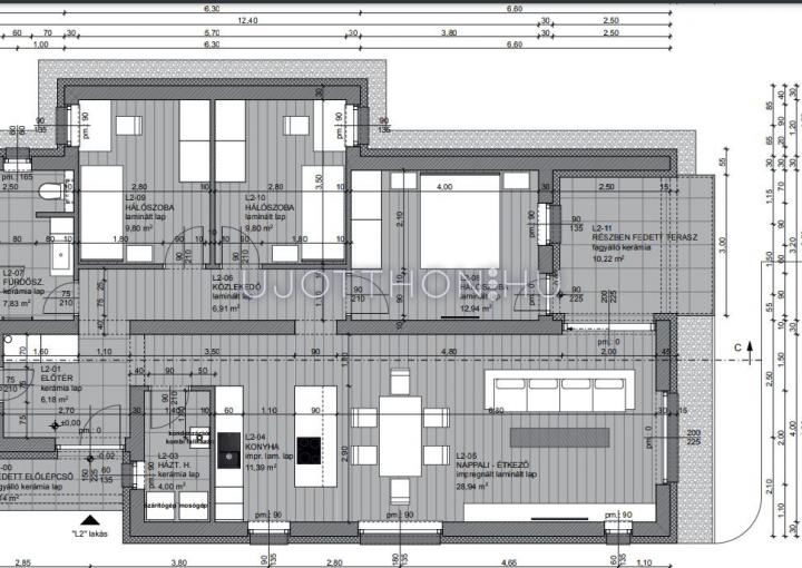
hálószoba 12.09 m2
-
hálószoba 12.09 m2
-
hálószoba 13.5 m2
-
nappali-étkező 28.25 m2
-
konyha 5.53 m2
-
háztartási helyiség 2.97 m2
-
wc-kézmosó 1.98 m2
-
fürdőszoba-wc 7.36 m2
-
előszoba 4.4 m2
-
közlekedő 9.55 m2
Leírás
Kőszegen új, tégla építésű családi házak eladók az Alsó körúton. Az ingatlanok minőségi alapanyagok felhasználásával, a jelenlegi előírások betartásával épülnek,
BB energetikai besorolásnak megfelelnek. A lakóingatlan tégla építésű, szigetelt, lapostetős kivitellel, műanyag nyílászárókkal készült.
1 ikerház + 1 önálló családi ház épül egy telekre, önálló kerthasználattal.
Hasznos alapterületek: 571 nm-es saját használatú kertkapcsolat
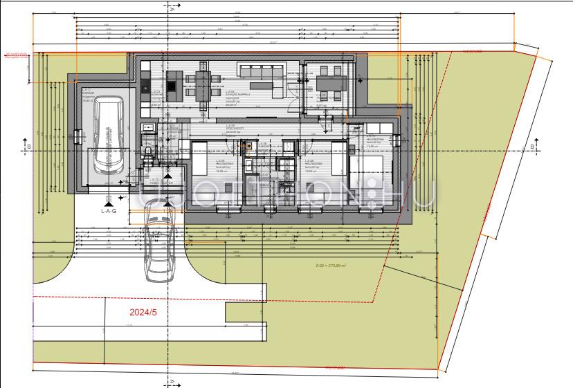
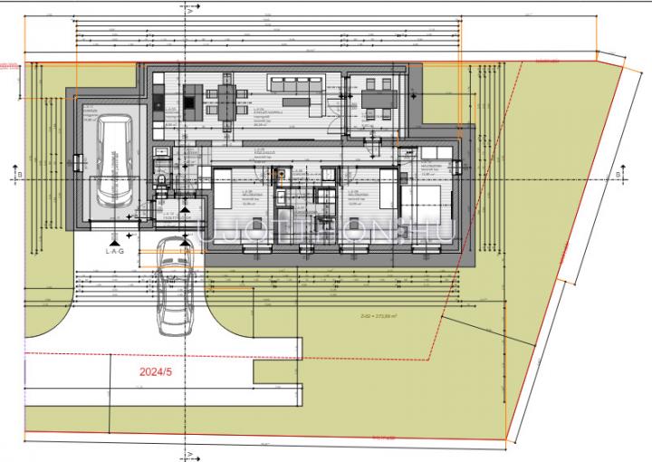
A nettó 98,72 nm -es ingatlan elosztása - földszintes: 3 hálószoba + nappali-konyha-étkező + fürdő-wc, háztartási helyiség, wc-mosdó.
A hálószobák átlagosan 10 nm-esek, a nappali - étkező 28 nm-es a meglévő tervek szerint.
Részben fedett terasz , előtér, 19,8 nm-es garázs, telek a hirdetési árban szerepel !
A szobák laminált lappal burkoltak, a többi helyiség kerámia lappal, illetve impregnált laminált padlóburkolattal szerepel a tervezetben.
Bővebb információért kérem keressen a megadott elérhetőségeken!
Várható átadás: 2026 év vége!
Projekt bemutatása
Kőszegen új, tégla építésű családi házak eladók az Alsó körúton. Az ingatlanok minőségi alapanyagok felhasználásával, jelenlegi előírások betartásával épülnek.
BB energetikai besorolásnak megfelelnek . A lakóingatlan okos tégla építésű, 10 cmes grafitos nikecellel szigetelt, lapostető kivitelű, 3 légkamrás műanyag nyílászáróval kerülnek kialakításra.
2 lakóház épül egy telekre: egy ikerház stílus kivitelezésével ,egy önálló családi ház.
Hasznos alapterületek:
Az ingatlan elosztása földszint: terasz, 3 hálószoba+nappali-konyha-étkező+kamra,zuhanyzó-wc, közlekedő.
A szobák laminált lappal borítottan a többi helyiség kerámia lappal illetve impregnált laminált padló burkolattal tervezettek.
A hálószobák 10-14 nm-esek átlagosan, nappali mérete kb. 25 nm.
Kulcsátadás várhatóan 2024, augusztus, Az ingatlanok 20% önrésszel foglalhatók.
Jelenlegi készültséget a hirdetéshez kapcsolt fotók mutatják. A kivitelező leinformálható, több igényes referencia munkával rendelkezik.
Hitelre van szüksége? Az Otthon Centrum az ország egyik legnagyobb és legmegbízhatóbb hitelközvetítőjeként, teljes körű és díjmentes hitel ügyintézéssel, biztosításkötéssel áll rendelkezésére! Kérje személyre szabott ajánlatunkat Kollégáinktól!
Válassza ki az Önnek legmegfelelőbbet!
Alsó körút lakópark