4 szobás 100 m2-es ikerhaz Kiskunlacházán új építésű ikerházak - Kiskunlacháza
92.9 M Ft
- Ingatlan adatok
-
Alapterület: 100 m2
-
Regisztrációs szám: P4643-1-0A-NA-000
-
Szobák: 4 szoba
-
Típus: ikerhaz
-
Ár: 92 900 000 Ft
-
Várható átadás: 2026. II. negyedév
-
Telek méret: 624 m2
-
Méret (bruttó): 125.68 m2
-
Terasz méret: 25.79 m2
-
Fűtés: hoszivattyus_futes
-
Fürdőszobák száma: 2
-
Belmagasság: 270.0 cm
-
Tájolás: DK
-
FIX 3% hitelre alkalmas: Igen
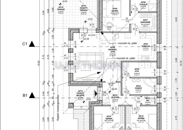
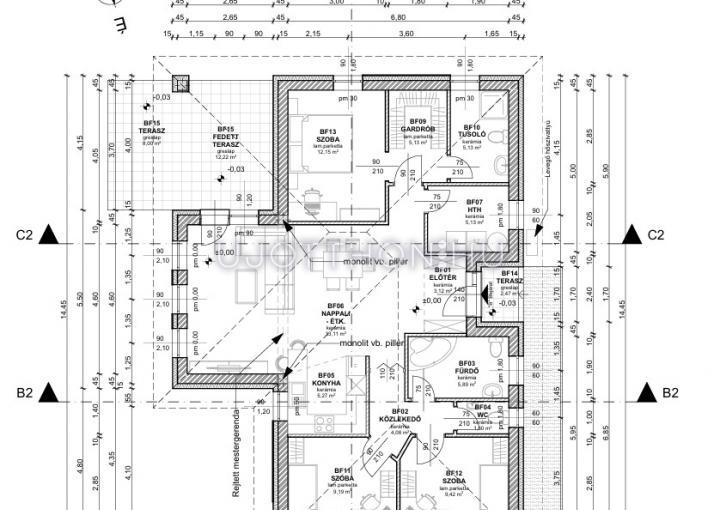
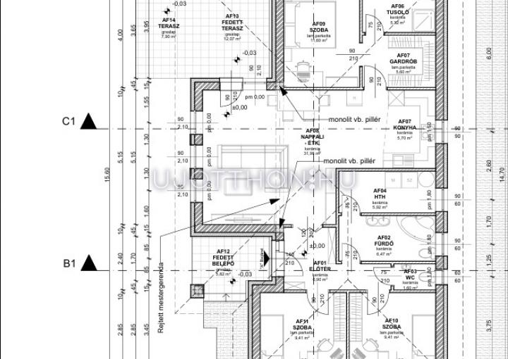
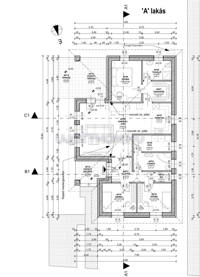
- Helyiségek
-
előszoba 6.9 m2
-
fürdőszoba 6.47 m2
-
háztartási helyiség 5.92 m2
-
wc-kézmosó 1.6 m2
-
fürdőszoba 5.32 m2
-
gardrób 5.6 m2
-
konyha 5.7 m2
-
nappali-étkező 31.96 m2
-
szoba 11.6 m2
-
szoba 9.41 m2
-
szoba 9.41 m2
-
terasz 12.07 m2
-
terasz 7.9 m2
Leírás
Projekt bemutatása
Kiskunlacházán újépítésű családi házak eladók
✅ téglaépítésű
✅ nettó 99 m2
✅ 6 db ház, házak nem kapcsolódnak egymáshoz
✅ amerikai konyhás nappali + 3 hálószoba + gardrób vagy amerikai konyhás nagy nappali + 4 hálószoba
✅ fűtés: hőszivattyú + padlófűtés
✅ telek méretek: 624 m2 - 841 m2
Hitel, CSOK, Otthon Start igényelhető
Átadás: 2025 év vége
Kiskunlacházán új építésű ikerházak
Átadás:
2026. II. negyedév
Lakások száma:
6
Árak:
92.9 - 94.9 M Ft
Méret:
99 - 100 m2
Szobák:
4 szoba