3 szobás 90 m2-es Lakás Modern 4 lakásos társasház - Hévíz
- Ingatlan adatok
-
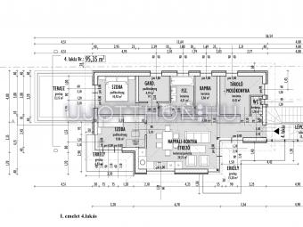
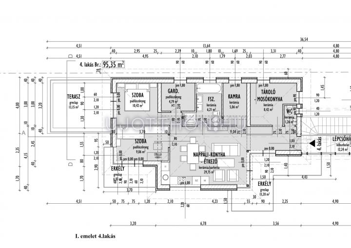
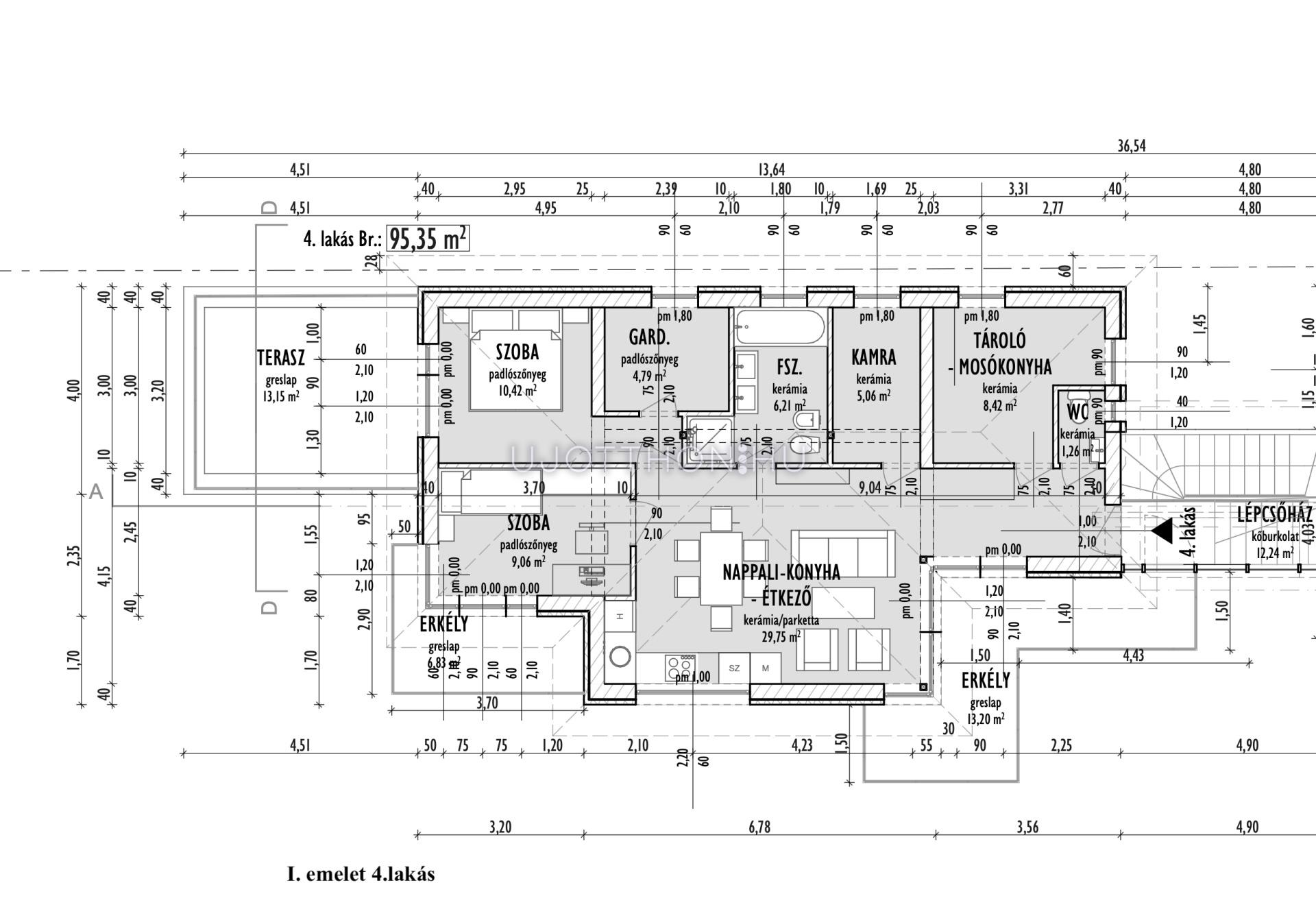
Alapterület: 90 m2
-
Regisztrációs szám: P4703-1-0A-01-004
-
Szobák: 3 szoba
-
Típus: Lakás
-
Ár: 109 900 000 Ft
-
Várható átadás: 2026. III. negyedév
-
Emelet: 1. emelet
-
Méret (bruttó): 95.35 m2
-
Terasz méret: 13.15 m2
-
Erkély méret: 13.20 m2
-
Fűtés: hoszivattyu_lv
-
Fürdőszobák száma: 1
-
Belmagasság: 270.0 cm
-
Tájolás: DNY
-
Kilátás: utcai
-
Lépcsőház jellege: zárt lépcsőházas
- Helyiségek
-
mosókonyha 8.42 m2
-
kamra 5.06 m2
-
nappali-konyha 29.75 m2
-
fürdőszoba-wc 6.21 m2
-
szoba 10.42 m2
-
gardrób 4.79 m2
-
szoba 9.06 m2
-
terasz 13.15 m2
-
erkély 6.83 m2
-
erkély 13.2 m2
Leírás
Projekt bemutatása
AZ OTTHON CENTRUM KIEMELT KÍNÁLATÁBAN!
Fedezze fel ezt a kivételes adottságokkal rendelkező, modern stílusú, 4 lakásos társasházat Hévíz egyik legkedveltebb, családbarát övezetében! A projekt egyediségét az igényes építészeti megoldások és a korszerű építészet adja , mely garantálja a hosszútávú energiatakarékosságot, kényelmet és a mindennapok nyugalmát.
A lakások tágas elrendezésűek, világos nappalikkal, nagy üvegfelületekkel és exkluzív teraszokkal rendelkeznek.
Az ingatlan lokációját tekintve zavartalan kikapcsolódást és nyugalmat biztosít egész évben.
Hévíz a Balaton nyugati partján fekszik, néhány kilométerre a magyar tenger partjától, növelve ezáltal az ingatlan értékét.
Várható kulcsrakész átadás : 2026. agusztus 31.
FŐBB JELLEMZŐK
-Exkluzív, modern megjelenésű épület
-Energiatakarékos és költséghatékony
-Csendes, zöldövezeti elhelyezkedés
-Napsütötte, tágas belső terek
-Privát teraszok és erkélyek minden lakáshoz
-Parkolási lehetőség az udvarban
MŰSZAKI TARTALOM
-Építés éve: 2025.
-Falazat: 30 cm vastag Porotherm tégla
-Homlokzati szigetelés: 15 cm vastag hőszigetelés
-Födémszerkezet: Monolit vasbeton födém
-Tető: Antracit színű cserépfedés
-Nyílászárók: 3 rétegű üvegezésű, műanyag szerkezetű ablakok
-Redőnyök: Elektromos működtetésű árnyékolók
-Fűtés: Daikin hőszivattyús rendszer padlófűtéssel – energiatakarékos és korszerű
-Melegvízellátás: szintén a hőszivattyú biztosítja
-Hűtés: Fan-coil rendszer minden lakásban
-Vízlágyító rendszer a hosszabb gépészeti élettartam érdekében
-H tarifás áram – kedvezményes, energiahatékony működés
-Lakásonként külön mérőórák biztosítják a pontos elszámolást
-Tágas, napfényes belső terek
-Saját teraszok, erkélyek és udvari gépkocsi beálló
Ajánljuk:
-Családoknak, akik értékelik a csendes, biztonságos környezetet
-Nyugdíjasoknak, akik hosszú távra keresnek kényelmes és gazdaságosan fenntartható otthont
-Befektetőknek, akik Hévíz turisztikai értékében látják a lehetőséget – akár hosszú távú, akár rövid távú bérbeadás céljából
Ez az ingatlan nem csupán egy otthon, hanem egy tudatos döntés a kényelem, a minőség és az értékállóság mellett.
Akár saját részre, akár befektetési célra keres ingatlant – itt minden adott a hosszú távú elégedettséghez.
További információért és megtekintésért keressen bizalommal!
Modern 4 lakásos társasház