3 szobás 63 m2-es Lakás B25 Társasház - Cegléd

56.9 M Ft
  • Ingatlan adatok
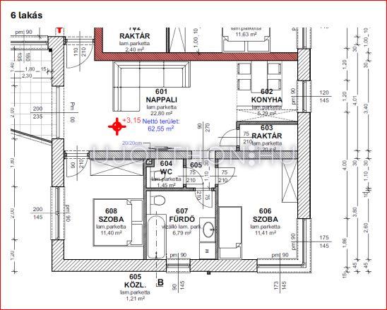
  • Alapterület: 63 m2
  • Regisztrációs szám: P4843-1-02-01-006
  • Szobák: 3 szoba
  • Típus: Lakás
  • Ár: 56 900 000 Ft
  • Várható átadás: 2027. II. negyedév
  • Emelet: 1. emelet
  • Méret (bruttó): 68 m2
  • Fűtés: hoszivattyus_futes
  • Fürdőszobák száma: 1
  • Belmagasság: 265.0 cm
  • Tájolás: ÉK
  • Kilátás: utcai
  • Lépcsőház jellege: zárt lépcsőházas
  • FIX 3% hitelre alkalmas: Igen

Leírás

Projekt bemutatása

Modern, kis léptékű projekt keretében kínálunk eladásra 6 lakást és 4 irodát, amely ideális választás otthonnak vagy befektetésnek.

Főbb jellemzők:
- magas műszaki tartalom, korszerű megoldások
- megbízható beruházó
- átgondolt alaprajzok, élhető terek
- belső udvari gépkocsi beálló (opcionális)
- belvárosi lokáció


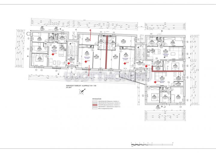
Szintenként 3 lakás és 2 iroda kerül kialakításra (51.63- 63.67 nm)
Vételár: 52,1 M - 57,5 M

Finanszírozás:
akár OTTHON START (3%) hitelre is igényelhető (feltételek szerint, kivéve az iroda megnevezésű egységekre)

Kis lakásszámú társasház, nyugodt környezet, vegyes funkcióval (lakás + iroda).
Várható átadás: 2027 tavasza

A lakások pontos műszaki tartalmáért és finanszírozási lehetőségekért keresse értékesítő kollégánkat és kérjen időpontot még ma egy személyes egyeztetésre!

Az első lakás már elkelt! Ne maradjon le – válassza ki időben az Ön számára legmegfelelőbb lakást vagy irodát! Várjuk hívását!

B25 Társasház

Átadás:
2027. II. negyedév
Lakások száma:
9
Árak:
52.1 - 57.5 M Ft
Méret:
52 - 64 m2
Szobák:
3 - 4 szoba
Projekt bemutatása
Érdeklődöm