5 szobás 168 m2-es Lakás ŐSFALIGET - Budapest XII. kerület, Orbánhegy
- Ingatlan adatok
-
Alapterület: 168 m2
-
Regisztrációs szám: P4796-1-01-01-003
-
Szobák: 5 szoba
-
Típus: Lakás
-
Ár: 580 000 000 Ft
-
Várható átadás: 2027. IV. negyedév
-
Emelet: 1. emelet
-
Méret (bruttó): 203 m2
-
Terasz méret: 53.00 m2
-
Fűtés: Megújuló
-
Fürdőszobák száma: 2
-
Belmagasság: 270.0 cm
-
Tároló: Önálló
-
Tájolás: DNY
-
Garázs: Külön vásárolható
-
Kilátás: zöld kerti
-
Lépcsőház jellege: zárt lépcsőházas
-
Lift: Van
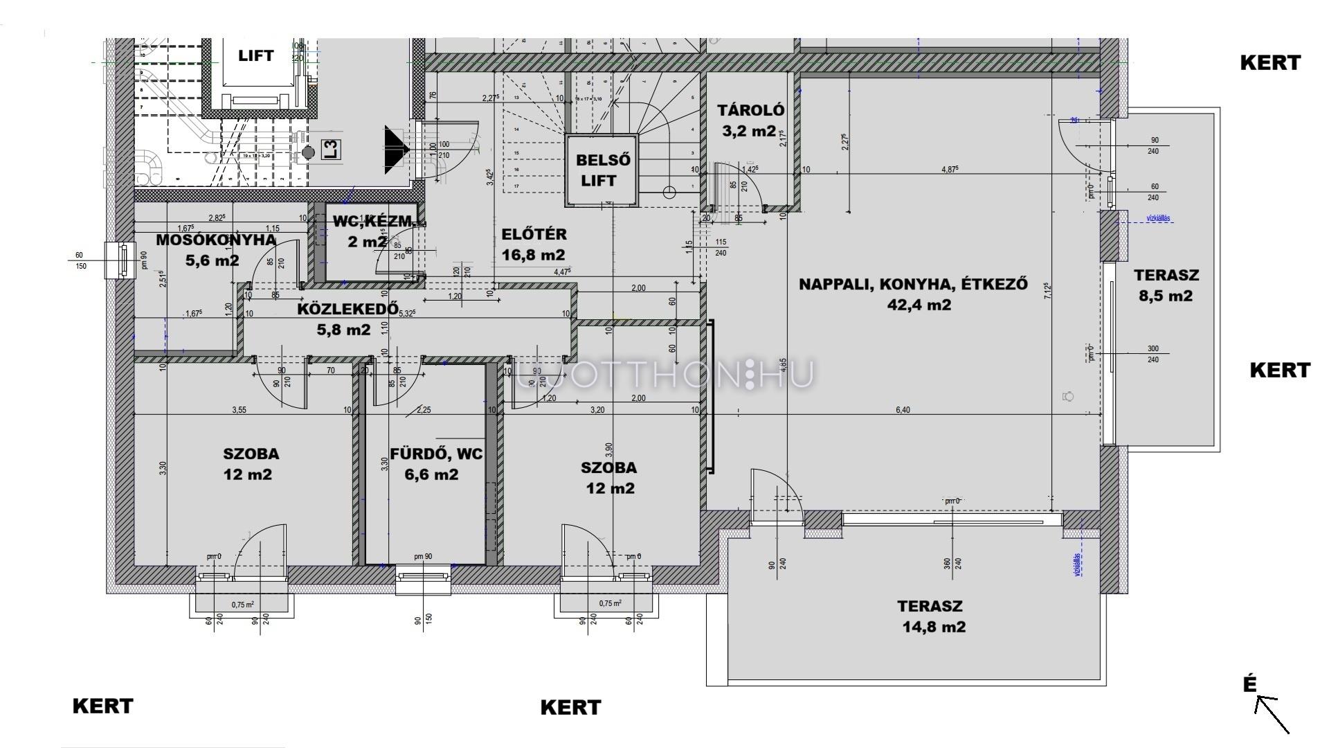
- Helyiségek
-
nappali-konyha 42.4 m2
-
szoba 12 m2
-
szoba 12 m2
-
fürdőszoba-wc 6.6 m2
-
mosókonyha 5.6 m2
-
tároló 3.2 m2
-
wc-kézmosó 2 m2
-
terasz 23.3 m2
-
szoba 13.4 m2
-
szoba 11.9 m2
-
fürdőszoba-wc 7.6 m2
-
terasz 30 m2
Leírás
XII. ORBÁNHEGY, CSENDES, ÚJÉPÍTÉSŰ 5 SZOBÁS, 53 m2 TERASSZAL
XII. Kerület ORBÁNHEGY körzetében, CSENDES (átmenőforgalomtól mentes), ZÖLDÖVEZETI ŐSFÁS MELLÉKUTCÁBAN, SÍK, téglalap alakú, 1127 m2-es TELKEN épülő, 4 LAKÁSOS, LIFTES TÁRSASHÁZBAN kínálunk eladásra, egy FÖLDSZINTI, DNY-i tájolású, KERTRE NÉZŐ, 168 m2-es (53 m2 terasz 1/3 méretének a beszámítása mellett. A terasz, és a lakáson belüli falak alatti területek nélküli méret 150 m2) 5 SZOBÁS, 2 FÜRDŐSZOBÁS, BELSŐ KÉT SZINTES, LAKÁSON BELÜL SAJÁT LIFTTEL, 2 db TEREMGARÁZS HELLYEL (+17 Mft/db), és egy db 14 m2 tárolóval (+18 Mft) rendelkező, PRÉMIUMKATEGÓRIÁS újépítésű lakást.
Az ingatlan autóval és tömegközlekedéssel is jól megközelíthető: buszmegálló 5 perc sétatávolságra, ill. a MOM PARK és a HEGYVIDÉK BEVÁSÁRLÓKÖZPONT is PERCEK ALATT ELÉRHETŐ.
Elérhető lakások
•L1 lakás: 105,63 m² + 12 m² terasz – 378 MFt
•L2 lakás: 113 m² + 12 m² terasz – 398 MFt
•L3 lakás: 150 m² + 53 m² terasz/erkély – 580 MFt
•L4 lakás: 150 m² + 46 m² terasz/erkély – 570 MFt
MŰSZAKI TARTALOM – PRÉMIUM SZINTŰ MEGOLDÁSOK
Az épület a 2022. évi AA+ energetikai követelményeknek megfelelően, a legmodernebb gépészeti technológiákkal és KNX intelligens épületautomatika rendszerrel kerül kivitelezésre.
Lakásonként egyedi gépészet:
•Mennyezeti hűtés–fűtés és padlófűtés, harmatpont-érzékelővel
•Panasonic víz–levegő hőszivattyús rendszer a fűtés és a használati melegvíz biztosítására
•KNX intelligens otthon rendszer, melynek segítségével akár mobiltelefonról, távolról is vezérelhető a fűtés, hűtés, világítás stb.
•Zehnder hővisszanyerős szellőztetőrendszer, folyamatos friss, szűrt levegővel
További műszaki és kényelmi elemek:
•Háromrétegű hőszigetelt üvegezésű fa nyílászárók
•Távirányítással működtethető alumínium redőnyrendszer
•Falsíkban záródó belső ajtók
•Minőségi hideg- és melegburkolatok
•Villeroy & Boch szaniterek és fürdőszobabútorok
•Hansgrohe csaptelepek
•Hüppe zuhanykabinok
•Okosotthon-kompatibilis kapcsolók és konnektorok
•Fűtött lehajtó a mélygarázsba
•Automata garázs- és kertkapu
•Riasztórendszer-, TV- és internet-előkészítés
•Videó kaputelefon
•Épített kert automata öntözőrendszerrel
•Kerti világítás
•Az épületben a teremgarázs szintről induló felvonó kerül beépítésre
BELSŐÉPÍTÉSZET ÉS EGYEDI IGÉNYEK:
A lakások a Geppetto Belsőépítész Iroda által készített részletes belsőépítészeti kiviteli tervek alapján valósulnak meg.
A kivitelezés során – a műszaki lehetőségek figyelembevételével – lehetőség van a lakások vevői igény szerinti egyedi módosítására.
A lakások átadásának időpontja: 2027. II. félév
FIZETÉSI ÜTEMEZÉS:
•Szerződéskötéskor: 10% foglaló + 10% vételárelőleg
•A fennmaradó vételár megfizetése a készültségi szintnek megfelelően, további 6 részletben történik
TISZTELT ÉRDEKLŐDŐ!
TÖBB MINT 20 ÉVE FOGLALKOZOM INGATLANOK ÉRTÉKESÍTÉSÉVEL MAGYARORSZÁG PIACVEZETŐ INGATLANKÖZVETÍTŐ HÁLÓZATÁNÁL, AZ OTTHON CENTRUMNÁL. AMENNYIBEN SZÁNDÉKÁBAN ÁLL INGATLANT ELADNI - A LEGRÖVIDEBB IDŐN BELÜL, GARANTÁLT JOGI, ÉS BANKI HÁTTÉRREL - KERESSEN BIZALOMMAL, HOGY EGY HELYSZÍNI FELMÉRÉST KÖVETŐ INGYENES ÉRTÉKMEGÁLLAPÍTÁS UTÁN, EGYÜTT TUDJUNK MŰKÖDNI AZ ÖN INGATLANÁNAK AZ ELADÁSÁBAN IS!
Projekt bemutatása
XII. ORBÁNHEGY, CSENDES, ÚJÉPÍTÉSŰ 3, 4, és 5 SZOBÁS PRÉMIUMKATEGÓRIÁS LAKÁSOK
XII. Kerület ORBÁNHEGY körzetében, CSENDES (átmenőforgalomtól mentes), ZÖLDÖVEZETI ŐSFÁS MELLÉKUTCÁBAN, SÍK, téglalap alakú, 1127 m2-es TELKEN épülő, 4 LAKÁSOS, LIFTES TÁRSASHÁZBAN kínálunk eladásra, 4 db, DNY-i és DK-i tájolású, KERTRE NÉZŐ, 111,6 – 176 m2-ig (teraszok 1/2, és 1/3 méreteinek a beszámítása mellett) 3, 4 és 5 SZOBÁS, TEREMGARÁZS HELYEKKEL (+17 Mft/db), FELSZÍNI AUTÓBEÁLLÓKKAL (+13 Mft/db), és 14 m2 tárolókkal (+18 Mft/db) rendelkező, PRÉMIUMKATEGÓRIÁS újépítésű lakásokat.
Az ingatlan autóval és tömegközlekedéssel is jól megközelíthető: buszmegálló 5 perc sétatávolságra, ill. a MOM PARK és a HEGYVIDÉK BEVÁSÁRLÓKÖZPONT is PERCEK ALATT ELÉRHETŐ.
Elérhető lakások
•L1 lakás: 105,63 m² + 12 m² terasz – 378 MFt
•L2 lakás: 113 m² + 12 m² terasz – 398 MFt
•L3 lakás: 150 m² + 53 m² terasz/erkély – 580 MFt
•L4 lakás: 150 m² + 46 m² terasz/erkély – 570 MFt
MŰSZAKI TARTALOM – PRÉMIUM SZINTŰ MEGOLDÁSOK
Az épület a 2022. évi AA+ energetikai követelményeknek megfelelően, a legmodernebb gépészeti technológiákkal és KNX intelligens épületautomatika rendszerrel kerül kivitelezésre.
Lakásonként egyedi gépészet:
•Mennyezeti hűtés–fűtés és padlófűtés, harmatpont-érzékelővel
•Panasonic víz–levegő hőszivattyús rendszer a fűtés és a használati melegvíz biztosítására
•KNX intelligens otthon rendszer, melynek segítségével akár mobiltelefonról, távolról is vezérelhető a fűtés, hűtés, világítás stb.
•Zehnder hővisszanyerős szellőztetőrendszer, folyamatos friss, szűrt levegővel
További műszaki és kényelmi elemek:
•Háromrétegű hőszigetelt üvegezésű fa nyílászárók
•Távirányítással működtethető alumínium redőnyrendszer
•Falsíkban záródó belső ajtók
•Minőségi hideg- és melegburkolatok
•Villeroy & Boch szaniterek és fürdőszobabútorok
•Hansgrohe csaptelepek
•Hüppe zuhanykabinok
•Okosotthon-kompatibilis kapcsolók és konnektorok
•Fűtött lehajtó a mélygarázsba
•Automata garázs- és kertkapu
•Riasztórendszer-, TV- és internet-előkészítés
•Videó kaputelefon
•Épített kert automata öntözőrendszerrel
•Kerti világítás
•Az épületben a teremgarázs szintről induló felvonó kerül beépítésre
BELSŐÉPÍTÉSZET ÉS EGYEDI IGÉNYEK:
A lakások a Geppetto Belsőépítész Iroda által készített részletes belsőépítészeti kiviteli tervek alapján valósulnak meg.
A kivitelezés során – a műszaki lehetőségek figyelembevételével – lehetőség van a lakások vevői igény szerinti egyedi módosítására.
A lakások átadásának időpontja: 2027. II. félév
FIZETÉSI ÜTEMEZÉS:
•Szerződéskötéskor: 10% foglaló + 10% vételárelőleg
•A fennmaradó vételár megfizetése a készültségi szintnek megfelelően, további 6 részletben történik
TISZTELT ÉRDEKLŐDŐ!
TÖBB MINT 20 ÉVE FOGLALKOZOM INGATLANOK ÉRTÉKESÍTÉSÉVEL MAGYARORSZÁG PIACVEZETŐ INGATLANKÖZVETÍTŐ HÁLÓZATÁNÁL, AZ OTTHON CENTRUMNÁL. AMENNYIBEN SZÁNDÉKÁBAN ÁLL INGATLANT ELADNI - A LEGRÖVIDEBB IDŐN BELÜL, GARANTÁLT JOGI, ÉS BANKI HÁTTÉRREL - KERESSEN BIZALOMMAL, HOGY EGY HELYSZÍNI FELMÉRÉST KÖVETŐ INGYENES ÉRTÉKMEGÁLLAPÍTÁS UTÁN, EGYÜTT TUDJUNK MŰKÖDNI AZ ÖN INGATLANÁNAK AZ ELADÁSÁBAN IS!
ŐSFALIGET