5 szobás 121 m2-es Lakás HATÁG LAKÓUDVAR - Budapest XI. kerület, Spanyolrét
- Ingatlan adatok
-
Alapterület: 121 m2
-
Regisztrációs szám: P4706-2-02-FZ-001
-
Szobák: 5 szoba
-
Típus: Lakás
-
Ár: 206 766 000 Ft
-
Várható átadás: 2026. IV. negyedév
-
Méret (bruttó): 124.4 m2
-
Terasz méret: 7.00 m2
-
Fűtés: Megújuló
-
Fürdőszobák száma: 2
-
Belmagasság: 270.0 cm
-
Tároló: Önálló
-
Tájolás: K
-
Kilátás: zöld kerti
-
Lépcsőház jellege: zárt lépcsőházas
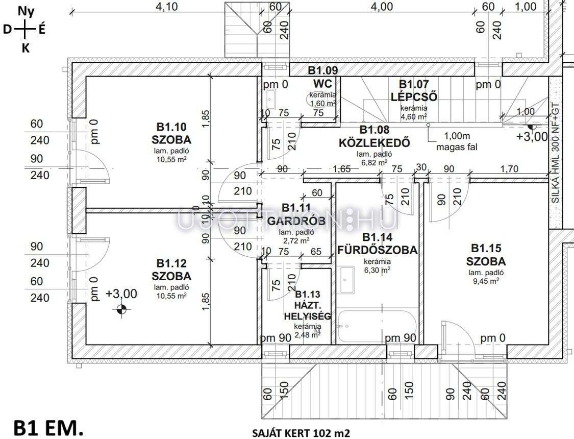
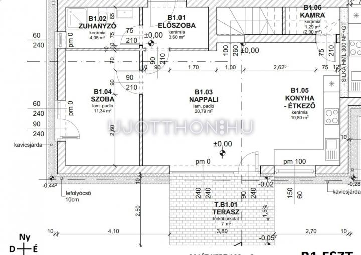
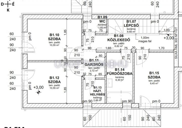
- Helyiségek
-
nappali-konyha 31.59 m2
-
szoba 11.34 m2
-
fürdőszoba-wc 4.05 m2
-
terasz 7 m2
-
szoba 10.55 m2
-
szoba 10.55 m2
-
szoba 9.45 m2
-
fürdőszoba-wc 6.3 m2
-
wc-kézmosó 1.6 m2
Leírás
XI. SPANYOLRÉT, ÚJÉPÍTÉSŰ SORHÁZ SAJÁT KERTTEL, 2 AUTÓBEÁLLÓVAL
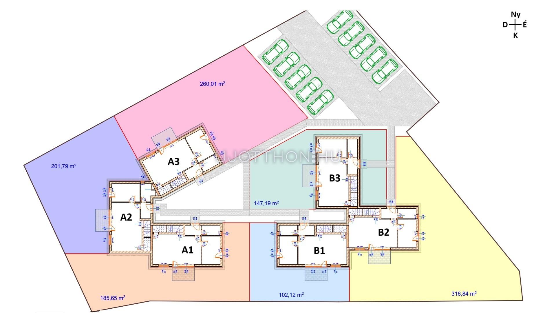
XI. Kerület SPANYOLRÉT KÖRZETÉBEN, CSENDES MELLÉKUTCÁBAN, teljesen SÍK, nagyjából téglalap alakú, 2000 m2 telken épülő, 2x3 épületből álló, SORHÁZI TÁRSASHÁZBAN kínálunk eladásra, egy K-i TÁJOLÁSÚ, SAJÁT KERTRE NÉZŐ, belső 2 szintes, 120,9 m2-es (7 m2 terasz 1/2 méretének a beszámítása mellett. A terasz nélküli nettó főfalakon belüli alapterület 117,4 m2), 5 SZOBÁS, 2 FÜRDŐSZOBÁS, 2 DB TELKEN BELÜLI FELSZÍNI BEÁLLÓVAL (+4 Mft/db), és 102 m2 SAJÁT KERTTEL rendelkező sorházi lakást.
Fűtés-hűtés: HŐSZIVATTYÚS RENDSZER MELEGVÍZ TÁROLÓVAL, padlófűtéssel, illetve opcionálisan MENNYEZET HŰTÉS-FŰTÉSSEL. A FÖLDSZINTEN ÉS AZ EMELETEN FAN-COIL HŰTÉS KERÜL KIALAKÍTÁSRA. Külső nyílászárók: Műanyag profilú 5-6 légkamrás, kívül színes fólia, 3 rétegű üvegezéssel.
TETŐN NAPELEM RENDSZER FOGADÁSÁRA ALKALMAS VÉDŐCSÖVEZÉS KERÜL KIALAKÍTÁSRA, napelem telepítése külön árajánlat alapján kerül kiépítésre.
A földszinti lakótérben természetesen lehetőség van a 11,3 m2-es szoba mellőzésére, ami által egy tágasabb nappali konyha-étkező kialakítás lenne elérhető!
Az ingatlan főfalak által behatárolt területe jelen pillanatban még a leendő vásárlói igényeknek megfelelően alakítható ki: válaszfalak elhelyezése, szobaszám, szobák mérete….stb.
A kivitelező jó néhány társasházat már felépített, így természetesen több referenciamunkával is rendelkezik! AZ INGATLAN KULCSRAKÉSZ ÁLLAPOTA 2026 ÉV VÉGÉRE várható.
Közlekedés: 40, 40B, 88, és 88A buszok gyalogosan 10 percre, M4 METRÓ KELENFÖLDI VÉGÁLLOMÁSA BUSSZAL 6-8 PERC ALATT ELÉRHETŐ.
TISZTELT ÉRDEKLŐDŐ!
AMENNYIBEN SZÁNDÉKÁBAN ÁLL INGATLANT ELADNI - A LEGRÖVIDEBB IDŐN BELÜL, GARANTÁLT JOGI, ÉS BANKI HÁTTÉRREL - KERESSEN BIZALOMMAL, HOGY EGY SZEMÉLYES HELYSZÍNI FELMÉRÉST KÖVETŐ INGYENES ÉRTÉKMEGÁLLAPÍTÁS UTÁN, EGYÜTT TUDJUNK MŰKÖDNI AZ ÖN INGATLANÁNAK AZ ÉRTÉKESÍTÉSÉBEN IS!
Projekt bemutatása
XI. SPANYOLRÉT, ÚJÉPÍTÉSŰ SORHÁZ SAJÁT KERTTEL, 2 AUTÓBEÁLLÓVAL
XI. Kerület SPANYOLRÉT KÖRZETÉBEN, CSENDES MELLÉKUTCÁBAN, teljesen SÍK, nagyjából téglalap alakú, 2000 m2 telken épülő, 2x3 épületből álló, SORHÁZI TÁRSASHÁZBAN kínálunk eladásra, 6 db SAJÁT KERTRE NÉZŐ, belső 2 szintes, 120 m2-es (7 m2 terasz 1/2 méretének a beszámítása mellett. A terasz nélküli nettó főfalakon belüli alapterület 117 m2), 5 SZOBÁS, 2 FÜRDŐSZOBÁS, 2 DB TELKEN BELÜLI FELSZÍNI BEÁLLÓVAL (+4 Mft/db), és 102 - 260 m2 SAJÁT KERTTEL rendelkező sorházi lakásokat.
Fűtés-hűtés: HŐSZIVATTYÚS RENDSZER MELEGVÍZ TÁROLÓVAL, padlófűtéssel, illetve opcionálisan MENNYEZET HŰTÉS-FŰTÉSSEL. A FÖLDSZINTEN ÉS AZ EMELETEN FAN-COIL HŰTÉS KERÜL KIALAKÍTÁSRA. Külső nyílászárók: Műanyag profilú 5-6 légkamrás, kívül színes fólia, 3 rétegű üvegezéssel.
TETŐN NAPELEM RENDSZER FOGADÁSÁRA ALKALMAS VÉDŐCSÖVEZÉS KERÜL KIALAKÍTÁSRA, napelem telepítése külön árajánlat alapján kerül kiépítésre.
A földszinti lakótérben természetesen lehetőség van a plusz szoba mellőzésére, ami által egy tágasabb nappali konyha-étkező kialakítás lenne elérhető!
Az ingatlan főfalak által behatárolt területe jelen pillanatban még a leendő vásárlói igényeknek megfelelően alakítható: válaszfalak elhelyezése, szobaszám, szobák mérete….stb.
A kivitelező jó néhány társasházat már felépített, így természetesen több referenciamunkával is rendelkezik! AZ INGATLAN KULCSRAKÉSZ ÁLLAPOTA 2026 ÉV VÉGÉRE várható.
Közlekedés: 40, 40B, 88, és 88A buszok gyalogosan 10 percre, M4 METRÓ KELENFÖLDI VÉGÁLLOMÁSA BUSSZAL 6-8 PERC ALATT ELÉRHETŐ.
TISZTELT ÉRDEKLŐDŐ!
AMENNYIBEN SZÁNDÉKÁBAN ÁLL INGATLANT ELADNI - A LEGRÖVIDEBB IDŐN BELÜL, GARANTÁLT JOGI, ÉS BANKI HÁTTÉRREL - KERESSEN BIZALOMMAL, HOGY EGY SZEMÉLYES HELYSZÍNI FELMÉRÉST KÖVETŐ INGYENES ÉRTÉKMEGÁLLAPÍTÁS UTÁN, EGYÜTT TUDJUNK MŰKÖDNI AZ ÖN INGATLANÁNAK AZ ÉRTÉKESÍTÉSÉBEN IS!
HATÁG LAKÓUDVAR
