4 szobás 87 m2-es Lakás Duna Residence - Budapest XI. kerület, Kelenföld
- Ingatlan adatok
-
Alapterület: 87 m2
-
Regisztrációs szám: P4798-1-0A-13-1301
-
Szobák: 4 szoba
-
Típus: Lakás
-
Ár: 205 410 000 Ft
-
Várható átadás: 2027. I. negyedév
-
Emelet: 13. emelet
-
Méret (bruttó): 97.74 m2
-
Terasz méret: 20.40 m2
-
Fűtés: hoszivattyus_padlofutes
-
Fürdőszobák száma: 2
-
Belmagasság: 270.0 cm
-
Tároló: Külön vásárolható
-
Tájolás: DNY
-
Garázs: Külön vásárolható
-
Kilátás: udvari
-
Lépcsőház jellege: zárt lépcsőházas
-
Lift: Van
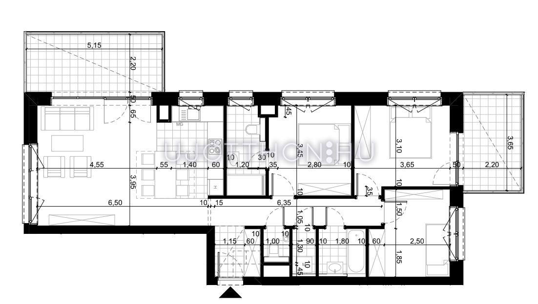
- Helyiségek
-
előszoba 3.35 m2
-
nappali 22.53 m2
-
konyha 6.07 m2
-
étkező 3.96 m2
-
fürdőszoba 3.33 m2
-
hálószoba 12.18 m2
-
hálószoba 10.71 m2
-
hálószoba 9.48 m2
-
közlekedő 6.93 m2
-
fürdőszoba-wc 5 m2
-
wc-kézmosó 1.3 m2
-
háztartási helyiség 1.67 m2
-
terasz 12 m2
-
terasz 8.39 m2
Leírás
Ez a lakás:
NY,É,D-i tájolású, napfényes lakás a sétány és budai hegyek felé nyitott kilátással.
Az ablakos konyha, a két fürdőszoba – melyek közül az egyik az egyik hálószobához kapcsolódik – valamint a külön háztartási helyiség a kényelmes, jól szervezett mindennapokat szolgálják.
A lakás két terasszal rendelkezik: az egyik a nappaliból, a másik az egyik hálószobából nyílik, ideális teret biztosítva pihenéshez és elvonuláshoz.
Projekt bemutatása
Duna Residence | átadás: 2027 tavasz
Hazaérkezni ide olyan érzés, mintha lelassulna a világ.
Ez az Újbudai Duna-part jelenleg több ütemben épülő, de szolgáltatásaiban legerősebb lakóparkja. Az épületben saját fitneszterem és wellness vár – úgy töltekezel, mintha minden nap egy hotelbe érkeznél haza.
4 OK, AMIÉRT JÓ VÁLASZTÁS
✔ belváros közeli elhelyezkedés, kiváló közlekedés
✔ zöld, nyugodt környezet – valódi városi oázis
✔ prémium szolgáltatások egy helyen
✔ alacsony fenntartási költségek
FELSZERELTSÉG (az ár tartalmazza):
- Padlófűtés + fan-coil hűtés: a két legkényelmesebb megoldás, amire mindenki vágyik
- Elektromos redőnyök
- Érintős villanykapcsolók
- Egyedi fejlesztésű Smart Home rendszer, amely saját applikációról vezérelhető (fűtés, hűtés, világítás, árnyékolás)
Miért válaszd ezt a különleges otthont?
- Saját wellness van a házban: medence, szaunavilág, sókabin, fitnessterem – úgy töltekezel, mintha minden nap egy hotelbe érkeznél haza.
- Minden parkoló töltővel: a lakópark teljesen elektromos-autó-baráttá lett tervezve, minden beálló töltésre előkészített.
- A lakások 70%-ából látható a Duna és a budai hegek
- Tényleg jól használható elosztás: praktikus, jól élhető, modern kialakítás a beruházótól megszokott magas színvonalon.
SZOLGÁLTATÁSOK, amelyek valóban kényelmessé teszik az életet
A Duna Residence-ben sokszor ki sem kell lépned, ha feltöltődésre vágysz:
- modern fitneszterem
- szauna és wellness funkciók
- kültéri edzőeszközök
- közösségi csónakház
- grill- és tűzrakóhely
- panorámás tető- és napozóteraszok
- zárt, autómentes belső park
- játszóterek, baba- és gyerekbarát terek
- bölcsőde és óvoda a lakóparkon belül
- pékség és kávézó a fogadóépületben
A biztonságról 24 órás portaszolgálat és ellenőrzött beléptetés gondoskodik arcfelismerő rendszerrel.
Az energetikai kialakítás megfelel a kiemelkedően alacsony energiaigényű otthonok követelményeinek – ez nemcsak kényelmet, hanem hosszú távú értékállóságot is jelent.
A tetőszinti panorámateraszokról a Duna, a város és a naplemente látványa tárul fel. Itt lehet igazán megállni egy pillanatra: reggel egy kávéval, délután egy könyvvel, este a fényekkel együtt lelassulva.
FEJLESZTŐI HÁTTÉR – megbízhatóság, garanciával
A projekt mögött az egyik legmegbízhatóbb hazai fejlesztő áll, amely garantálja a kivitelezés minőségét és biztonságát:
- Fix ár: A szerződésben rögzített vételár garantált – rejtett költségek és utólagos áremelés nélkül
- 5% rozsdaövezeti kedvezmény*
- Prémium minőség: Magas színvonalú anyagok és innovatív megoldások
- Saját kivitelezés: A teljes folyamat egy kézben, kiemelkedő minőségbiztosítással
- Teljes körű jótállás, hosszú távú elégedettséggel
- Kedvező fizetési ütemezés – 10% szerződéskötéskor, a fennmaradó 90%-ot elegendő csupán az átadáskor megfizetned
AZ ÉPÍTKEZÉS AKTUÁLIS STÁTUSZA 2026-01-29
A szerkezetépítés már a 10. emeleten történik. A falazás a 8. emeleten holnaptól folytatódik. A homlokzati nyílászárók beépítése a 7. emeleten elkészült.
A belső vakolás a 4. emeleten zajlik, az aljzatbetonozás az 5. emeletig befejeződött. A földszinten a festési munkák elkészültek, a 2. és 3. emeleteken jelenleg glettelés folyik. Emellett a földszinti és az 1. emeleti lakásokban a hidegburkolási munkák is folyamatban vannak.
KÖZLEKEDÉS– a város kényelmével
Pár lépés a folyó, esti séták a Duna-parton, nyugalom és tér – mindez anélkül, hogy lemondanál a városi elérhetőségről. A belváros autóval mindössze 15 perc, tömegközlekedéssel is gyorsan és kényelmesen elérhető. A 133E és a 103-as busz megállói egy percre találhatók, a 4-es metró Bikás parki állomása néhány perc alatt elérhető.
El tudod magad itt képzelni? Akkor ez a különleges lakópark épp Rád vár!
Otthon a városban. Otthon a Duna-parton.
2027 tavaszán – itt kezdődik az új fejezeted.
* Rozsdaövezeti kedvezmény: magyar magánszemélyek a tulajdonjog bejegyzését követően a vételár 5% ÁFÁ-ját visszaigényelhetik.
----------------------------------------------------------------------------
Díjmentes, bankfüggetlen hiteltanácsadással támogatjuk vevő ügyfeleinket a számukra legelőnyösebb finanszírozási döntések meghozatalában. Opcionálisan igénybe vehető kiegészítő szolgáltatásainkkal – mint ügyvédi közreműködés, energetikai tanúsítvány vagy villamos biztonsági felülvizsgálat – teljes körű szakmai támogatást nyújtunk az adásvétel folyamatának minden egyes lépésénél.
A hirdetésben szereplő információk tájékoztató jellegűek. A tévedés és az árváltoztatás jogát fenntartjuk. Az esetleges elírásokért és technikai hibákért felelősséget nem vállalunk.
Duna Residence