2 szobás 48 m2-es Lakás Rózsa Apartments - Budapest VI. kerület, Külső Terézváros, Rózsa utca 82

85.92 M Ft
  • Ingatlan adatok
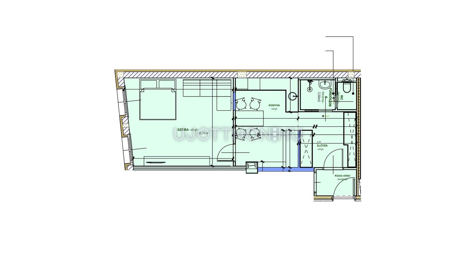
  • Alapterület: 48 m2
  • Regisztrációs szám: 10732429
  • Szobák: 2 szoba
  • Típus: Lakás
  • Ár: 85 920 000 Ft
  • Várható átadás: 2026. II. negyedév
  • Emelet: 3. emelet
  • Fűtés: Egyéb

Leírás

Közvetlenül a beruházótól eladó Budapest VI. kerületében, az Andrássy út közvetlen közelében, a Rózsa utcában.

A beruházás egy klasszikus belvárosi társasház szintráépítésével valósult meg. A projektben még elérhető ingatlanok a 3. emeleten találhatók, keleti tájolásúak, utcára néznek, világos és jól élhető terekkel. A lakások amerikai konyhás nappalival és külön hálószobával rendelkeznek. A helyiségeket elegáns, falba süllyesztett tolóajtók választják el, így a tér egyszerre nyitott és jól szeparálható. A korszerű hőszivattyús rendszerrel működő padlófűtés és mennyezeti hűtés-fűtés egyenletes hőkomfortot biztosítanak, valamint elektromos redőnyök biztosítják a modern műszaki színvonalat.

A vételár tartalmazza a szanitereket és szerelvényeket. Igény esetén, felár ellenében vállaljuk a konyhabútor egyedi tervezését és kivitelezését is.

A projektben egy berendezett bemutatólakás segít elképzelni az ingatlanokban rejlő lehetőségeket. Áprilisban használatba vételi, májusban pedig külön albetéttel befejeződik a beruházás.

Csendes utcában, mégis kiváló lokációval, minden elérhető távolságban, a közelben üzletek, éttermek és gyógyszertár.

Projekt bemutatása


Közvetlenül a beruházótól eladó Budapest VI. kerületében, az Andrássy út közvetlen közelében, a Rózsa utcában. A beruházás egy klasszikus belvárosi társasház szintráépítésével valósult meg. A projektben még elérhető ingatlanok a 3. emeleten találhatók, keleti tájolásúak, utcára néznek, világos és jól élhető terekkel. A lakások amerikai konyhás nappalival és külön hálószobával rendelkeznek. A helyiségeket elegáns, falba süllyesztett tolóajtók választják el, így a tér egyszerre nyitott és jól szeparálható. A korszerű hőszivattyús rendszerrel működő padlófűtés és mennyezeti hűtés-fűtés egyenletes hőkomfortot biztosítanak, valamint elektromos redőnyök biztosítják a modern műszaki színvonalat.
A vételár tartalmazza a szanitereket és szerelvényeket. Igény esetén, felár ellenében vállaljuk a konyhabútor egyedi tervezését és kivitelezését is.
A projektben egy berendezett bemutatólakás segít elképzelni az ingatlanokban rejlő lehetőségeket. Áprilisban használatba vételi, májusban pedig külön albetéttel befejeződik a beruházás.

Rózsa Apartments

Átadás:
2026. II. negyedév
Lakások száma:
2
Árak:
85.9 M Ft
Méret:
48 m2
Szobák:
2 szoba
Projekt bemutatása
Érdeklődöm