2 szobás 83 m2-es Lakás J10 Residence - Budapest VI. kerület, Belső Terézváros, Jókai utca 10

171.9 M Ft
  • Ingatlan adatok
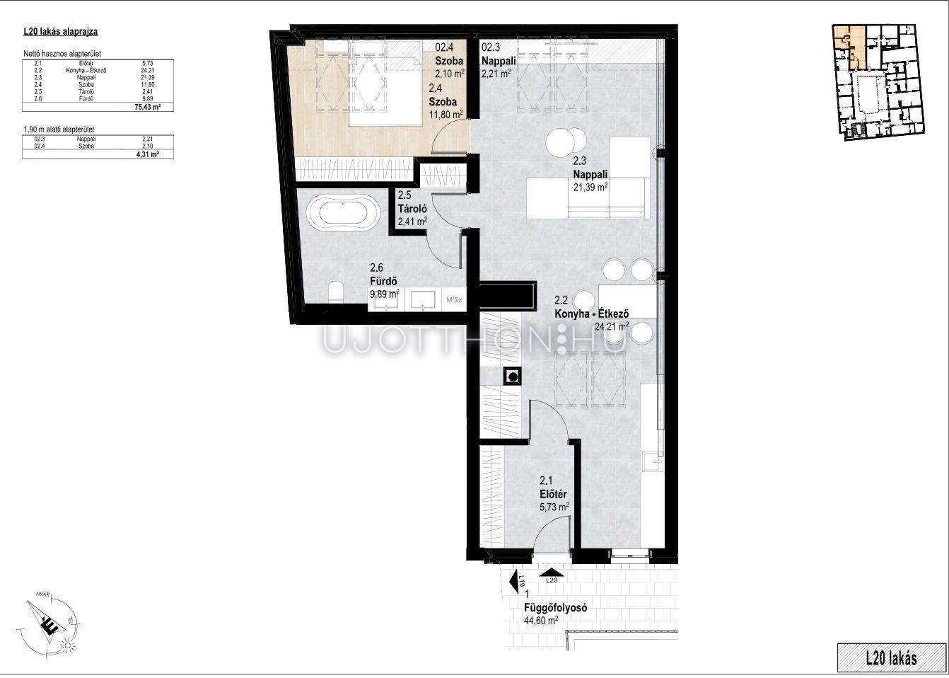
  • Alapterület: 83 m2
  • Regisztrációs szám: 10336396
  • Szobák: 2 szoba
  • Típus: Lakás
  • Ár: 171 900 000 Ft
  • Várható átadás: 2026. III. negyedév
  • Emelet: 3. emelet
  • Fűtés: Egyéb

Leírás

VI. kerület Belső Terézvárosban műemléki épületben megépülő, minőségi lakások már leköthetőek. Az első két lakásvásárló kedvezményben részesül.

Tervezetten 2026. III. negyedévében kerül átadásra a hat különböző méretű lakás, melyből kettőhöz nagy méretű, saját tulajdonú terasz is tartozik.

Az otthonok a jogszabályoknak megfelelően a legmagasabb energetikai besorolásnak fognak megfelelni és lakásonként önálló hűtő-fűtő rendszerrel lesznek felszerelve.

Projekt bemutatása


VI. kerület Belső Terézvárosban műemléki épületben megépülő, minőségi lakások már leköthetőek. Az első két lakásvásárló kedvezményben részesül.

Tervezetten 2026. III. negyedévében kerül átadásra a hat különböző méretű lakás, melyből kettőhöz nagy méretű, saját tulajdonú terasz is tartozik.

Az otthonok a jogszabályoknak megfelelően a legmagasabb energetikai besorolásnak fognak megfelelni és lakásonként önálló hűtő-fűtő rendszerrel lesznek felszerelve.

J10 Residence

Átadás:
2026. III. negyedév
Lakások száma:
6
Árak:
99 - 182.9 M Ft
Méret:
50 - 83 m2
Szobák:
2 - 3 szoba
Projekt bemutatása
Érdeklődöm