2 szobás 38 m2-es Lakás Szepezd Resort - Balatonszepezd

68.9 M Ft
  • Ingatlan adatok
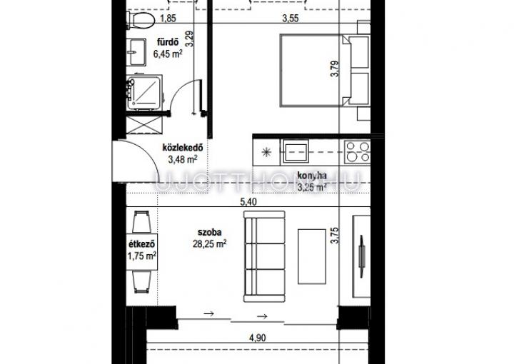
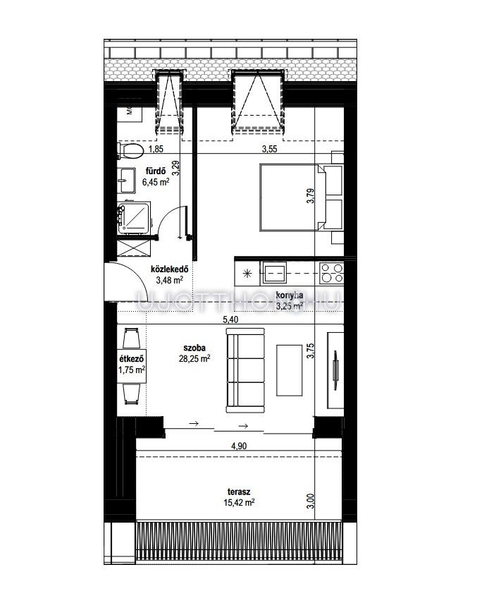
  • Alapterület: 38 m2
  • Regisztrációs szám: P4665-1-0A-02-011
  • Szobák: 2 szoba
  • Típus: Lakás
  • Ár: 68 900 000 Ft
  • Várható átadás: 2027. II. negyedév
  • Méret (bruttó): 39 m2
  • Erkély méret: 3.25 m2
  • Fűtés: hoszivattyus_futes
  • Fürdőszobák száma: 1
  • Belmagasság: 270.0 cm
  • Tároló: Külön vásárolható
  • Tájolás: D
  • Kilátás: zöld kerti
  • Lépcsőház jellege: zárt lépcsőházas

Leírás

Projekt bemutatása

Új lakások Balatonszepezden – 100 méterre a vízparttól!



Fedezze fel a Balaton északi partjának legújabb lakóprojektjét Balatonszepezden!

Projekt jellemzői:

35 lakásos, modern, energiahatékony társasház

2–4 szobás lakások, 65–120 millió Ft között

Kulcsrakész kivitelezés, 5% ÁFA-val

Mindössze 100 méterre a Balaton partjától

Erkélyekről lenyűgöző balatoni panoráma

Gépkocsi beálló és tároló vásárolható a lakásokhoz

Ideális választás nyaralónak, állandó otthonnak vagy befektetésnek egyaránt. Ne maradjon le erről a kivételes lehetőségről!

Érdeklődjön most!

Szepezd Resort

Átadás:
2027. II. negyedév
Lakások száma:
16
Árak:
68.9 - 121.5 M Ft
Méret:
38 - 68 m2
Szobák:
2 - 3 szoba
Projekt bemutatása
Érdeklődöm